* Architecture Design proposal  
 2018  
| 산다는 것은 : 삶을 실험하는 실험주택_단독주택 |
| 건축개요
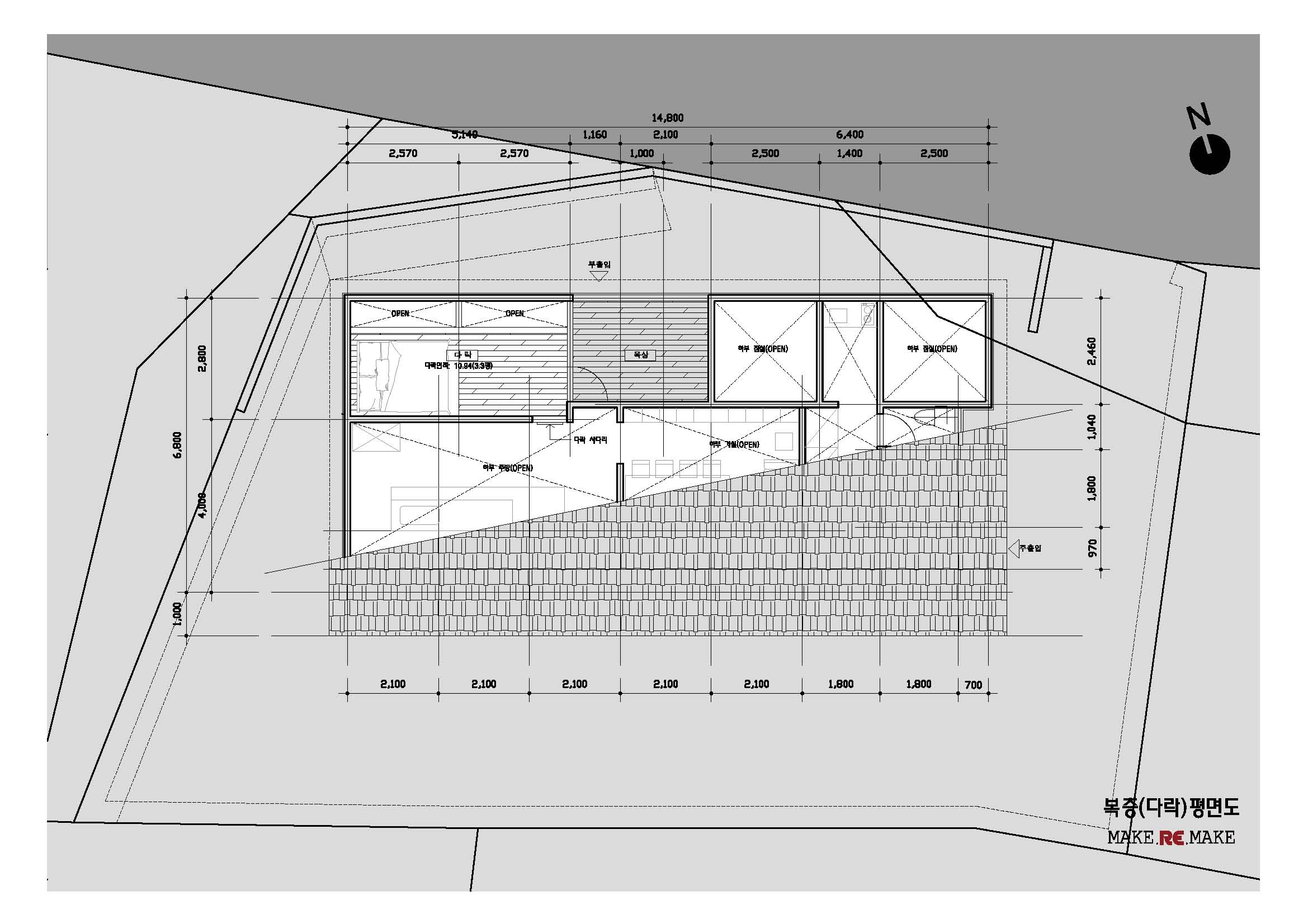
지역지구 / 계획관리지역, 주거개발진흥지구 대지면적 / 322.00㎡ 용도 / 단독주택 구조 / 중목구조 연면적 / 97.00㎡ 건축면적 / 97.00㎡ 규모 / 지상1층 외부마감 / 목재사이딩, 로이복층유리 주차대수 / 2대



건축공간적인 특징 정리
1. 자급자족이 가능해지기 위한 집
가급적이면 많은 일조량 확보를 위한 남향의 정방형 배치, 동향과 서향, 북향의 창호 디자인을 통한 집 전체에 고른 채광디자인, 태양에너지를 이용하기 위한 고도각에 맞춘 지붕디자인, 외부의 텃밭공간 그리고 이러한 삶을 공유하기 위한 책방(교육, 출판 등)운영.
- 자연이 주는 혜택을 최대한 누리고자 함(빛, 바람, 땅)
- 최소한의 수익과 공유를 위한 소형책방 운영공간
2. 소유하지 않는 공간(간소한 삶)
- 개인공간의 최소화: 침대 하나정도만 들어가는 최소한의 침실공간과 가족중심의 공용공간 배치
- 필요한 만큼의 공간계획: 수납장 및 물 사용공간
3. 이러한 삶(간소하고 자급자족의 생활)을 지인과 공유하기 위한 공간구성(게스트 하우스)
- 손님공간과 거주자 공간의 적절한 구분
- 손님공간에도 의식주가 해결될 수 있는 구성(소형주방, 화장실)

블로그에서 프로젝트 상담을 통해서 이메일 접수가 되면, 제안서를 작성하기 위한 최소의 정보(물리적인 정보 및 예산) 정도만 작성해 주시는데, 이번 건축주 분은 집에 대한 정보를 넘어 사는것에 대한 철학적 접근과 그것을 실천하기 위한 집의 공간구성에 대해서 상세하게 설명되어 있었다. 수년간 자신과 가족들이 사는 모습을 지속적으로 관찰과 실험을 해왔던 것이고, 그 과정에서 간소하게 사는 삶, 진정한 가족 공동체의 회복, 자급자족하는 삶과 같은 원칙을 가지고 있었다. 건축주는 도시에서 태어나 공부하고 살지만, 집을 짓고자 하는 곳은 산청군 어느 한 시골의 작은 마을이다. 나는 그것을 실제로 구현해주기 위해 깊이 생각하게 된다.
집의 뼈대는 목구조가 전제였으며, 시각적으로 독특하고 드러나지 않는 건물이길 원했다. 심지어 재활용 자재를 사용할 수있다면 그러고 싶다는 의지도 확인하였다. 가족의 옳바른(?) 공동체생활을 위해서 개인의 소유공간을 최소화하고, 가전제품이 공간의 주인으로 설계되는 것을 지양하기 위해서 텔레비전, 전자렌지, 전기밥솥, 식기세척기 등을 설치공간을 원하지 않았다. 솔직히 글을 쓰고 있는 나도 텔리비전과 전기밥솥, 식기세척기는 사용하지 않는다. 심지어 강제 기계환기를 위한 후드와 화장실 휀도 사용하지 않는다. 살아보니 없어도 별로 필료하지 않다. 창문을 잠깐 열어두면 환기를 어렵지 않게 해결된다. 억지로 시끄러운 기계소리를 들으며 후드와 휀을 사용하고 싶지 않았다.
집에서 하는 활동을 생각해보면 잠자기, 밥먹기, 옷갈아입기, 책보기, 텔리비전보기, 빨래하기, 화장하기, 목욕하기 등 여러가지가 있는데, 이러한 활동만을 위한 공간을 만들기 시작하면 집은 점점 많은 면적을 필요로 하게 된다. 거실,주방,식당,안방,서재,드레스룸,파우더룸, 보조주방, 취미실 등 이름으로 집안에서 자신의 영역을 확장해 나간다. 그리고 방 이름에 맞는 가구도 넣어줘야 한다. 집은 커지고, 집을 짓기위한 비용도 늘어난다. 자신이 살아온 과정을 살펴보면서, 불필요한 공간을 없애고, 같이 사용해도 되는 공간은 통합하여 겸용으로 사용하는 등의 사고를 통해서 자신에 맞는 집이 만들어 진다. 공동주택은 세대간 벽을 공유하기 때문에 채광을 위한 면이 2면이다. 방과 거실을 남쪽으로 내주면, 북쪽은 자연스럽게 주방과 화장실이 위치하게 된다. 하지만 단독주택은 4면이 외부에 접해 있어 다양한 방식의 채광을 적용할 수 있고, 집의 어느 공간이든 맞통풍이 가능해지기 때문에 밝고, 건강한 집이 될 가능성이 높다. 또한 작은 면적이라도 외부공간이 함께하고 있어 삶의 활력을 더해준다.





* MAKE.RE.MAKE는 다양성과 지속가능성, 사회적 문제에 관심을 가집니다. 
_
instagram
@makeremake_official : 포트폴리오.
@project. 055 : 마산(창원, 진해)의 도시재생 리노베이션 프로젝트 그리고 건축도시탐구.
_
'디자인제안▶Proposal > 단독주택' 카테고리의 다른 글
| House| 구산면 바다 전망이 기막힌 단독주택 | 세컨하우스 (0) | 2021.04.23 | 
|---|---|
| House| 창녕 주말주택 | 세컨하우스 | 30평이하 (0) | 2019.03.20 | 
| House| 진해 소형주택 | 35평 대지 | 30평 이하 건물 | 단독주택 (0) | 2018.04.30 | 
| House| 안민동 협소주택 | 대지30평 | 건물 30평 | 단독주택 (0) | 2017.04.11 | 

 
														
													 
														
													
댓글