#오늘의 PICK
#건축디자인 #리노베이션
#메이크리메이크 #건축설계
#리노베이션 #청년주거
▶산업도시에 남겨진 건물을 리노베이션하여 청년들을 위한 공간으로 재탄생 | 공동주택
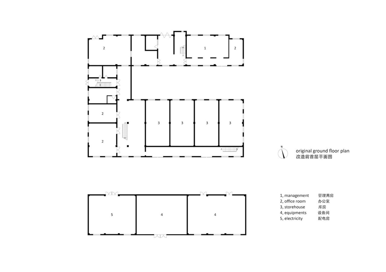
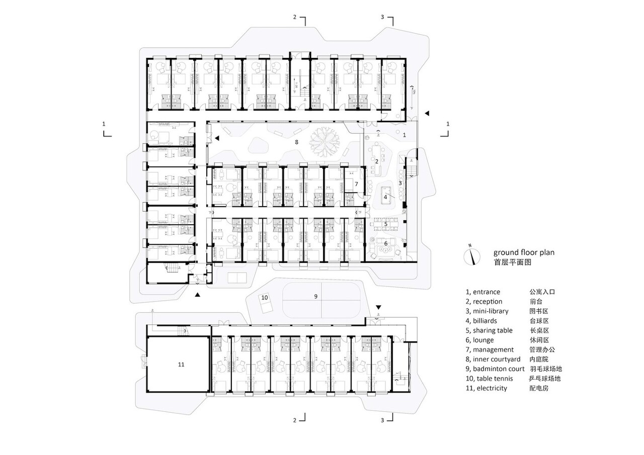
낙후된 산업도시의 빈 건물을 리노베이션하여 젊음이를 위한 공유공간이자 생활공동체 공간으로 변모하였다. 도로에 면해 있는 건물이 시간이 지나면서 주변건물과 환경이 바뀌어 건물의 정면을 바꿀 필요가 생겼다. 북측에서 동측으로 바꾸며 건물의 정면성을 바꾸고, 중정과 옥상을 커뮤니티를 위한 공간으로 계획하였다.
건물의 동선과 용도가 바뀌면서 계단이 신설되고, 재료가 바뀌는 등의 변화가 있었다.
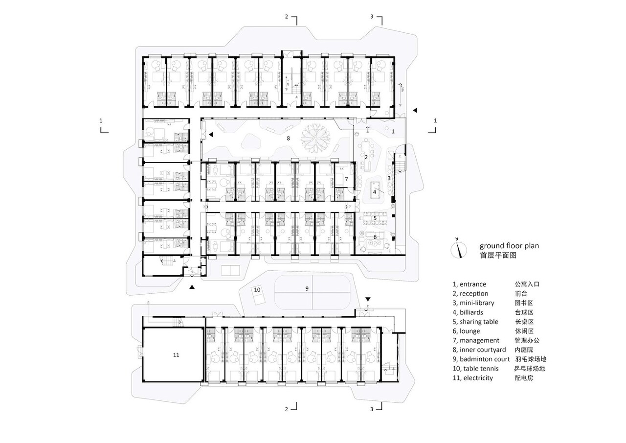
1층 동측에서는 리셉션, 도서관, 당구장, 라운지, 자유석 등 커뮤니티를 위한 공간계획과 중정과 연결되도록 하여 공용공간의 영역을 최대한 확보하였다. 1층 외부공간에는 탁구, 배드미턴 코트로 최대한 활동적인 영역과 교류가 가능한 공간들로 구성되어 있다.
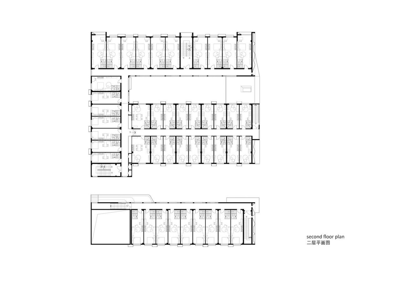
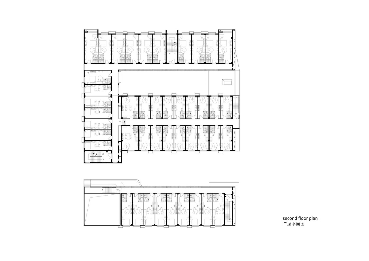
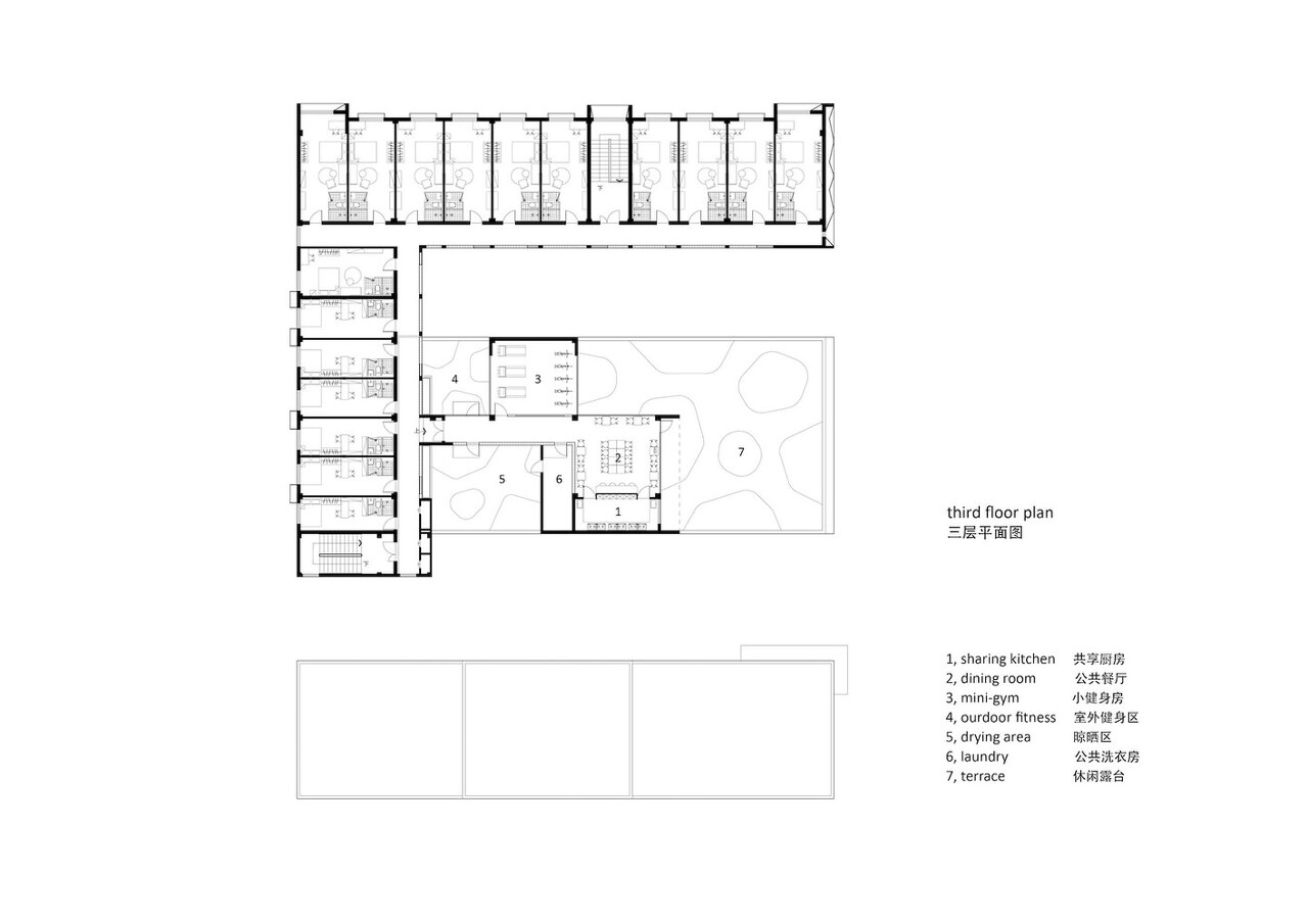
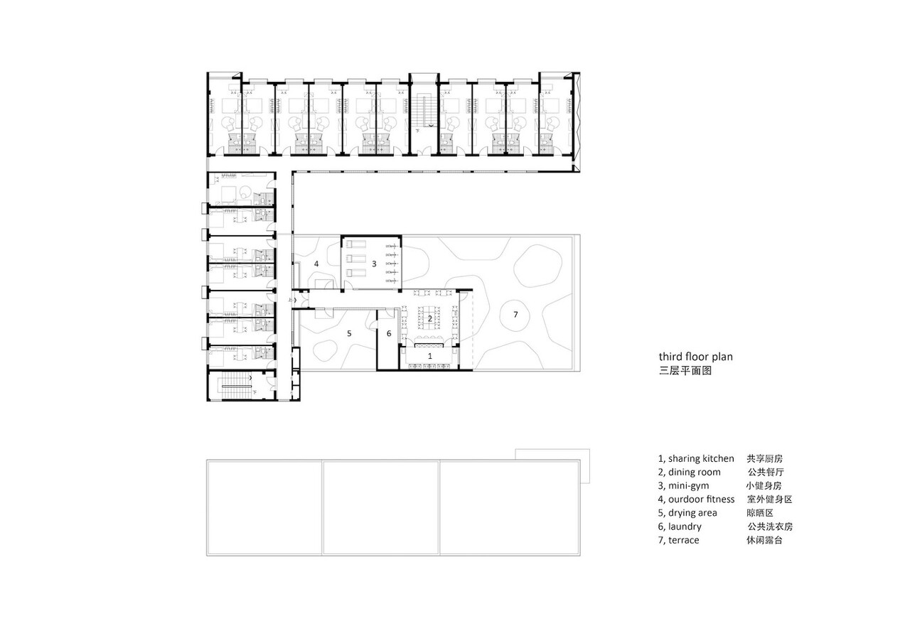
2층 객실로 가득차 있으며, 3층은 가운데 건물존 옥상에 청년들의 생활지원공간으로 되어 있어 세탁실, 공유주방과 거실, 짐(gym), 건조실과 외부옥상 테라스로 구성되어 1층 공용공간과 성격을 달리하였다.
이곳은 102개의 객실(?)이 있고, 5개 유형으로 분류된다. 5.6x7.6m(12.8평)의 유닛은 현관에 들어서 욕실과 화장실, 창가쪽 거실과, 가운데 영역은 침실로 구성되어 있다.
Text description provided by the architects. Yantai Chunhui road is located in Laishan District, a place originally surrounded by educational institutions and former light-industries, there are some universities around such as Yantai University, Shandong Technology and Business University. The recent urbanization has made this area gradually become the heart of Laishan District, with most of factories moving away, leaving many vacant industrial buildings and warehouses. This project is right at the regenerating former industrial area, there were three buildings originally on the site, and the design mission was to transform the industrial space into a sharing living community for young people.
- Architects: MAT Office
- Area: 3220 m²
- Year: 2019




























*참고 및 인용
1. archdaily.com
*MAKE.RE.MAKE는
다양성과 지속가능성, 사회적 문제에
관심을 가집니다
_
instagram
@makeremake_official : 포트폴리오
@project. 055 : 마산(창원, 진해)의 도시재생 리노베이션 프로젝트 그리고 건축도시탐구
'__REF > Housing' 카테고리의 다른 글
| 공동주택| 불편하고 지혜로운 아파트 | 2023 |Tenjincho Place Apartment Complex (0) | 2024.04.12 |
|---|---|
| 공동주택| 외관의 품질과 경관의 질감 | 8 Loftus Street | 시드니 (2) | 2023.11.14 |
| 공동주택 | 치료와 치유를 위한 집합주거| Carpe Diem Dementia Village | 2020 (2) | 2023.08.24 |

댓글