#메이크리메이크 #건축설계
#창원건축 #부산경남
#거푸집 #콘크리트 표면
▶거푸집의 종류와 콘크리트 표면처리에 따른 외관사례 | 콘크리트의 집 | 거푸집
거푸집은 일종의 틀로 콘크리트를 설계한 모양과 크기를 맞게 타설 할 수 있게 한다. 공사가 끝나면 철거하는 임시설치물이지만 콘크리트 표면의 마무리를 결정하기 때문에 공사에서 가장 공을 들이는 부분이다. 거푸집은 콘크리트와 만나는 직접 만나는 거푸집 널과 거푸집의 형태를 유지하기 위한 부속품으로 구성된다.
널은 재질에 따라 금속과 목재가 있다. 금속 거푸집은 목재보다 변형이 적고 반복해서 쓸 수 있지만 열전도율이 높아 여름과 겨울에는 쓰지 않는다. 반면 목재 거푸집은 가공이 편하고 누수가 적어 많이 사용되는 재래식 거푸집으로 열전도율이 낮아 겨울철 공사에도 사용이 가능하다. 하지만 소형패널로 제작하기 때문에 조립, 설치하는데 많은 시간과 인력을 필요로 한다.
소규모 건축물의 경우 유로폼을 주로 사용하는데 유로폼은 철재틀에 12mm 두께의 목재나 합판으로 널을 바꾸며 사용하는 거푸집이다. 재래식 거푸집은 최대 6회로 사용횟수가 제한적인데 유로폼은 널을 바꾸면 얼마든지 재사용이 가능하다.
규격화된 유로폼은 1,200x600mm와 주문제작하는 비규격 유로폼이 있으며, 이형으로 만들어진 유로폼은 1,200x200, 300, 400, 450, 500와 900x450, 500, 600 등이 있다. 인코너나 아웃코너와 같은 긴결철물을 이용해서 크기를 조절한다.
![]() |
![]() |
유로폼은 사용 횟수에 따라 가격이 다르다. 제품을 대여할때 신품과 중고가 있고 중고는 철재틀만 중고이고 널은 새로 교체한 쇼트와 철재틀과 합판 모두 중고인 것이 있다. 쇼트는 합판이 새것이기 때문에 타설과 마감에 큰 무리는 없지만, 틀과 합판 모두 중고일 때는 구멍이 많고 합판자체가 손상된 것이 있으니 확인하고 선택하면 된다. 거푸집 널의 사용에 따라 표면의 질감이 달라진다.
그 외 다양한 표면연출을 위한 널을 재료를 바꾸기도 하고 콘크리트 표면처리를 통해 외관의 변화를 시도 하기도 한다.
1 콘크리트 표면처리에 따른 건물 외관의 변화된 사례( 거푸집 널/표면처리 )
콘크리트의 매력은 원하는 형태로 성형할 수 있는 점과 콘크리트 고유의 색감에 있다. 그리고 그림자가 가장 잘 녹아들어 외관의 입체감과 존재감을 드러낸다. 거푸집을 뜯기 전에는 어떤 모습일지는 상상하는 것과 다를 수 있어 설계 때부터 신중함이 필요하고 시공 전 목업 테스트도 반드시 거치는 게 좋다.
- 1) OSB합판을 사용한 노출콘크리트
- 2) 송판무늬의 거푸집을 이용한 노출콘크리트
- 3) 문양거푸집 노출콘크리트
- 4) 치핑(Chipping) 노출콘크리트
- 5) '콘' 노출콘크리트
1) OSB합판을 사용한 노출콘크리트_ HWN 사옥(논당동)



2) 송판무늬의 거푸집을 이용한 노출콘크리트
송판무늬 거푸집을 이용한 노출콘크리트는 송판무늬 원목을 거푸집널에 지그재그형식으로 붙여 타설 하기도 하며, 후시공으로 우레탄 몰드로 사용하여 눌러 찍는 방식도 사용되기도 한다.
![]() |
![]() |
3) 문양거푸집 노출콘크리트
토목의 옹벽이나 담장 등에 사용되는 거푸집으로 다양한 문양의 거푸집이 있다. 외장의 용도는 아니지만, 삭막한 벽에 무늬를 넣어 투박함을 완화하려고 고안된 제품이다. 건물디자인과 어우러지는 패턴을 잘 활용하면 다양하게 활용될 수 있다.



4) 치핑(Chipping) 노출콘크리트
치핑 콘크리트는 콘크리트의 이음타설시 접착력을 증대시키기 위해 인위적으로 콘크리트 면을 거칠게 만드는 작업을 의미하며, 드릴이나 수압, 면삭기 등으로 시공하는 것이 일반적이다. 수압을 이용한 방식은 주로 오염을 제거하는데 사용하지만 수압 강도, 거리, 노즐크기, 양생기간 등에 따라 치핑의 질감 품질은 현장마다 차이가 있다. 시공 전 주차장벽 등과 같은 곳에 테스트해보는 것이 좋다.


5) '콘' 노출콘크리트
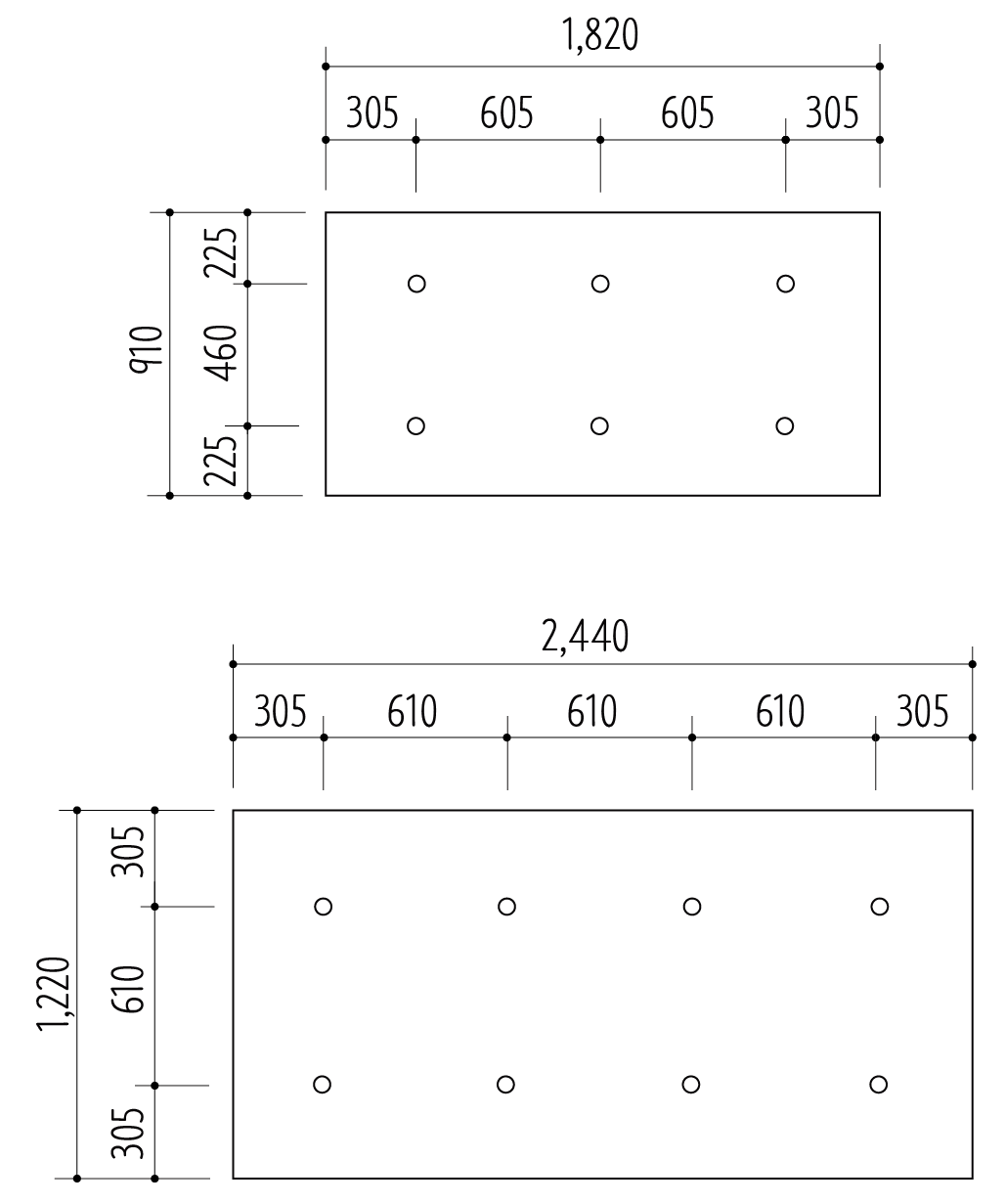
일반적으로 노출콘크리트라고 하면 거푸집이 벌어지는 것을 방지하기 위해 격리재(seperater)를사용해 거푸집 널 사이를 단단히 고정하고 끝으로 형태를 잡기 위해 사용하는 철물을 긴결재(폼타이, form tie)라고 한다. 보통은 특수하게 고안된 못이나 철선을 사용한다. 콘크리트 마감면에 일정한 간격으로 움푹 팬 구멍을 찾을 수 있는데 이 구멍을 '콘' 이라고 한다. 거푸집을 고정하기 위한 흔적이라고 볼 수 있다. 콘은 거푸집 널의 크기에 따라 결정된다. 가장 널리 사용되는 널은 1,820x910mm와 1,220x2,440이고 긴결재에서 널 모서리까지 최단거리와 간격이 1:2가 되도록 길결재를 600x460 또는 610x460mm으로 설치하는 경우가 많다. 안도다다오 역시 600x460mm를 자주 사용한다.
![]() |
![]() |
![]() |


*참고 및 인용
1. 감매거진
2. pinterest
*MAKE.RE.MAKE는
다양성과 지속가능성, 사회적 문제에
관심을 가집니다
_
instagram
@makeremake_official : 포트폴리오
@project. 055 : 마산(창원, 진해)의 도시재생 리노베이션 프로젝트 그리고 건축도시탐구
'__REF > Material' 카테고리의 다른 글
| Mesh | 투시적 성격으로 경계를 흐리는 재료 | 와이어메쉬 설치방법 (0) | 2025.02.24 |
|---|---|
| 바닥재| 가정에서 사용하는 바닥재 종류와 특징 | 주택 바닥재 (1) | 2024.04.16 |
| 시멘트블럭| 블럭을 이용한 수직정원 담장만들기 | 벽면녹화 (0) | 2023.10.16 |
| 석재| 석재(돌)의 표면마감 처리 및 가공법의 종류 (1) | 2023.10.06 |
| 단열재| 단열을 위해 어떤 단열재를 사용할까? (3) | 2023.09.22 |








댓글