#리모델링 #주택설계 #리노베이션 #스테이 #카페 #상가주택 #인테리어 #협소상가주택 #원룸
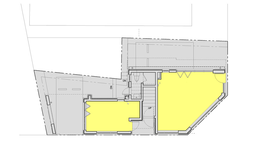
▶ 대지면적 30평의 협소상가주택 | 원룸 | 부산대학교
작은 건물은 그만의 매력이 있다. 어쩌면 우린 큰 공간에 익숙해져 있다고 볼 수도 있다.
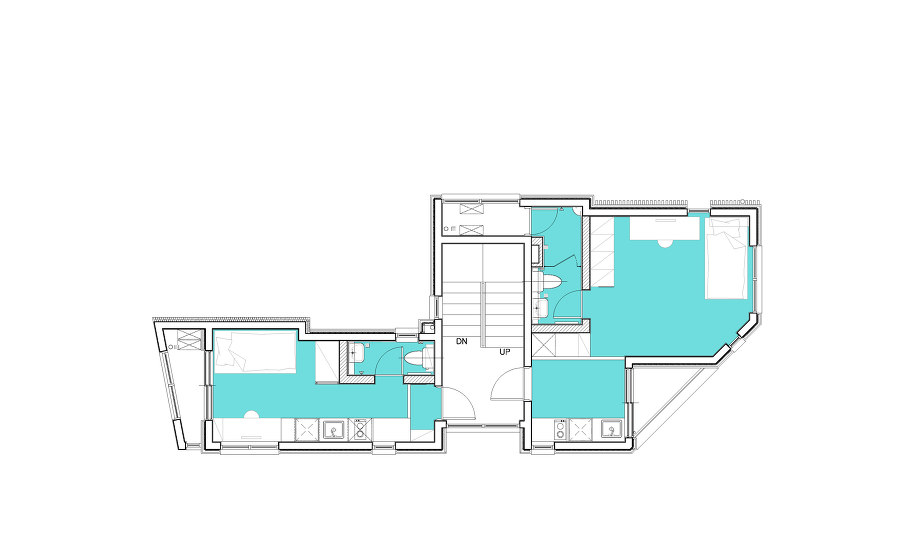
방의 크기가 3미터가 꼭 넘어야 하는 건지, 화장실에 욕조를 반드시 있어야 하는지(물론 있으면 좋다.^^:). 중요한 것은 집에 대해서 생각해볼 수 있는 기회가 되었으면 하는 바람이다. 원룸 속에서도 그 곳에서 공간적인 변화를 만들어보려고 하고, 분위기로 바꾸어 보려고 한다. 바닥재료는 나무나 타일을 선택해 보고, 현관에 관점도 다른 게 해석해 보려 한다. 작은 원룸 속에서 집의 소중함도 한번 느꼈으면 하는 것이다.
대학교때부터 결혼 후까지 지금 생각해 보면 자의든 타의든 10번에 가까운 주거공간이 바뀐 듯한다. 이런 경험은 개인적으로 집에 대한 애착을 만들어내는데 중요한 역할을 했다고 생각한다. 그리고 주거에 대한 고민을 해 본 좋은 경험인 것이다. 집이 꼭 아파트형 주거형이 필요는 없다는 것이다. 우리의 삶은 계속 바뀌기 마련이고, 그러면서 지속적으로 다른 집에서 살아보게 될 것이다. 자신에게 맞는 집을 선택하면 될 것이다.
건축개요
지역,지구: 제2종 일반주거지역
대지면적: 106.4 제곱미터
용도: 1층 근린생활시설, 2,3층 원룸
건축규모: 지상 3층
주차장: 지상주차장 2대



* MAKE.RE.MAKE는 다양성과 지속가능성, 사회적 문제에 관심을 가집니다.
_
instagram
@makeremake_official : 포트폴리오.
@project. 055 : 마산(창원, 진해)의 도시재생 리노베이션 프로젝트 그리고 건축도시탐구.
_
'신축▶Project > 부산JJ상가주택' 카테고리의 다른 글
| 부산JJ상가주택│장전동 협소상가주택 사용승인 완료 | 준공 (0) | 2019.04.10 |
|---|---|
| 부산JJ상가주택│좁은 대지와의 타협으로 생긴 건물_현장방문 (0) | 2018.11.21 |
| 부산JJ상가주택│금정구 장전동 상가주택(원룸+상가) | 설계완료 (1) | 2017.08.31 |
| 부산JJ상가주택│실제 대지경계 복원하기 | 경계복원측량 (0) | 2017.05.17 |

댓글