#협소상가 #마산카페 #마산회원동 #건축설계 #메이크리메이크
▶'H카페' 구도심 상가의 새로운 가능성
과거 마산의 구도심은 도시의 성장과 팽창으로 토지의 필지를 30여 평의 단위로 구획하고, 도시의 밀도를 높였다. 건물의 밀도를 높이고 도로와 외부공간(공원, 공공시설 등)의 비율은 줄여서 개발이 되었다. 지금도 마산의 구도심은 30평~40평 정도 되는 필지의 크기로 된 주택이 상당히 많다. 주택을 신축하거나 리모델링하거나 하는 개발의 면적이 작아 집을 짓는 초기 비용이 적은 편이다. 신도시에 주택 필지는 60평 정도 되는 것에 비하면, 절반의 비용으로 주택을 신축하거나 리모델링해서 거주할 수 있는 조건인 것이다. 구도심은 주차문제와 보행안전, 생활가로의 쾌적함 등은 불리 히지만 오래전부터 개발이 되어 의료, 문화, 복지, 상가시설 등이 복합적으로 개발되어 있어 생활이 있어 편리한 부분이 분명 존재한다. H카페는 과거에 지적측량기술이 정확하지 않아 옆집과의 건물 점유 문제로 협의와 조정을 하고 있지만, 작은 필지에서 5평 남짓하는 면적을 내어주고 나니 더 작아졌다. 그리고 도로 확보를 위해 도로로 내여주는 면적도 있으니 더 작아졌다. 건축주는 이 작은 땅 위에 카페를 신축하고자 한다. 경계복원측량과 현황측량을 통해서 경계를 명확히 하고, 인접 건물과의 점유관계를 확인하고, 설계를 하여야 한다. 착공을 하기 위해서는 반드시 해야 되는 절차이니 미리 확인하는 게 좋다. 이 작은 땅에 설계를 변경하는 일은 쉬운 일이 아니며, 행여나 완전히 다르게 설계변경허가를 해야 하는 일이 생길 수 있다.
H카페의 대지는 마산회원구 회원동 북성로 도로에서 한 블럭 안쪽 사이트이다. 가까스로 도로에 접하게 되어 신축이 가능하게 되었다.
대지의 특징
-대지면적 94제곱미터라는 협소한 토지
-진입부가 좁아 주차장 설치가 불가하여 주차장설치 제외되는 면적의 연면적 범위
-일반 상업지역과 주거지역에 걸쳐져 있어 제한받는 건물의 높이
-입구를 제외한 모든 면이 담장과 2~5층 높이의 건물로 둘러싸인 폐쇄적 구조
-큰 도로에서 한 블록 안쪽으로 들어가 대지의 건물의 인지성이 불리한 위치
-유동인구가 많지 않으며, 저녁에는 어두운 거리의 분위기
이러한 대지의 특성을 바탕으로 카페가 가지는 공간적 특성, 물리적 형태, 진입의 분위기 등을 고려하여 설계를 진행하였다.


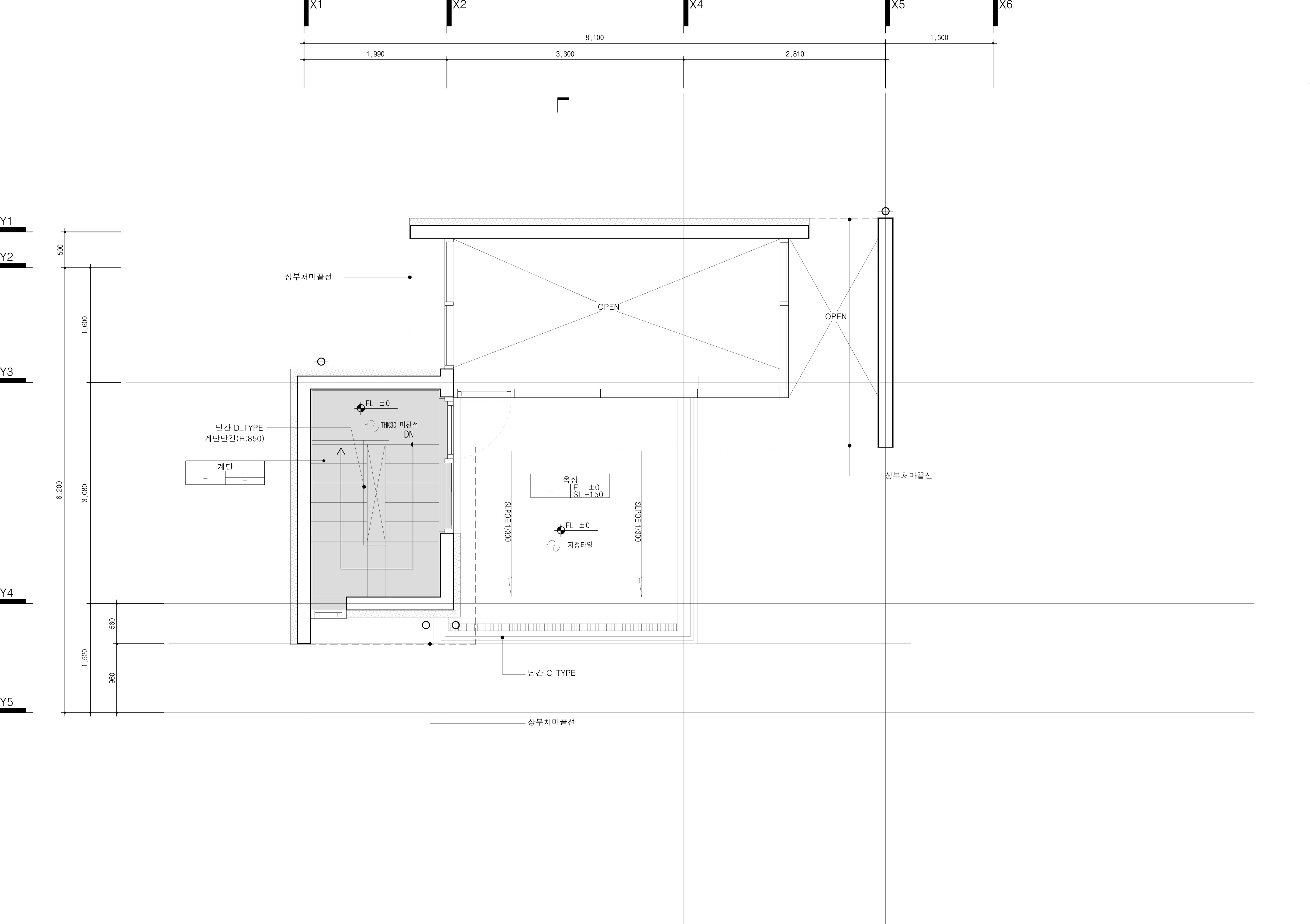
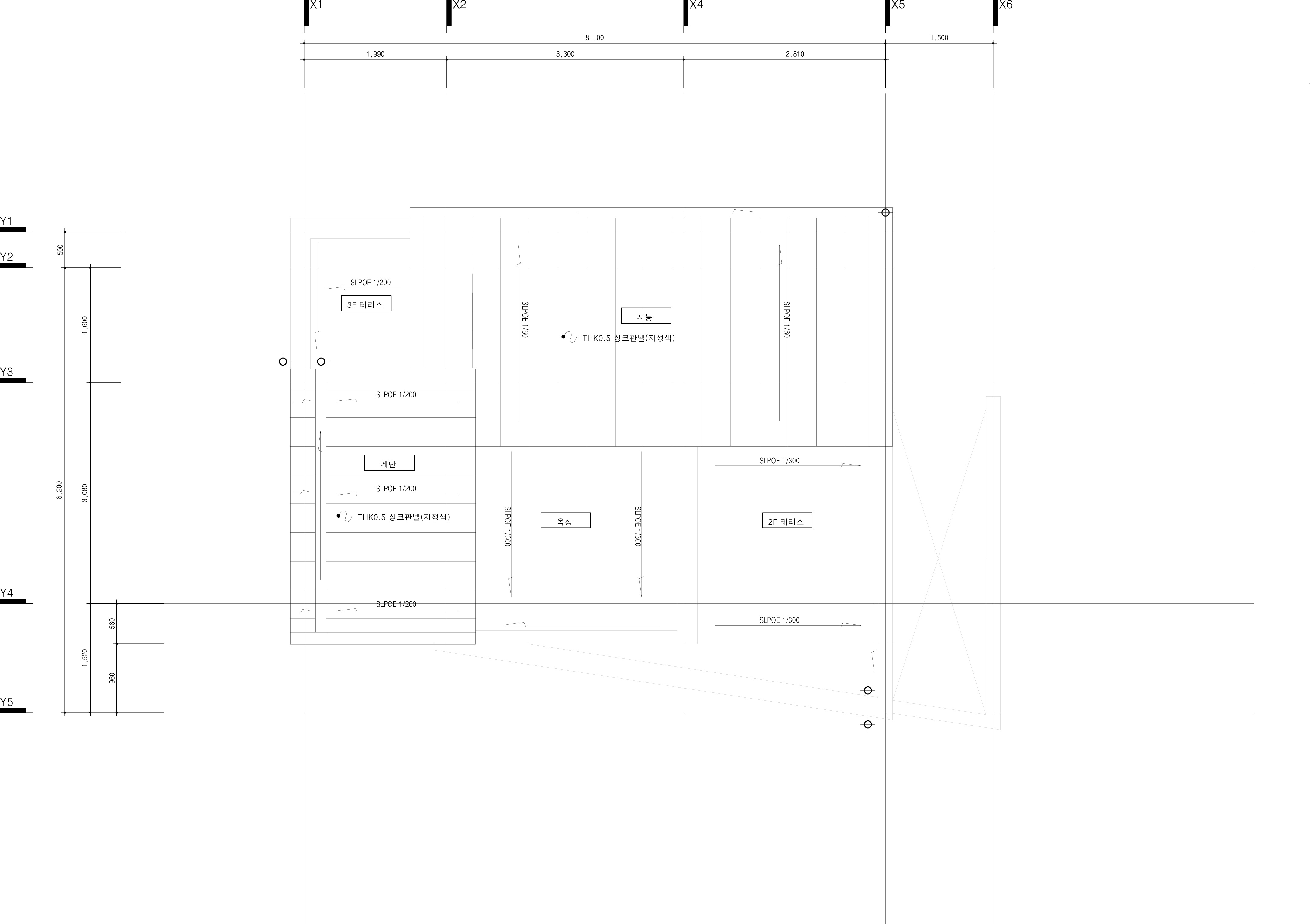
<건축개요>
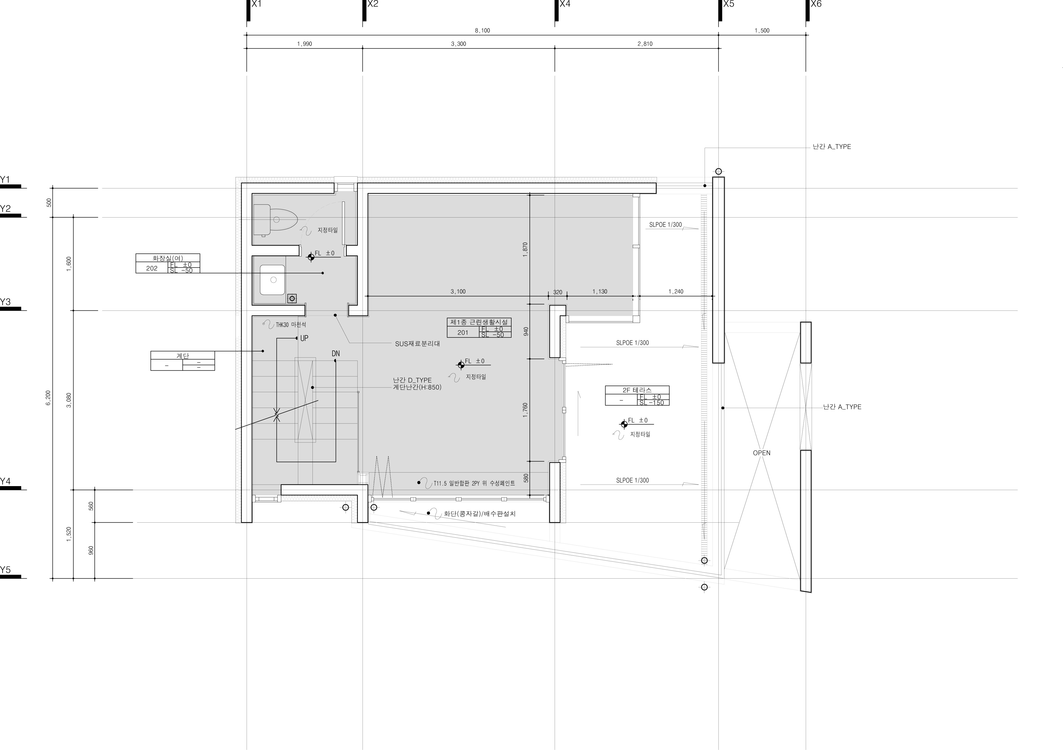
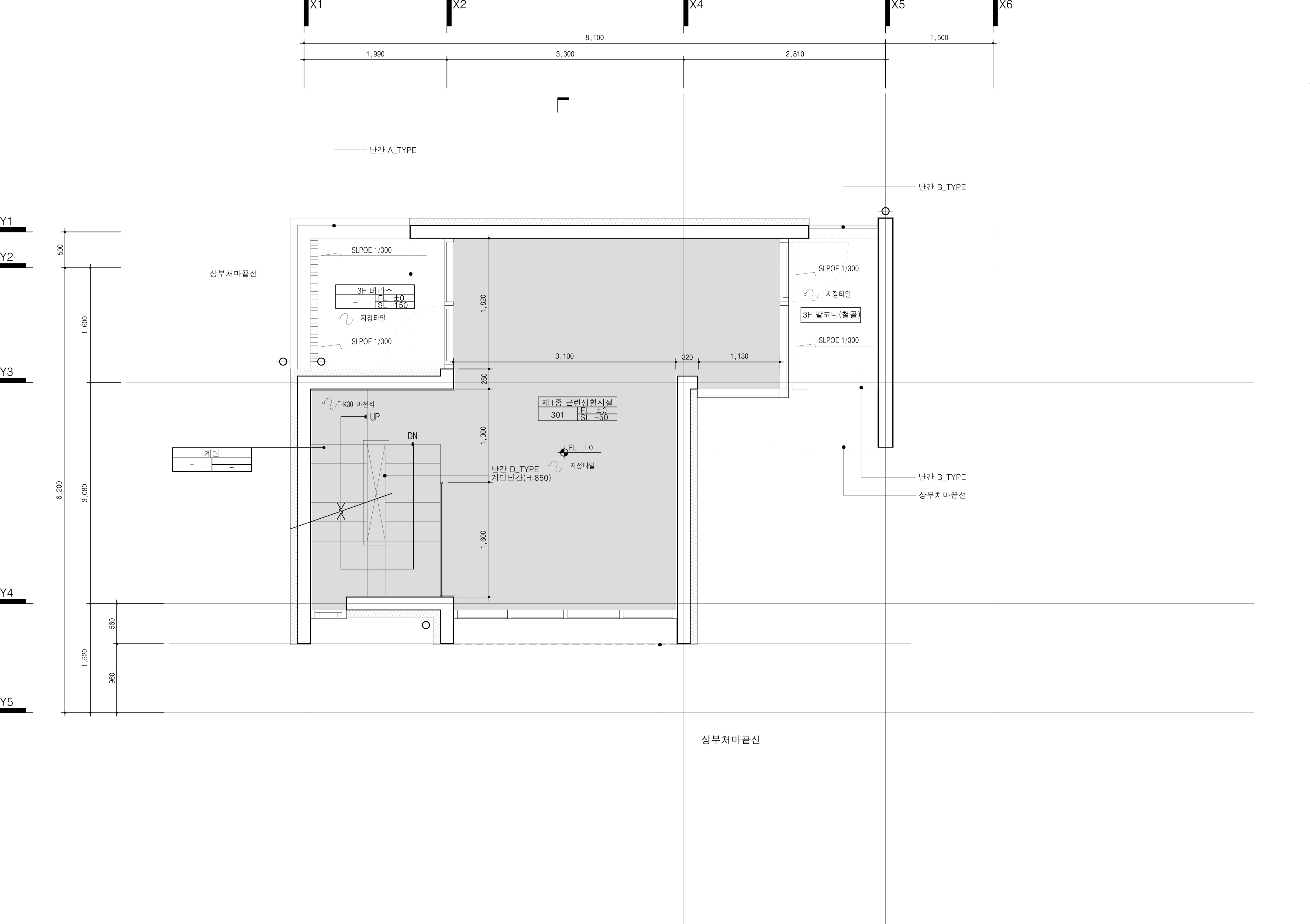
대지위치 창원시 마산회원구 회원동 / 지역지구 일반상업지역, 제3종 일반주거지역 / 대지면적 94m² / 용도 근린생활시설 휴게음식점 / 규모 지상3층 / 구조 철근콘크리트 평지붕 / 건축면적 51.35m² / 연면적 99.64m²(1층 41.79m², 2층 31.5m², 3층 26.80m²) / 주차장 설치제외





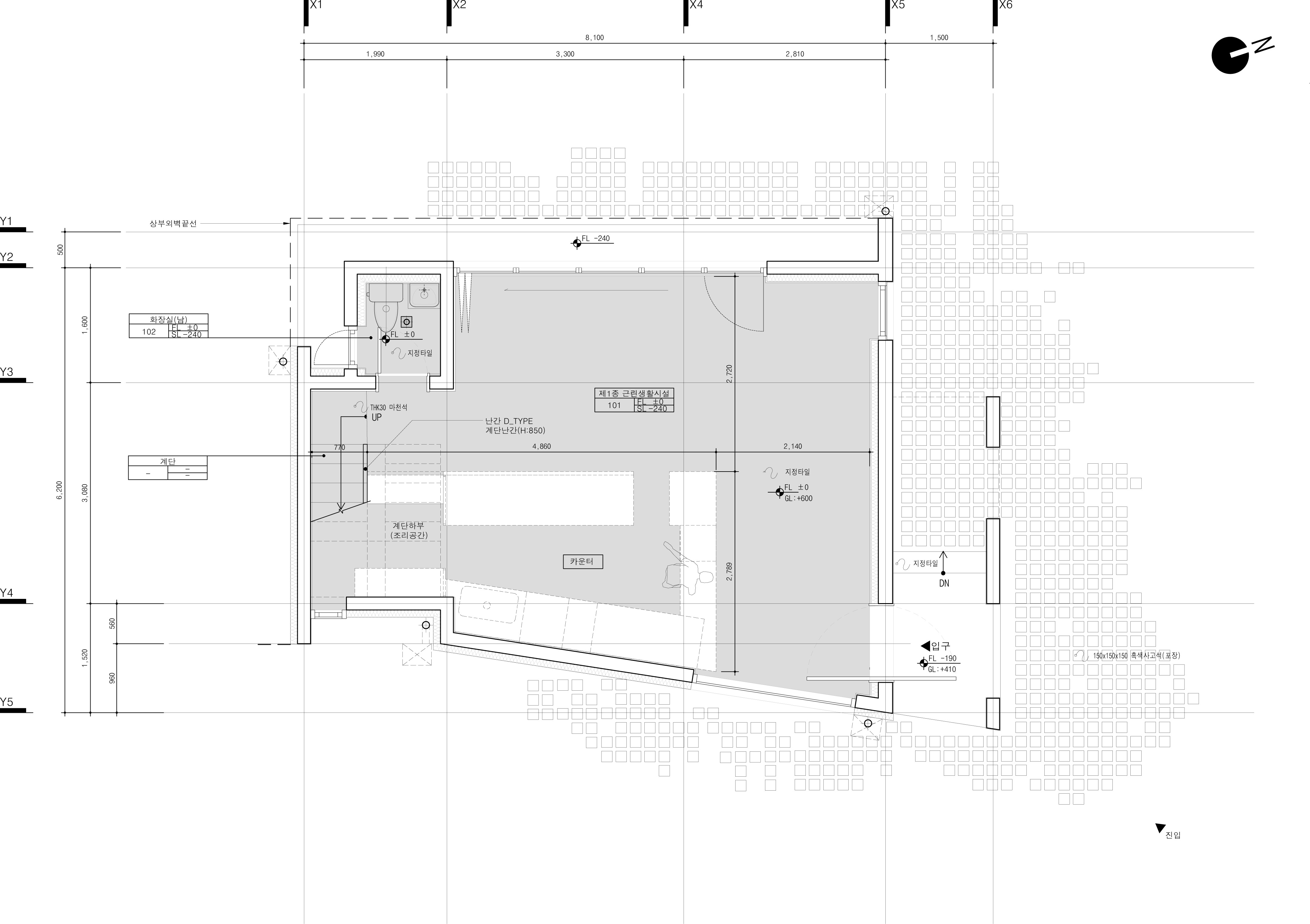
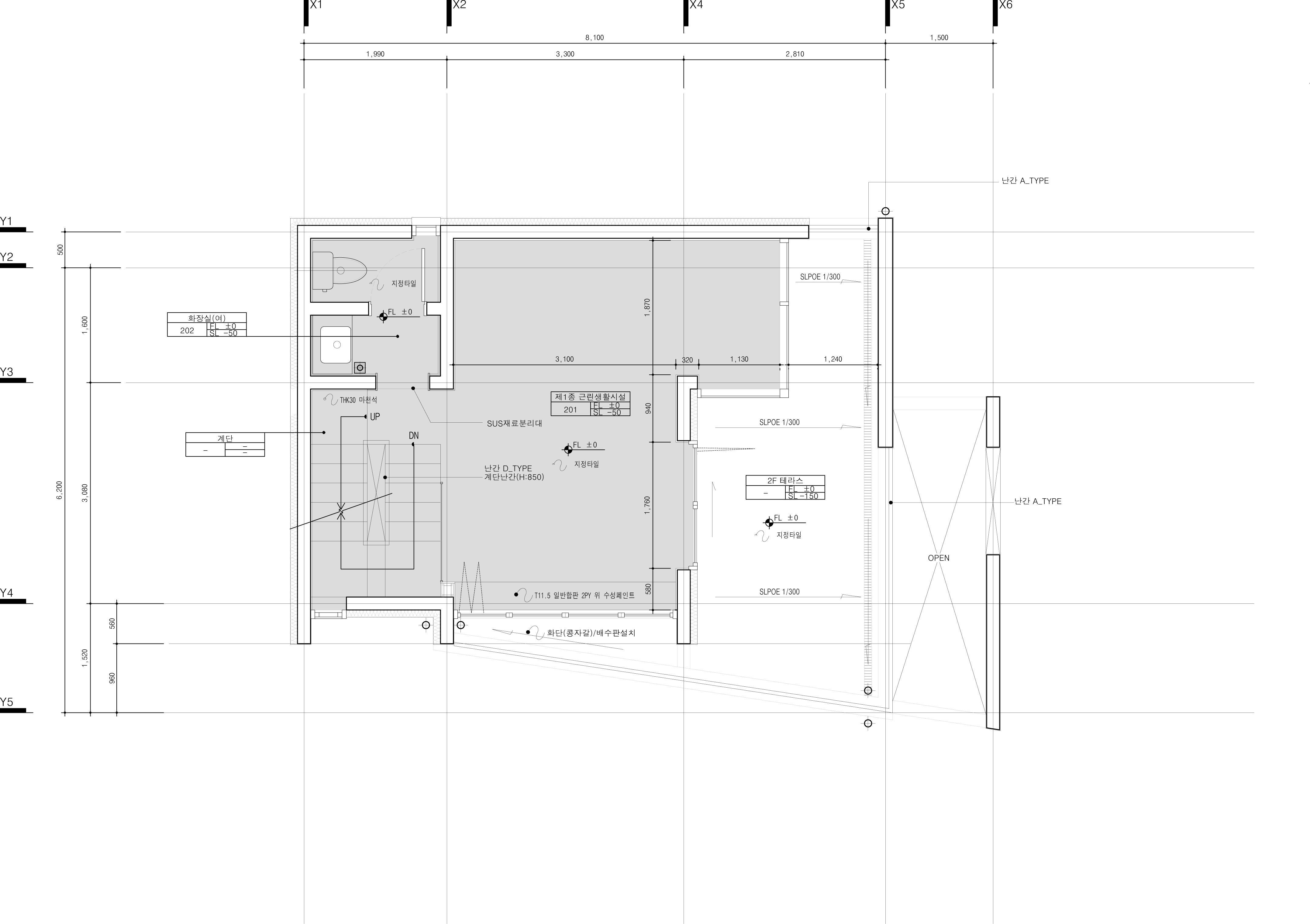
평면 계획
작은 공간일수록 세심하게 고민해야 한다. 계단과 화장실의 적정한 크기와 비율, 한 층의 높이 설정이 카페의 매장면적을 좌우하기 때문이다. 1층 카운터의 배치에 따라 매장 테이블의 구성이 결정된다. 건축주는 카페의 메뉴와 조리의 동선을 고민하여, 전자제품을 결정하고 배치한다. 십 수 번의 미팅을 했지만, 아직도 건축주는 매일 밤 메뉴 개발에 밤잠을 설친다. 앞으로 매장에 흘러나오는 뮤직 플레이리스트, 시간이 지날수록 공간을 채워주는 조경, 고객의 시간을 책임지는 편안한 가구, 멀리서도 인지할 수 있는 간판 등 차근차근 동네의 분위기가 바뀔 것이다.





부분 컷
입구는 개구부의 위치를 다양화하여 카페의 영역과 카페 외부의 경계에서 호기심을 유발하고, 입구에서 카페의 주출입문까지 가급적 늦게도 달 할 수 있게 하고자 한다. 실내의 분위기는 건축주의 의견을 최대한 반영하여 블랙과 화이트를 사용하여 공간의 분위기를 만들었다.
위층으로 올라갈수록 면적이 작아지고, 그러면서 자연스럽게 생기는 외부공간 테라스는 실내 매장의 연속적인 공간과 분위기를 연출하고자 한다. 최상층은 건물의 높이로부터 자유롭다. 층고를 다르게 하고, 방위별로 스며드는 햇빛에 의해 작지만 매 순간 다른 분위기를 만들어 낼 것이라고 상상한다.








* MAKE.RE.MAKE는 다양성과 지속가능성, 사회적 문제에 관심을 가집니다.
_
instagram
@makeremake_official : 포트폴리오.
@project. 055 : 마산(창원, 진해)의 도시재생 리노베이션 프로젝트 그리고 건축도시탐구.
_
'신축▶Project > 마산H카페' 카테고리의 다른 글
| 마산H.CAFE│건축세계2월호_회원동카페 소개 | 협소카페 (0) | 2021.02.02 |
|---|---|
| 마산H.CAFE│카페타치스 | 개업 후 구석구석 사진촬영 (0) | 2020.12.30 |
| 마산H.CAFE│마산회원동 H카페 준공후 인테리어 공사 (0) | 2020.06.19 |
| 마산H.CAFE│고객의 시간 | 스타벅스가 확신하는 오프라인의 미래 (1) | 2019.10.19 |
| 마산H.CAFE│공간의 경험 그리고 기억 | 버려진 땅의 기회 (0) | 2019.08.23 |

댓글