반응형
#오늘의pick #단독주택 #리모델링 #리노베이션 #주택디자인 #땅속집
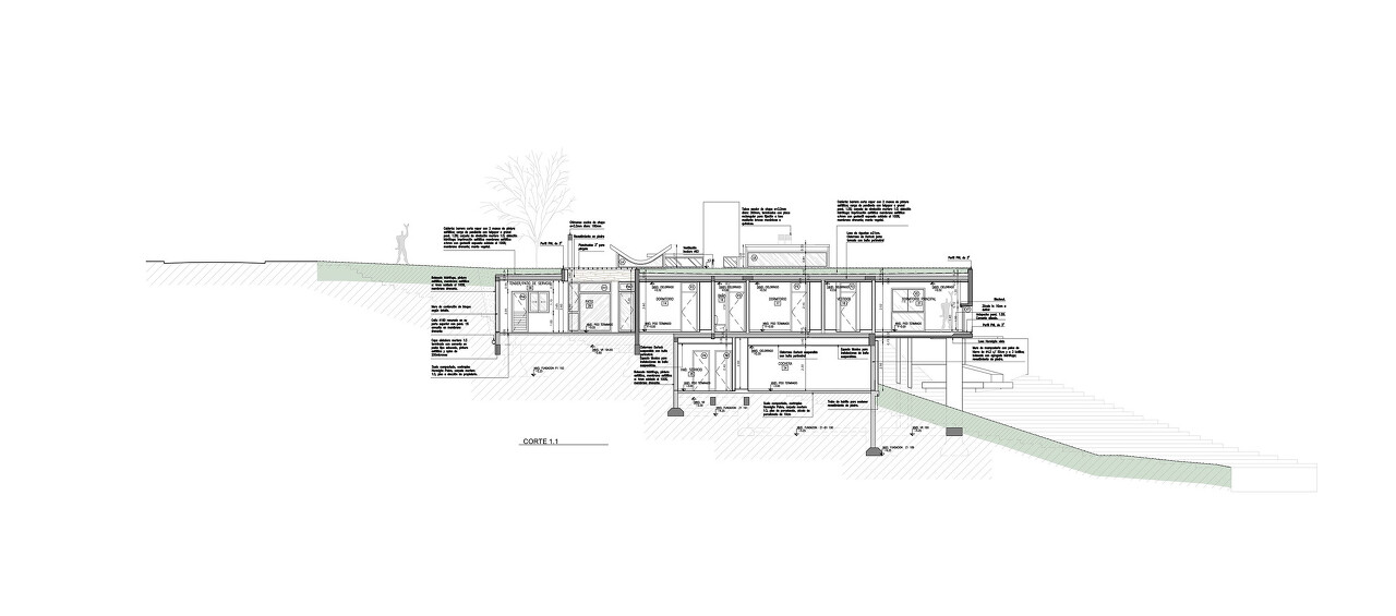
▶ 걸어서 내려가는 기분이 묘한 땅속집 | 경사지를 활용한 옥상녹화 단독주택
경사지를 활용하여 건물을 땅에 묻고 흙과 접하는 부분을 일부 진입정원으로 활용하였다. 경사지의 특성상 다소 지형이 높아 경관이 좋으며, 건물을 평지붕형식으로 전체 옥상녹화를 하여 옥상정원과 원경의 산지가 시각적인 개방감이 연속되도록 건물을 땅속에 묻은 집이다. 부분적으로 채광의 문제가 되는 부분은 천창을 활용하였고, 최고 높은 레벨에서 건물입구로 진입하기 위해서 펼쳐진 전망을 보면서 지하로 내려 걸어가는 기분이 신비롭기까지 하다. 옥상의 녹지와 돌을 쌓아만든 옹벽이 지형적 특징을 강조하며 주변경관과 어우러짐이 좋은 주택이다.
Text description provided by the architects. The functional program for this house is pretty conventional. On the ground floor the are 3 bedrooms, the main one with dressing room and a private bathroom , and the other ones with a shared bathroom; it also includes a spacious kitchen with a special place for breakfast, both with visual to the courtyard, and a dining and sitting room integrated with the gallery.













참고 및 인용
* MAKE.RE.MAKE는 다양성과 지속가능성, 사회적 문제에 관심을 가집니다.
_
instagram
@makeremake_official : 포트폴리오.
@project. 055 : 마산(창원, 진해)의 도시재생 리노베이션 프로젝트 그리고 건축도시탐구.
반응형
'__REF > House' 카테고리의 다른 글
| 주택 디자인| 작지만 완벽한 시골주택 | Shelter in Montaria | 2015 (0) | 2023.08.13 |
|---|---|
| 주택 디자인| 작은집도 넓게 사용할 줄 아는 주택 | House in Mukainada | 2015 (0) | 2023.08.11 |
| 주택 디자인| 접힌 벽 하나로 설명되는 주택 | House with One Wall | 2007 (0) | 2023.08.11 |
| 주택 디자인 | CASA BOBBANARRING | 2022 (0) | 2023.07.11 |
| 주택 디자인 | HOUSE LC | 2017 (0) | 2023.07.05 |

댓글