#오늘의pick #단독주택 #리모델링 #리노베이션 #포르투갈 #시골주택 #작은집
▶가파른 경사지에 지혜롭게 앉혀진 완벽한 작은주택 | 시골주택
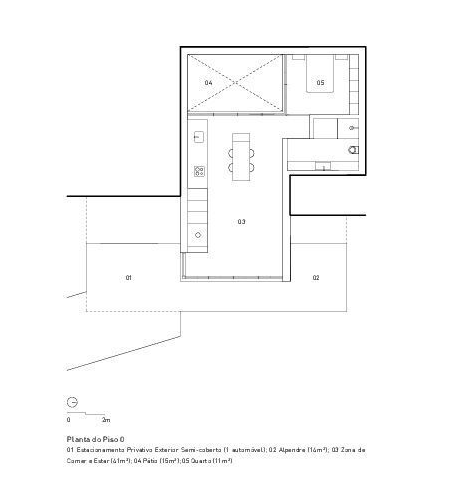
Portuga Montaria(포르투갈) 지역의 시골 마음에 위치한 가파른 경사지 주택이다. 지형이 가파르고 건물을 뒷쪽으로 후퇴하여 시골길의 풍경을 해치지 않는 방향으로 디자인이 되다보니 주택의 일부가 땅에 묻혀지게 되어 지면과 닿는 뒷부분을 중정을 만들어 채광과 환기를 좋게 하였다. 주택은 거실,주방이 하나의 공간으로 되어 있고, 침실과 침실에 딸린 화장실이 거실과 연결된 60제곱미터(15평)정도의 작은 규모의 단층주택이다. 주택 상부의 옥상은 실외수영장으로 되어있으며, 외부계단을 통해 연결된다. 지붕의 수영장으로 인해 필로티와 같은 비를 피하는 처마와 같은 넓게 구성되어 거실과 주방와 연계되어 공간을 활용하고 있다. 옥상 수영장을 지탱하고 있는 상부의 콘크리트 덩어리가 건물의 깊은 처마를 만들면서 건물의 조형을 만들어 내고 있다. 콘크리트 재료는 시간이 지나면서 기존 시골의 풍경에서 쉽게 보이는 돌(외벽, 산, 마닥 등)과 어우러질 것 같다.
Text description provided by the architects. The shelter is located on steep terrain on the edge of the village, with a privileged view over the Serra d’Arga mountains. The building occupies the space of the existing ruin.













참고 및 인용
2.Carvalho Araújo
* MAKE.RE.MAKE는 다양성과 지속가능성, 사회적 문제에 관심을 가집니다.
_
instagram
@makeremake_official : 포트폴리오.
@project. 055 : 마산(창원, 진해)의 도시재생 리노베이션 프로젝트 그리고 건축도시탐구.
'__REF > House' 카테고리의 다른 글
| 주택 디자인| 기후를 반영하는 건축과 공간 | Jungle House | 2016 (0) | 2023.08.22 |
|---|---|
| 주택 디자인| 다섯개의 지붕으로 하나가 된 집 | in Nagoya | 2011 (2) | 2023.08.21 |
| 주택 디자인| 작은집도 넓게 사용할 줄 아는 주택 | House in Mukainada | 2015 (0) | 2023.08.11 |
| 주택 디자인| 경사지에 딱 어울리는 주택 | Santiago Viale | 2015 (0) | 2023.08.11 |
| 주택 디자인| 접힌 벽 하나로 설명되는 주택 | House with One Wall | 2007 (0) | 2023.08.11 |

댓글