본문 바로가기
__REF/Public

유치원 디자인| 모서리가 둥근 공간 전략 | Sanmin Kindergarten | 2020

by PD피디 2023. 8. 14.
반응형

 #오늘의pick #유치원 #모서리벽 #공간전략 

 

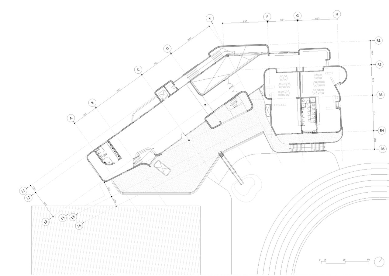
▶모서리 벽을 둥글게 처리한 유치원 건물의 공간전략 

 

평면의 모든 벽체 모서리를 직각이 아닌 곡면으로 구부려 다양한 공간과 연속적 공간을 만들어낸다. 아이들의 안전한 학교생활을 고려한 모서리 디자인이기도 하다. 모든 구조적 벽은 직선과 곡선의 조합으로 되며 효율성과 유동성 그 어딘가의 균형을 이루려고 한다. 벽의 볼록면과 오목면의 반복은 공간 사용면에서도 이중적인 효과를 누리고 있다. 

모서리가 곡면 처리되어 공간을 끝을 파악하기 어려워 지속적으로 호기심을 유발하고 있며, 그 효과는 실내에서 뿐 아니라 실외에서도 동일하게 확장 적용된다. 색상에 있어서는 흰색 배경의 유치원 건물은 아이들의 알록달록한 패션과 그 옷을 입고 활동하는 그 모습이 더욱 부각하는데 도움을 준다. 유치원 건물이라고 모든 것이 복잡하고 혼란스럽게 치장할 필요는 없을 수 있다. 주인공은 어린이이니까.

 

Text description provided by the architects. From children’s view: Explore by instinct: Feelings of ambiguous space will be engraved in children’s memories. They sense and react to space with unique viewpoints as undefined uses allow numerous possibilities for children’s creativity. Since their bodies and mind are rapidly growing, the design imagines a place that provides for more inspiration and exploration on every scale.

Fieldevo Design Studio ,  linboyang architect

Fieldevo Design Studio ,  linboyang architect

 

Fieldevo Design Studio ,  linboyang architect

 

Fieldevo Design Studio ,  linboyang architect

 

Fieldevo Design Studio ,  linboyang architect

 

Fieldevo Design Studio ,  linboyang architect

 

Fieldevo Design Studio ,  linboyang architect

 

Fieldevo Design Studio ,  linboyang architect

 

Fieldevo Design Studio ,  linboyang architect

 

Fieldevo Design Studio ,  linboyang architect

 

Fieldevo Design Studio ,  linboyang architect

 

Fieldevo Design Studio ,  linboyang architect

 

Fieldevo Design Studio ,  linboyang architect

 

Fieldevo Design Studio ,  linboyang architect

Fieldevo Design Studio ,  linboyang architect

 

Fieldevo Design Studio ,  linboyang architect

 

Fieldevo Design Studio ,  linboyang architect

 

Fieldevo Design Studio ,  linboyang architect

 

Fieldevo Design Studio ,  linboyang architect

 

Fieldevo Design Studio ,  linboyang architect

 

Fieldevo Design Studio ,  linboyang architect

 

Fieldevo Design Studio ,  linboyang architect

Fieldevo Design Studio ,  linboyang architect

 

Fieldevo Design Studio ,  linboyang architect
Fieldevo Design Studio ,  linboyang architect

 

Fieldevo Design Studio ,  linboyang architect

 

Fieldevo Design Studio ,  linboyang architect

 

 


 참고 및 인용 

1. https://www.archdaily.com/

2.Fieldevo Design Studiolinboyang architect

 


* MAKE.RE.MAKE는 다양성과 지속가능성, 사회적 문제에 관심을 가집니다. 
_
instagram
@makeremake_official : 포트폴리오.

@project. 055 : 마산(창원, 진해)의 도시재생 리노베이션 프로젝트 그리고 건축도시탐구.

PROJECT.055 INTRO ↖

 

반응형

댓글