#오늘의pick
#리모델링 #리노베이션 #인테리어 #학교디자인
#공간혁신 #미래학교 #러닝허브
▶개인의 배움 차이는 다양한 학습공간을 조성하는 것에서 시작한다 | 러닝허브 | 러닝센터 | 커먼스공간 | 라운지
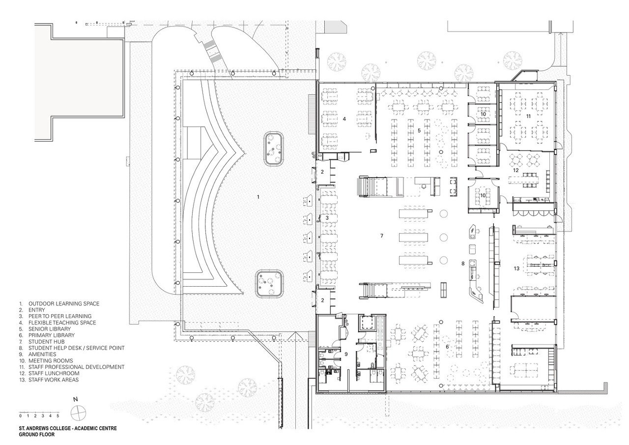
학교는 배움을 위한 모든 활동을 위해 유연한 공간을 제공하고 있다. 건물에 들어서기 전에 넓은 필로티와 같은 지붕이 덮여 있는 외부공간이 만들어져 있다. 비를 피하는 공간이면서, 외부에서 활동이 가능하다. 기둥에 의해 활동이 침해받지 않도록 충분한 경간을 가지고 있으며, 유선형의 곡선으로 구성된 계단식 공간은 만남과 대화, 소통, 잡담, 휴식, 낮잠 등 무엇이든 할 수 있는 공간이면서 외부이기 때문에 답답하지 않다. 이 공간이 1층 진입을 하면 1~2층이 개방된 복층형의 라운지를 만나게 된다. 외부공간과 내부공간이 구분되어 있지만, 시각적으로는 연결되어 상당히 개방된 공간으로 연출된다.
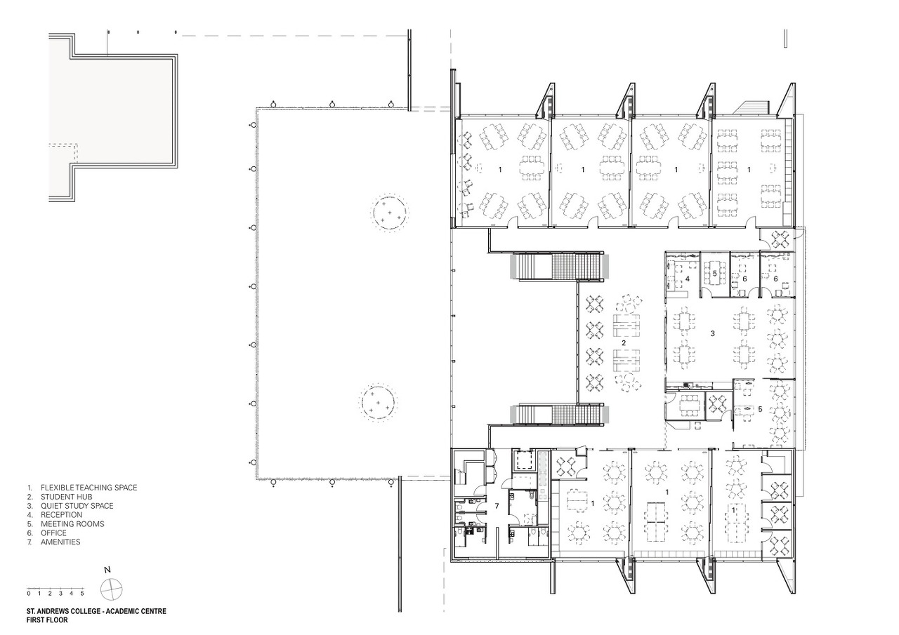
1층 입구에서는 학습이나 활동을 위한 Student hub가 중심에 자리 잡고 그 주변으로 도서실을 Senior와 Primary 두 구역으로 나눠 오픈형(open)으로 조성되어 있다. 도서실은 그룹 활동을 위한 소규모 Meeting room이 여러 개 연계되어 있다. 학생이 사용하는 공간을 입구 전면에 최대한 배치하고, 후면에 교사 또는 교수를 위한 준비공간과 작업공간, 식사공간을 따로 만들어 두고 상호 간에 교류가 어렵지 않도록 구분 지어 놨다. 2층은 1층을 내려다 보일 수 있는 개방된 공간구성과 교실은 교실과 교실의 벽을 변형할 수 있는 구조로 하여 교실사용의 규모가 변형되어야 할 때 활용할 수 있다.1층 외부공간과 1층 Student hub와 2층 Student hub가 연결되는 공간은 동선과 시선을 개방적으로 확보하고, 학생들이 학습과 학습에 필요한 공간 그리고 휴식과 기타 다양한 활동을 할 수 있도록 우선배치되어 있다.
교실 위주의 공간에서 조금은 벗어나 학교 구석구석을 이용하며 자신에게 맞는 공간에서 학습할 수 있도록 다양성 공간을 조성할 필요로 하고, 학습 방벙에 따른 교실의 크기도 세분화될 필요가 있다.
Text description provided by the architects. Wilson Architects has designed a new Learning Hub for St Andrew’s Anglican College – a rapidly-growing school on the Sunshine Coast. The Learning Hub incorporates primary and secondary school libraries, multiple collaborative teaching spaces, staff offices, professional development care, several student lounges and an expansive outdoor learning area. St Andrew’s Anglican College Principal Chris Ivey says the Learning Hub has seamlessly integrated with the school, and students are taking full advantage of the learning opportunities it presents. “I have spent chunks of time each day in the Hub, observing the way our students are using the facility, and it is wonderful to see them using it as if it has always been there,” Chris says.
- Area: 3280 m²
- Year: 2016
- Wilson Architects













참고 및 인용
1. designboom.com
2. wu hailong
MAKE.RE.MAKE는 다양성과 지속가능성,
사회적 문제에 관심을 가집니다
_
instagram
@makeremake_official : 포트폴리오
@project. 055 : 마산(창원, 진해)의 도시재생 리노베이션 프로젝트 그리고 건축도시탐구

'__REF > Public' 카테고리의 다른 글
| 회복센터| 암환자의 회복을 위한 센터 | 2011 | REHABILITATION CENTER (0) | 2023.10.18 |
|---|---|
| 유치원 디자인| 자연과 건물이 경계가 없는 학교 | 2023 | Lovell International School (0) | 2023.09.26 |
| 유치원 디자인| 레고와 같은 구성으로 된 벽돌집 유치원 | 2016 (0) | 2023.09.01 |
| 유치원 디자인| 모서리가 둥근 공간 전략 | Sanmin Kindergarten | 2020 (0) | 2023.08.14 |
| 학교 디자인| 회랑에서 만남이 이루어지는 Shanfeng Academy | 2023 (0) | 2023.08.03 |
댓글