#오늘의pick
#호텔 #스테이 #리조트 #라운지
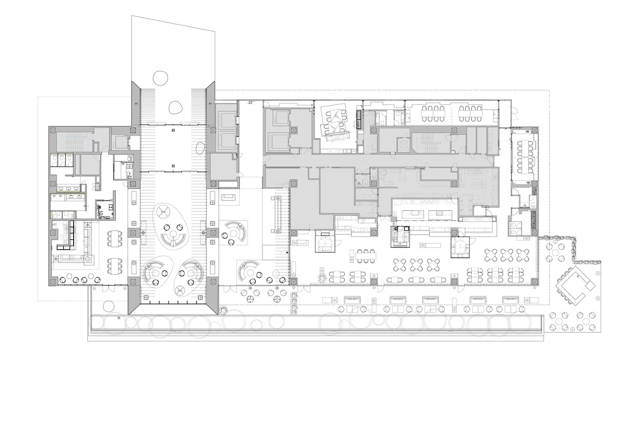
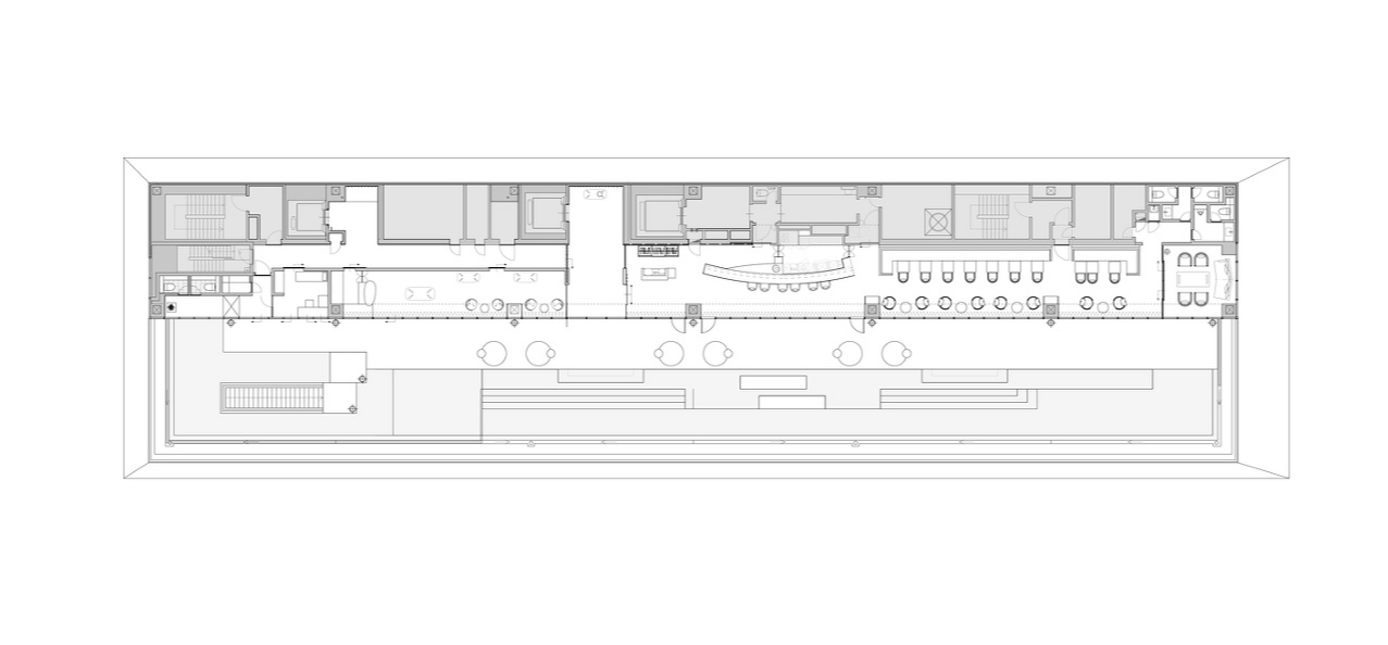
▶자연 속 여행을 연상케하는 라운지가 인상적인 호텔
도쿄 신주쿠에서 30분 거리에 있는 다 치카와시에 있는 신도기개발의 주요시설 중 하나이다. 호텔은 '웰빙(Wellbeing)'을 컨셉으로 건강을 생각하는 활동을 제공하는 '웰빙 단기 여행'이라는 새로운 휴가 스타일을 제안합니다. 호텔 로비는 입구와 로비를 연결하는 텐트형태의 디자인으로 인해 자연속 여행을 연상케 한다. 로비는 외부정원과 직접적으로 연결되고 루버형식의 텐트형태는 선형의 루버로 조성되어 가벼운 분위기로 디자인되어 있고, 층고가 높은 공간으로 구성되어 있다. 따뜻한 분위의 조명과 재료를 사용하여 편안한 분위기를 제공하고 있다.
81개의 객실은 공원으로 전망하도록 일자형으로 배치되어 있으며 현대적인 스타일과 일본 미닫이를 연상하는 와시 스크린이 있는 종이질감으로 된 미닫이문을 사용하고 있다. 객실의 조명은 펜턴드, 매립등, 간접등이 다양하게 사용되어 밝기의 조절로 인한 공간의 입체감을 표현되어 있다.
10층과 11층은 웰빙체험공간으로 실내스파, 인피니티풀에서 전경을 감상할 수 있고 온천수를 사용하여 20미터 길이의 월풀 자쿠지스파, 나노미스트 사우나 등의 프로그램이 제공된다. 인피티니풀은 폭4미터에 길이 60미터의 인상적인 인피티니 규모를 자랑하고 후지산이 보이는 전망의 최대한 개방한 구성으로 자연과 일체감을 느끼게 하고 있다.
Text description provided by the architects. SORANO HOTEL is one of main facilities in new-born urban development in Tachikawa city, 30 minutes away from Shinjuku, Tokyo. With the concept of “Wellbeing”, the hotel suggests us a new holiday style, “Wellbeing short trip”, offering health conscious activities. Located in the area adjacent of renown National Park, the luscious green and amazing view are captured in all interior.










10층과 11층은 웰빙체험공간으로 실내스파, 인피니티풀에서 전경을 감상할 수 있고 온천수를 사용하여 20미터 길이의 월풀 자쿠지스파, 나노미스트 사우나 등의 프로그램이 제공된다. 인피티니풀은 폭4미터에 길이 60미터의 인상적인 인피티니 규모를 자랑하고 후지산이 보이는 전망의 최대한 개방한 구성으로 자연과 일체감을 느끼게 하고 있다.












객실의 조명은 펜턴드, 매립등, 간접등이 다양하게 사용되어 밝기의 조절로 인한 공간의 입체감을 표현되어 있다.



참고 및 인용
1. archdaily.com
2. Interior Designers: Curiosity
MAKE.RE.MAKE는 다양성과 지속가능성,
사회적 문제에 관심을 가집니다
_
instagram
@makeremake_official : 포트폴리오
@project. 055 : 마산(창원, 진해)의 도시재생 리노베이션 프로젝트 그리고 건축도시탐구
'__REF > Stay' 카테고리의 다른 글
| 호텔| 전통 처마의 모습을 착안하여 만든 교토호텔 | 2020 | Garrya Nijo Castle Kyoto Hotel (0) | 2024.01.17 |
|---|---|
| 호텔| 하늘을 헤엄치는 기분이 드는 수영장 | 2023 | MYS Khaoyai Hotel (3) | 2023.11.09 |

댓글