반응형
#오늘의 PICK
#건축디자인 #리노베이션
#메이크리메이크 #건축설계
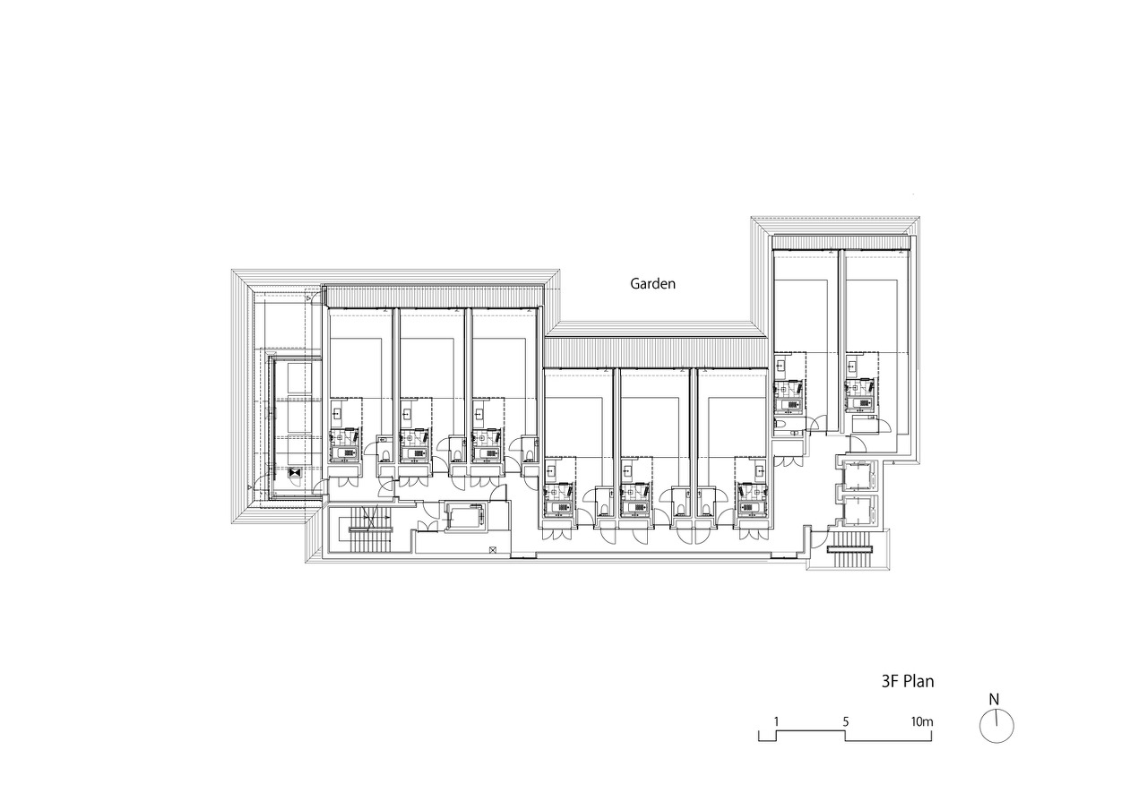
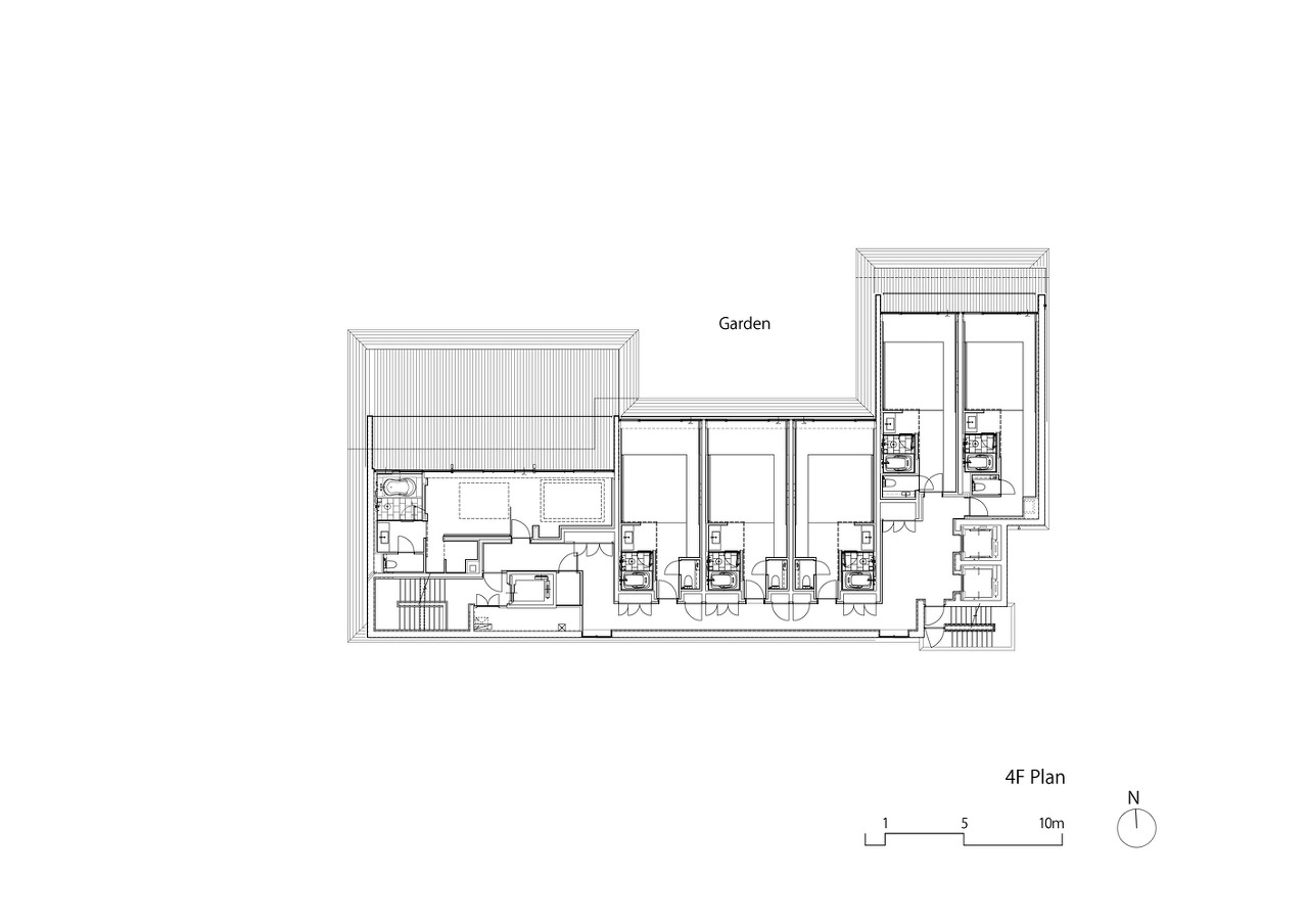
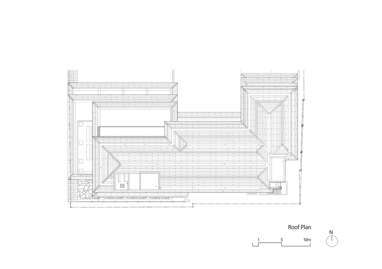
▶전통 처마의 모습을 착안하여 만든 교토호텔
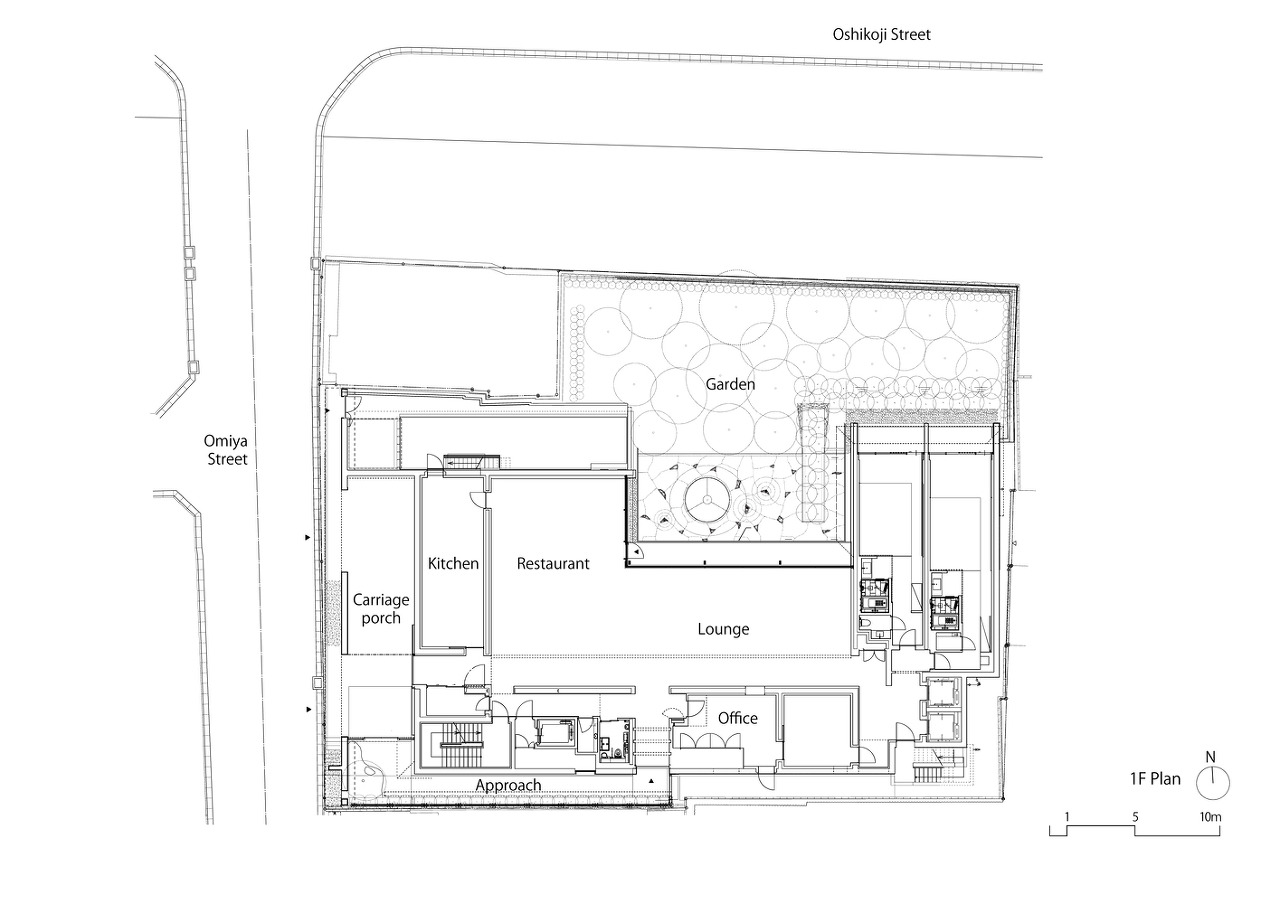
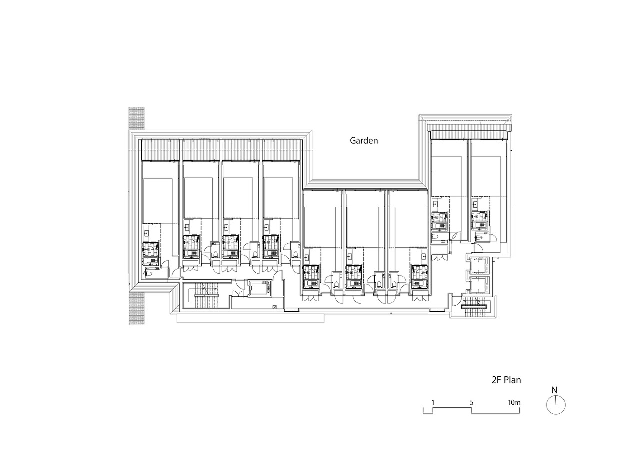
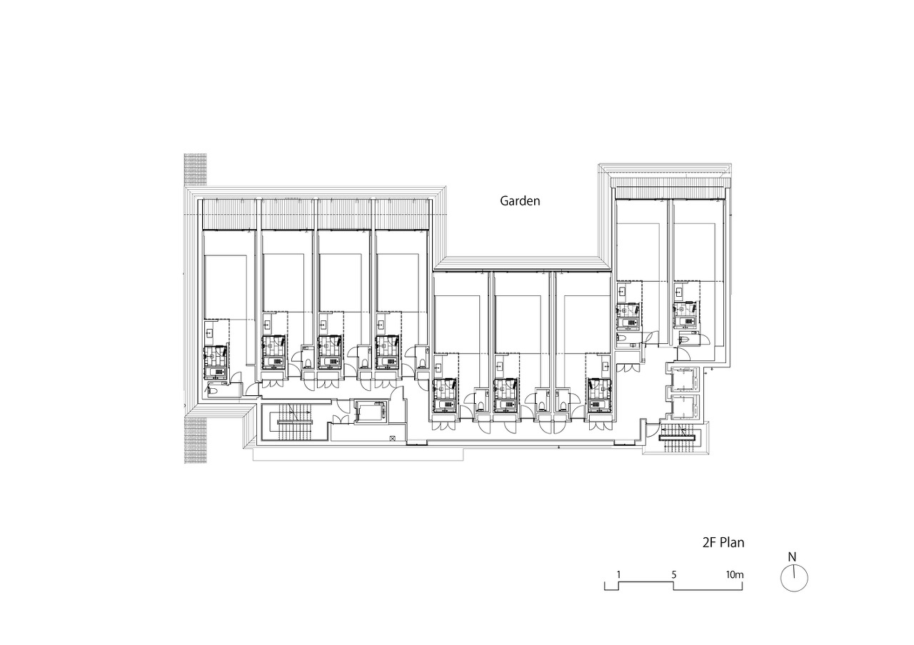
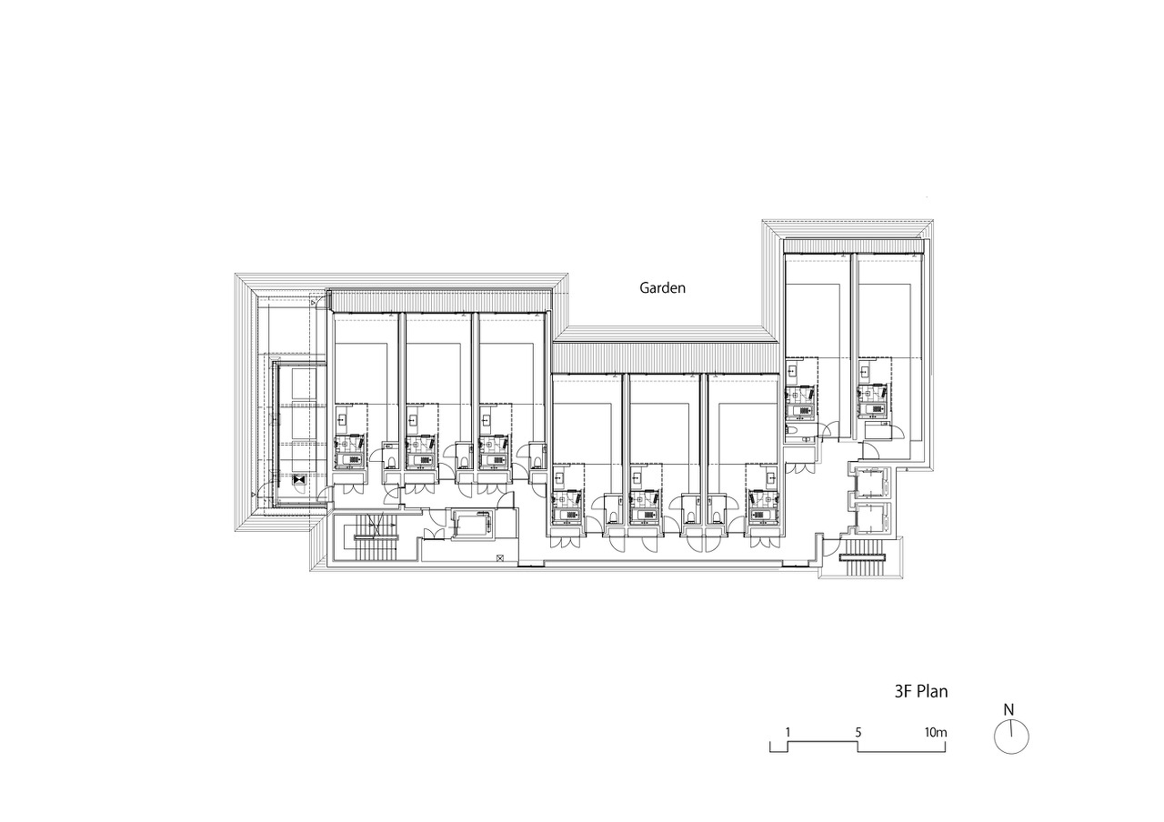
교토의 니조성을 마주보고 있는 위치의 호텔이며 객실 25개 규모의 중후한 공간을 연출하고 있다. 인접건물의 전통건축물에서 보여지는 처마의 모습을 현대적으로 변형하여 도시경관의 조화를 이루고 있다. 처마선과 처마음영으로 인해 건물의 지붕선이 강조되고 있다.
외부 벽돌과 금속처마는 깊은 처마의 모습으로 건축의 깊이감을 강조하고 있으며 내부의 석재와 정원 그리고 수공간은 자연의 모습을 자연스럽게 연출하여 무성한 녹지를 로비공간으로 연속하고 있다.
자연을 끌어들인 로비공간은 천장과 바닥에 목재를 사용하고 두꺼운 돌을 가공하여 테이블로 활용하는 등 마치 정원에 있는 요소를 실내에 사용함으로써 로비공간을 자연속에 있는 것 처럼 연출하였다. 실내와 실외의 경계라고 할 수 있는 창문은 프레임이 없는 방식으로 유리와 유리가 연속되도록 하여 공간의 경계를 흐리고 있다.
Text description provided by the architects. A 25-room luxury hotel, facing Nijo-Jo Castle in Kyoto. Insidethe “flying geese formation” shaped plan (like Nijo-JoCastle and Katsura Imperial Villa), a flow line leads from analley-like approach to an open lobby facing the garden,and on to the guest rooms, luring guests into a secludedretreat with an extraordinary vibe. The lush greenery
isdesigned to be reflected in the garden’s water feature andin the interiors of the lobby and guest rooms like the “sanshi-suimei*” scenery of Nijo-Jo Castle, to create subtle andprofound spaces where the interior and exterior mingle.
- 1. Architects: Jun Mitsui & Associates Architects, TAISEI DESIGN Planners Architects & Engineers
- 2. Area: 2238 m²
- 3. Year: 2020




















*참고 및 인용
1.archdaily.com
*MAKE.RE.MAKE는
다양성과 지속가능성, 사회적 문제에
관심을 가집니다
_
instagram
@makeremake_official : 포트폴리오
@project. 055 : 마산(창원, 진해)의 도시재생 리노베이션 프로젝트 그리고 건축도시탐구
반응형
'__REF > Stay' 카테고리의 다른 글
| 호텔| 하늘을 헤엄치는 기분이 드는 수영장 | 2023 | MYS Khaoyai Hotel (3) | 2023.11.09 |
|---|---|
| 호텔| 라운지가 인상적인 소라노호텔 | Sorano Hotel | 2020 (1) | 2023.08.30 |

댓글