반응형
#오늘의 PICK
#건축설계 #리노베이션 #리모델링
# 아치형주택 #단순함과 다양성
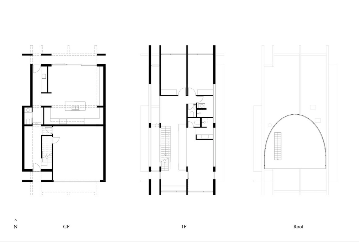
▶단순한 디자인요소와 다양한 공간연출이 가능한 아치형주택
디자인의 단순성으로 만들어진 결과의 공간은 복잡하고 우연한 분위기를 연출하고 있다. 단순한 두가지 유형의 아치는 집의 다양한 움직임과 조망을 제공한다. 1층의 아치와 2층의 아치가 직교방향으로 교차하고 1층은 보행을 위한 아치가 대지너비로 가득차도록 되고, 2층은 아치는 1층과 직교방향으로배치되어 인접집과의 프라이버스를 보호하고 있다.
아치의 형태는 오프닝과 목재, 폴리카보네이트로 나눠져 집의 공간감을 더해주고 있다. 창의크기, 계단난간 디테일, 서재가구, 주방가구 모두가 일관된 디자인으로 집을 설명하고 있다.
Text description provided by the architects. The North Perth House is an urban-in{ll project in inner-city Perth. Located on asmall block, the design responds by providing a variety of spaces, determined by asimple structural arrangement. Eyciencies of construction and economies of trade were key considerations inmanaging a tight budget and a diycult site with restricted access. Concrete pre-cast panels are deployed to be both the {nishing material and thebuilding structure. By using this commercial construction system as the mainconceptual organising principle, the project was able to gain signi{cant budget andtime savings, while maintaining legible design integrity and innovation in housing type.























*참고 및 인용
1. archdaily.com
*MAKE.RE.MAKE는 다양성과 지속가능성,
사회적 문제에 관심을 가집니다
_
instagram
@makeremake_official : 포트폴리오
@project. 055 : 마산(창원, 진해)의 도시재생 리노베이션 프로젝트 그리고 건축도시탐구
반응형
'__REF > House' 카테고리의 다른 글
| 주택 디자인| 곡면과 재료가 빛을 만나 만들어진 감각적인 주택 | 2015 | IRELAND (0) | 2023.09.25 |
|---|---|
| 주택 디자인| 이상한 형태의 대지를 극복하는 협소주택 | 2022 | House in Okamoto (0) | 2023.09.22 |
| 주택 디자인| 생명력을 지닌 주택 | Hemeroscopium House | 2008 (0) | 2023.08.29 |
| 주택 디자인| 기후를 반영하는 건축과 공간 | Jungle House | 2016 (0) | 2023.08.22 |
| 주택 디자인| 다섯개의 지붕으로 하나가 된 집 | in Nagoya | 2011 (2) | 2023.08.21 |

댓글