본문 바로가기
__REF/House

주택 디자인| 생명력을 지닌 주택 | Hemeroscopium House | 2008

by PD피디 2023. 8. 29.
반응형

#오늘의pick

#단독주택 #리모델링 #리노베이션 #PC구조

 

 

▶형태는 없어지고 생명력을 지니는 PC(precast concrete) 구조의 주택 | Fantastic precast concrete Homes 

 

1년 간의 정확한 설계를 통해 7일 만에 현장에서 조립 및 완성되는 건축물로 공사기간을 단축시키고, 시공의 안전성과 정확성, 폐기물을 최소화하는 등 PSC(Prestressed Concrete) 구조 지어진 단독주택이다. 토목에 주로 사용되는 이 구조방식을 건축디자인에 적용하여 구조의 특성과 공장 제작이라는 방식을 주택이라는 건축물에 반영하여 경쾌함 만들어 내고 있다. 밀리미터 단위까지 완벽하게 엔지니어링 된 고정밀 한 건축을 만들어야 하는 디자인으로 절대적으로 단순하고 단일 프로세스로 적용되어야 해야 했을 것이다.  보강재와 빔의 웹을 단순하게 접합하기 위한 강철 막대의 프리스트레스(Prestressed) 및 포스트텐션(Post-tension)의 복잡한 계산을 필요로 했을 것이다.

구조물의 원형인 빔, 돌, 트러스가 창의적 디자인과 엔지니어링 사이에서 공간에 주는 감정의 기폭장치가 되는 강점을 발견하고 이것을 도구로 사용하고 있다. 일반적으로 구조가 완성되면 공간은 이미 거기에 존재한다. 이 집은 구축은 되었으나 형태는 사라지고 놀라운 공간이 만들어졌다. 공중에 떠 있기도 하고 가볍게 느껴지기도 하고, 투명해지는 등 생명력이 흐른다.

 

Text description provided by the architects. For the Greek, Hemeroscopium is the place where the sun sets. An allusion to a place that exists only in our mind, in our senses, that is ever-changing and mutable, but is nonetheless real. It is delimited by the references of the horizon, by the physical limits, defined by light, and it happens in time. Hemeroscopium house traps, a domestic space, and a distant horizon. And it does so playing a game with structures placed in an apparently unstable balance, that enclose the living spaces allowing the vision to escape. With heavy structures and big actions, disposed in a way to provoke gravity to move the space. And this way it defines the place.


Ensamble Studio

Ensamble Studio

 

Ensamble Studio

Ensamble Studio

 

Ensamble Studio

TED.com
Stunning buildings made from raw, imperfect materials_무한한 영감을 주는 건축재료의 실험영상(Débora Mesa Molina)

Ensamble Studio

 

Ensamble Studio
Ensamble Studio

 

 

Ensamble Studio_프로세스

 

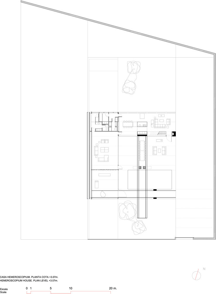
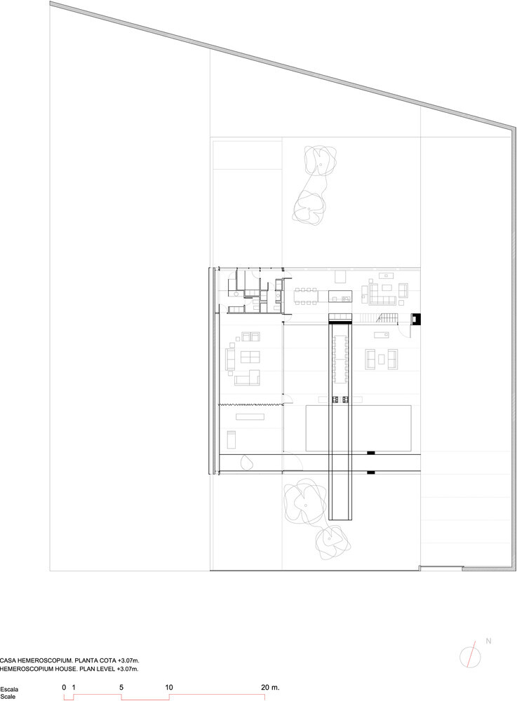
2층 평면도

 

1층 평면도

 

 

 

 


참고 및 인용 

 

1. 7개의 콘크리트 기둥과 20톤의 화강암: 중력의 법칙을 거스르는 집

 

Sette travi di cemento e 20 tonnellate di granito: la casa che sfida le leggi della gravità

Bella e brutale, pesante e leggerissima

www.elledecor.com

2. TED Stunning buildings made from raw, imperfect materials_무한한 영감을 주는 건축재료의 실험영상(Débora Mesa Molina)

 

Stunning buildings made from raw, imperfect materials

What would it take to reimagine the limits of architecture? Débora Mesa Molina offers some answers in this breathtaking, visual tour of her work, showing how structures can be made with overlooked materials and unconventional methods -- or even extracted

www.ted.com

3. Ensamble Studio

 


MAKE.RE.MAKE는 다양성과 지속가능성,

사회적 문제에 관심을 가집니다

_
instagram
@makeremake_official : 포트폴리오

@project. 055 : 마산(창원, 진해)의 도시재생 리노베이션 프로젝트 그리고 건축도시탐구

PROJECT.055 INTRO ↖

 


 

반응형

댓글