#오늘의 PICK
#건축디자인 #리노베이션
#메이크리메이크 #건축설계
▶언젠가는 가질 전망이 좋은 작은주택 | 26제곱미터 | 마이크로주택
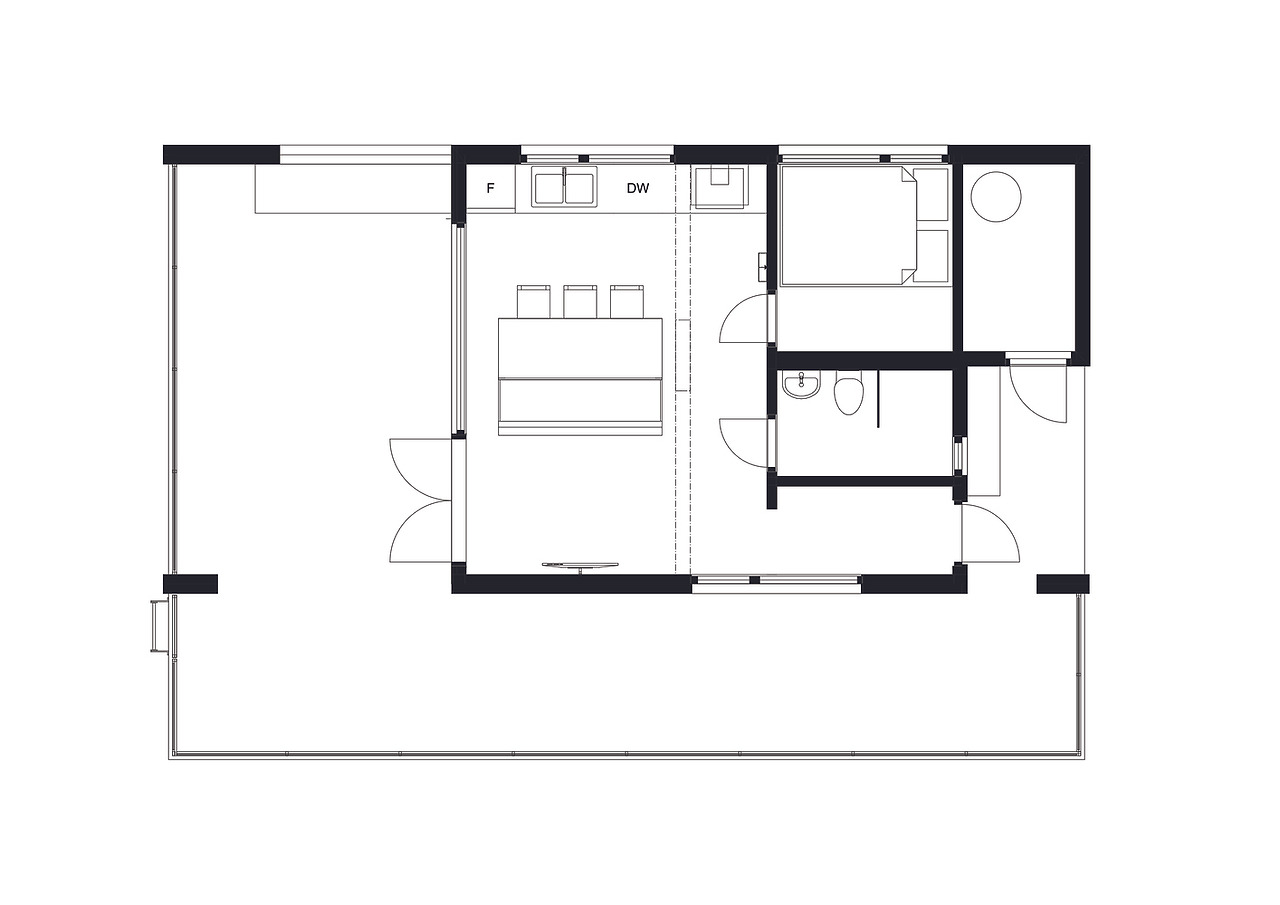
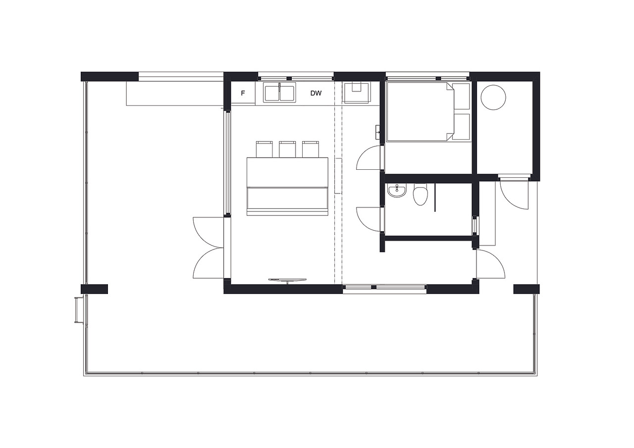
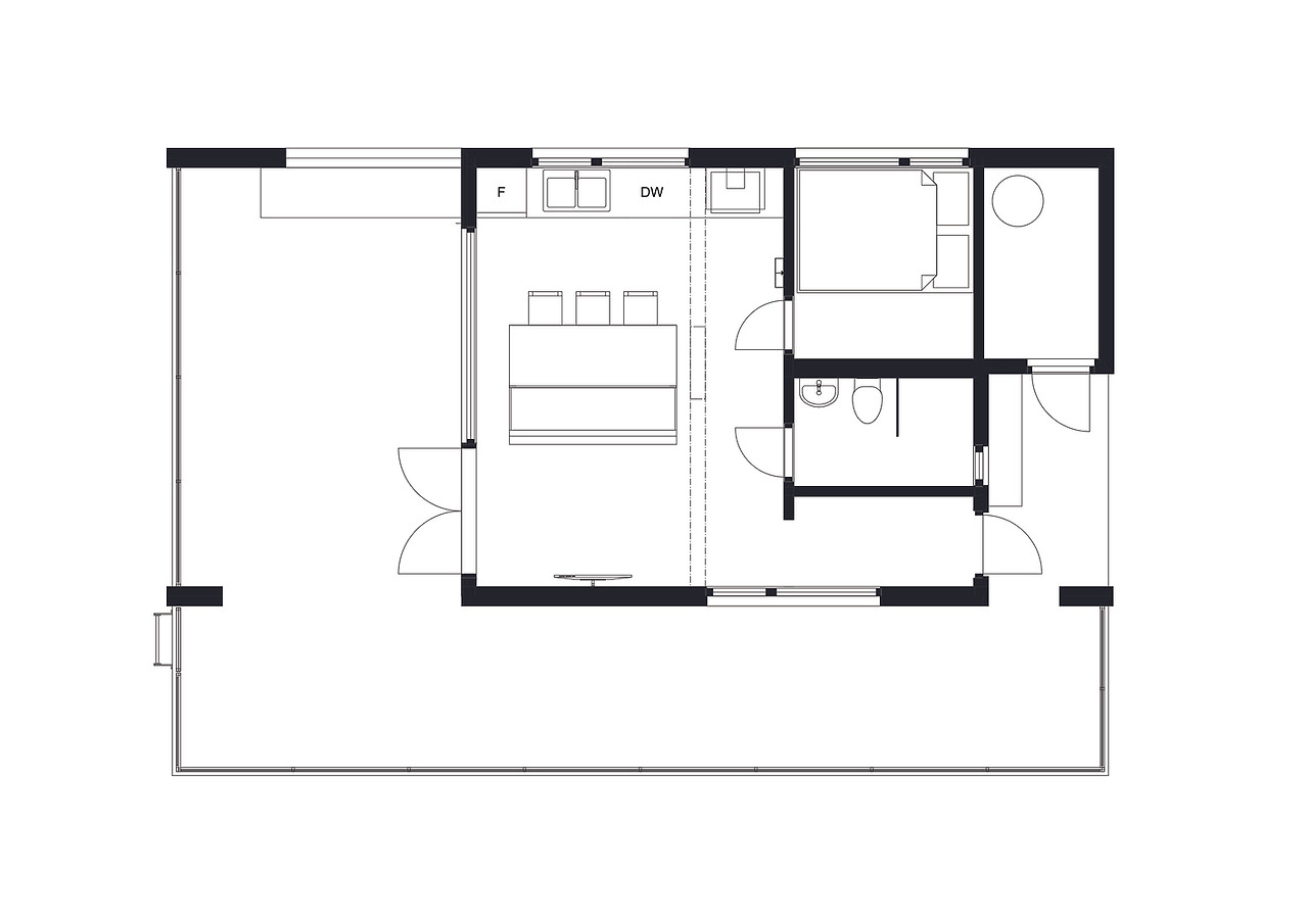
노르웨이 Nisser호수에 위치한 캐빈(오두막집)은 세컨하우스의 개념으로 후가용주택을 위해 제안한 프로젝트이다. 호수가에 있어 물이 강한 열처리목재로 외장마감을 하여 주변 자연적경관과 어우러지게 디자인되었고, 실내 또한 외장재와 유사한 분위기로 목재로 마감되어 내외부의 경계를 줄여 공간의 확장을 시도하고 있다. 경사지붕으로 형태는 다락을 만들고 다락 면적을 포함한 26제곱미터(7.8평)의 좁은 집에서 단순함과 답답함을 해소하고 있다.
퀸사이즈 침대 하나가 겨우들어가는 방 하나와 다락, 샤워가 가능한 욕실, 주방식당과 마지막으로 집 면적에 달하는 호수 전망의 테라스이다. 사실 건물의 디자인도 중요하지만, 건물이 서 있는 위치 또한 중요하다. 이 위치에 있는 건물은 마치 건물이 셀카를 찍기 위해 호수 끝자락에 앉아서 손가락으로 V를 하고 있는 것 같은 모습이라 아찔한 기분도 든다. 최소한의 공간은 편안하고 물건으로 가득찬 집보다는 다소 생활이 불편할 수 있지만, 삶을 풍요롭게 해줄 수 있겠다.
Text description provided by the architects. A local cabin developer contacted Feste Landscape / Architecture to design a floating micro cabin for their portfolio. Due to the local planning restrictions of the Nisser lake in Telemark, Norway, the prototype has been instead designed on stilts. However, the ultimate aim is to develop a floating version of the same cabin in the future. From a sustainability point of view, the micro cabin offers an alternative to the emerging trend in the Norwegian holiday home market of luxury cabins with sprawling footprints. The design attempts to maximise the user’s experience of the lake and the surrounding landscape. The glazed façade between the kitchen/living room and the covered terrace creates a seamless link between the inside and outside.
- 1. Area: 26 m²
- 2. Year: 2017
- 3. Architects: Feste Landscape • Architecture















*참고 및 인용
1. archdaily
2. Feste Landscape • Architecture
*MAKE.RE.MAKE는
다양성과 지속가능성, 사회적 문제에
관심을 가집니다
_
instagram
@makeremake_official : 포트폴리오
@project. 055 : 마산(창원, 진해)의 도시재생 리노베이션 프로젝트 그리고 건축도시탐구
'__REF > House' 카테고리의 다른 글
| 주택디자인| 기존 녹지를 보존하며 배치된 주택| 2023 |House in the Trees (0) | 2024.07.02 | 
|---|---|
| 주택디자인| 정육면체와 비례 |Humo House |2023 (1) | 2024.06.14 | 
| 주택디자인| 지중해의 수평선을 담아내는 집 | 2022 | CTZ2 House (0) | 2023.11.30 | 
| 주택디자인 | 프레이밍(framing)으로 풍경을 담은집 | 2023 | Framing Nature (0) | 2023.11.28 | 
| 주택디자인| 자연과 연결된 숨막히는 집 | 2023 | 브리지햄튼 (1) | 2023.11.24 | 

 
														
													 
														
													 
														
													 
														
													
댓글