#오늘의 PICK
#건축디자인 #리노베이션
#메이크리메이크 #건축설계
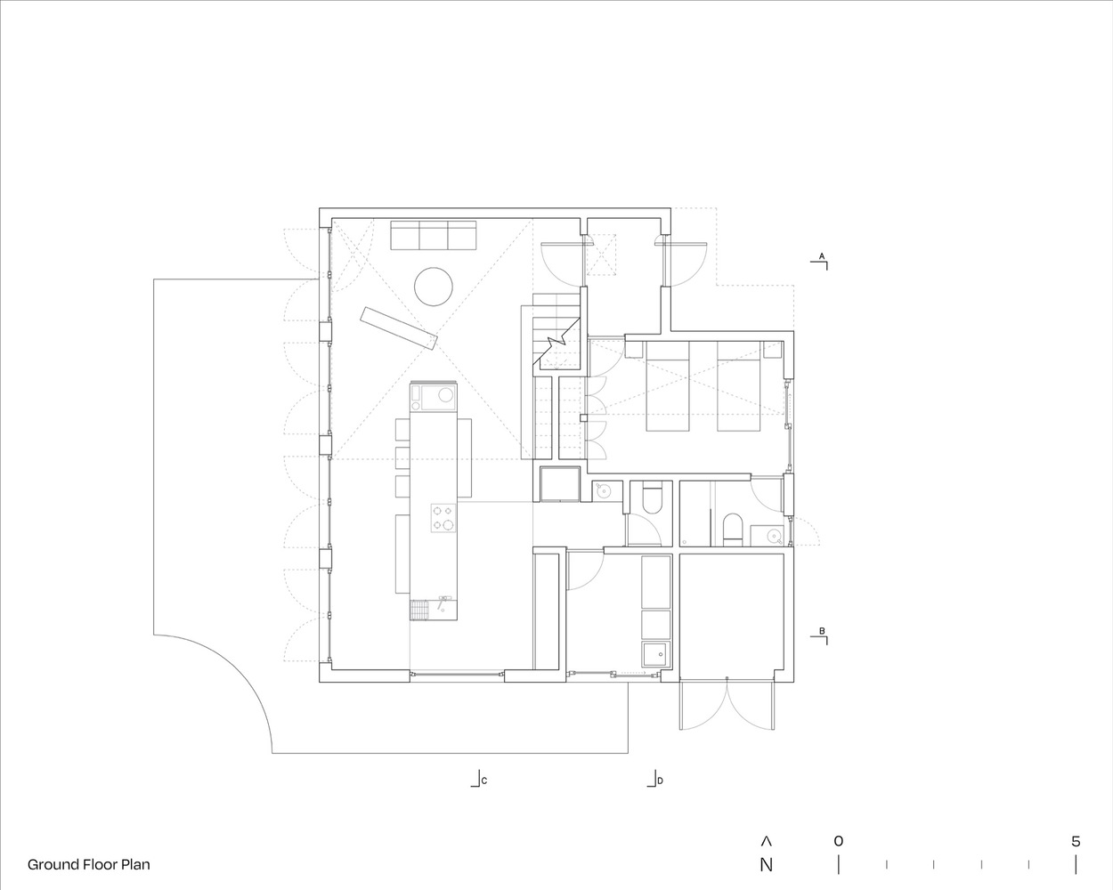
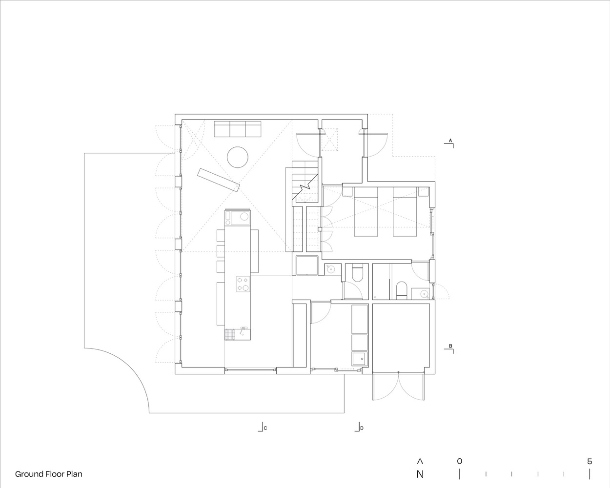
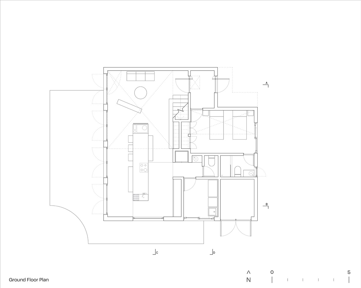
▶정육면체의 틀 속에서 만들어낸 형태와 공간의 정확함
칠레 남부에 위치한 별장으로 호수와 자연 속에 위치하 휴모하우스.
이 주택은 11m의 정육면체의 형태에서부터 시작한다. 정육면체 중에 두 면이 절반으로 갈리면서 호수를 바라보는 높은 면과 별장으로 진입하는 호수 반대편의 낮은 면으로 구분된다.
입구는 낮으며 철저히 숨겨져 있다. 공원 속에 조각물 같이 회색톤의 목재마감으로 되어 도심지에 있는 하얗고 절제된 모던한 건물과는 다르게 자연과 어우러진다.
회색 목재마감은 내부와 외부를 모두 하나의 재료를 사용함으로 인해서 공간의 이동에 따른 연속성을 중요시하였다. 이 연속성은 별장을 사용하는 이용자에게는 보다 확장된 공간의 경험으로 풍부한 감각의 변화를 돕는다.
정육면체의 형태와 절반으로 잘린 비례구도는 건물의 평면과 단면과 입면과 형태의 정확한 질서를 부여하는 중요한 기준이 된다.
Text description provided by the architects. This house was commissioned 10 years ago and only two years ago it was decided to start the project. Despite all this time, both the client's requirements and the site have remained the same. The clients are a couple who have never lived together, each of them lives in their flat, just a few meters away on the same street in the capital. Therefore, this holiday home is the first time they will have their beds under the same roof.
- 1. Architects: Iván Bravo Arquitectos
- 2. Area: 185 m²
- 3.Year: 2023


























*참고 및 인용
1. archdaily.com
2. Iván Bravo Arquitectos
*MAKE.RE.MAKE는
다양성과 지속가능성, 사회적 문제에
관심을 가집니다
_
instagram
@makeremake_official : 포트폴리오
@project. 055 : 마산(창원, 진해)의 도시재생 리노베이션 프로젝트 그리고 건축도시탐구
'__REF > House' 카테고리의 다른 글
| 주택디자인| 기존 녹지를 보존하며 배치된 주택| 2023 |House in the Trees (0) | 2024.07.02 |
|---|---|
| 주택디자인| 최소한의 필요공간과 조망을 가진 작은 주택 | 2017 | Nisser Micro Cabin (0) | 2024.03.29 |
| 주택디자인| 지중해의 수평선을 담아내는 집 | 2022 | CTZ2 House (0) | 2023.11.30 |
| 주택디자인 | 프레이밍(framing)으로 풍경을 담은집 | 2023 | Framing Nature (0) | 2023.11.28 |
| 주택디자인| 자연과 연결된 숨막히는 집 | 2023 | 브리지햄튼 (1) | 2023.11.24 |

댓글