#오늘의pick #건축사례 #리모델링 #주택설계 #리노베이션 #스테이 #카페 #실내디자인 #조명디자인 #평면도
▶자연에게 주연의 자리를 내어 주었지만 주택이 더 빛나는 건물
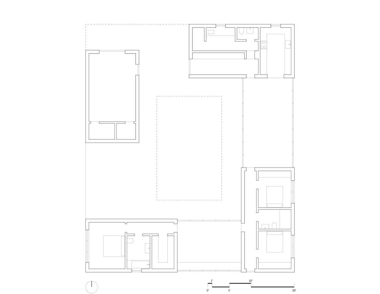
기본구성
-4개의 파빌리온 벽
-경사진 지붕
-깊은처마
-단층
벽과 지붕 등 외부 요소들은 동일한 금속 재료로 처리되어 건조한 분위기의 건물 외관을 형성하고 있습니다. 이 건물은 다소 건조한 느낌을 주지만, 내부 중정과 외부의 녹지와의 조화로운 연결을 통해 건조함을 균형있게 완화시켰습니다. 이러한 건물 외형의 건조함이 오히려 외부 공간에 생명력을 부여한 것처럼 인식되며, 빛과 바람의 향기로 그 생명력이 더욱 활기차 보일 것으로 예상됩니다. 또한, 내부 공간은 외부와는 다른 따뜻한 색상과 재료로 조성되어 따뜻함이 강조됩니다. 내부로 스며드는 빛이 바닥에 반사되어 전체 공간을 감싸며 내부의 아늑함을 촉진합니다.
결국, 건물 외부의 재료는 시간이 지나면서 자연스럽게 부식되어 자연과 함께 어우러지게 될 것입니다. 이는 외부 및 내부 재료의 대조와 외부 재료와 자연(녹지)과의 대조를 강조한 디자인으로, 건물 외의 존재를 더욱 중요시하는 사례로 이해됩니다.




아래 내부사진





참고 및 인용
1. archidaily
* MAKE.RE.MAKE는 다양성과 지속가능성, 사회적 문제에 관심을 가집니다.
_
instagram
@makeremake_official : 포트폴리오.
@project. 055 : 마산(창원, 진해)의 도시재생 리노베이션 프로젝트 그리고 건축도시탐구.
'__REF > House' 카테고리의 다른 글
| 주택 디자인| 경사지에 딱 어울리는 주택 | Santiago Viale | 2015 (0) | 2023.08.11 |
|---|---|
| 주택 디자인| 접힌 벽 하나로 설명되는 주택 | House with One Wall | 2007 (0) | 2023.08.11 |
| 주택 디자인 | CASA BOBBANARRING | 2022 (0) | 2023.07.11 |
| 주택 디자인 | HOUSE LC | 2017 (0) | 2023.07.05 |
| 주택 디자인| 휴먼스케일의 건물 볼륨감, 벽돌 재료의 사용 (0) | 2014.02.21 |

댓글