#오늘의pick #건축사례 #리모델링 #주택설계 #리노베이션 #스테이 #카페 #실내디자인 #조명디자인 #평면도
▶목재가공의 자동화시스템 구축를 위한 공장과 사옥건물
목재 가공 산업을 위한 차세대 자동화 시스템을 구상하는 회사인 Smartmill의 새로운 본사와 공장에 관한 프로젝트입니다. 이 프로젝트의 주요 목표는 전체 목재 구조의 건물을 만들고 기능적일 뿐만 아니라 편안하고 밝고 친근한 공간을 제공하는 것이었습니다. 사옥 프로젝트는 회사의 비전을 건물에 반영하여 지속가능한 방향으로의 구조개선을 통한 수익창출과 직원복지 및 기업이미지 개선을 위한 쇼케이스의 역할을 동시에 수반하여 회사의 가치를 알리게 됩니다.
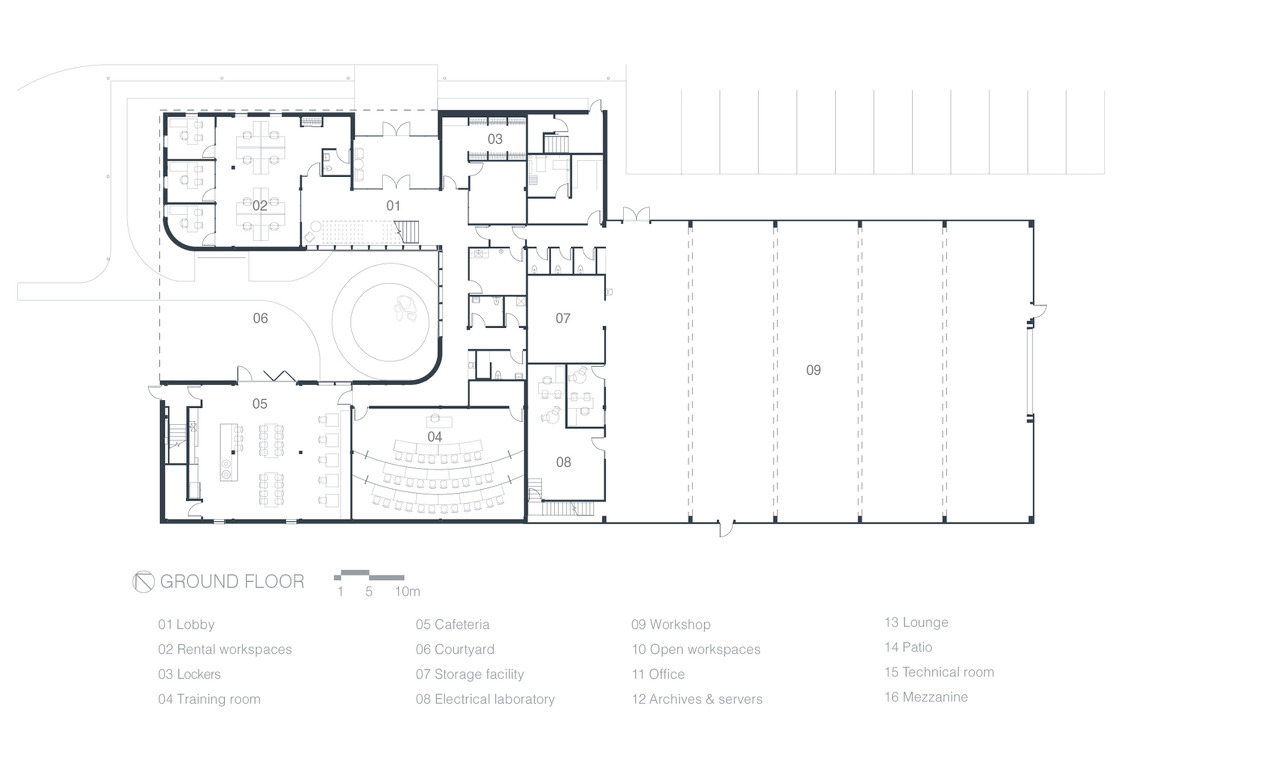
건물의 전면은 건물을 관리하고 후면은 공장섹션으로 구분하여 1층으로 진입하여 2층으로 자연스럽게 동선이 유도되는 방식을 택하였습니다. 주진입은 주차를 통한 측면진입이 로비로 이어집니다.
1층은 대중에게 개방된 프로그램으로 구성되어 있어 일반인의 접근을 높였습니다.
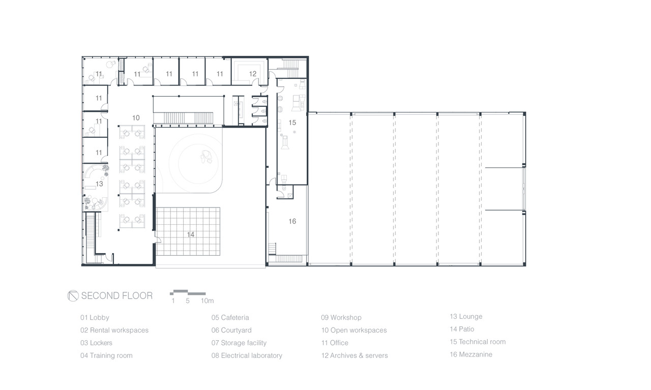
로비에 면해서 임대작업실이 배치되어 있으며, 사용자의 편의를 위한 세미나실, 카페테리아는 외부에서도 바로접근할 수 있도록 중정을 통해 연결을 갖추고 있습니다. 그리고 후면에는 공장(workshop) 있고 별도의 서비스동선을 마련해 두었습니다.2층은 기업관계자의 사용공간으로 독립적 사무공간(office)과 개방적 사무공간(open workspaces)으로 구분되어 있습니다. 후면에 위치한 공장과 2층으로 바로 연결되는 복층형 구조입니다.
사옥은 기업의 이미지와 가치를 반영하고 브랜드이미지, 문화적 요소, 창의성 등을 고려해야 하며, 기업이 나아가고자 하는 방향의 조직구성에 부합하는 공간을 창출하는 것이 중요합니다. 또한 지역과 지속적인 관계 유지를 위한 프로그램 제안으로 기업의 사회적 책임을 다하는 지역사회와의 상생을 추구하는 것도 기업의 중요한 가치입니다.


















참고 및 인용
SmartMill Head Office / Atelier Guy Architectes
Completed in 2022 in Lévis, Canada. Images by Charles O’Hara . In 2020, Atelier Guy architects designed the new head office and factory for Smartmill, a company that conceives next-generation automated systems...
www.archdaily.com
* MAKE.RE.MAKE는 다양성과 지속가능성, 사회적 문제에 관심을 가집니다.
_
instagram
@makeremake_official : 포트폴리오.
@project. 055 : 마산(창원, 진해)의 도시재생 리노베이션 프로젝트 그리고 건축도시탐구.
'__REF > Office & Lab' 카테고리의 다른 글
| 사옥 디자인| 환경친화적인 디자인 접근과 프로그램으로 채워진 방문자센터 | 2022 | Rapunzel Visitor Centre (0) | 2023.10.12 |
|---|---|
| 사옥 디자인| 원의 형태와 질서를 가진 웰컴 센터 | Fazer Visitor Center | 2016 (0) | 2023.09.27 |
| 사무실 인테리어| 펀칭 메탈과 곡면벽을 이용한 인테리어 | 2017 (0) | 2023.09.08 |
| 사무실 디자인| 대지의 한계를 극복하기 위한 다양한 건축 솔루션 | RATP Habitat Headquarters | 2021 (0) | 2023.09.05 |
| 사무실 인테리어| 브랜드 이미지를 공간에 투영하다 | Runxuan Textile Office (0) | 2023.08.17 |

댓글