#오늘의pick
#사옥설계 #리모델링 #리노베이션 #사무실
#오픈플랜 #파티오 #목재-콘크리트 혼합
▶ 계단식 넓은 테라스, 오픈플랜방식, 목재-콘크리트 혼합구조, 파티오와 아뜨리움으로 다양한 방식으로 대지의 한계를 극복한 사무실 디자인 | RATP Habitat Headquarters
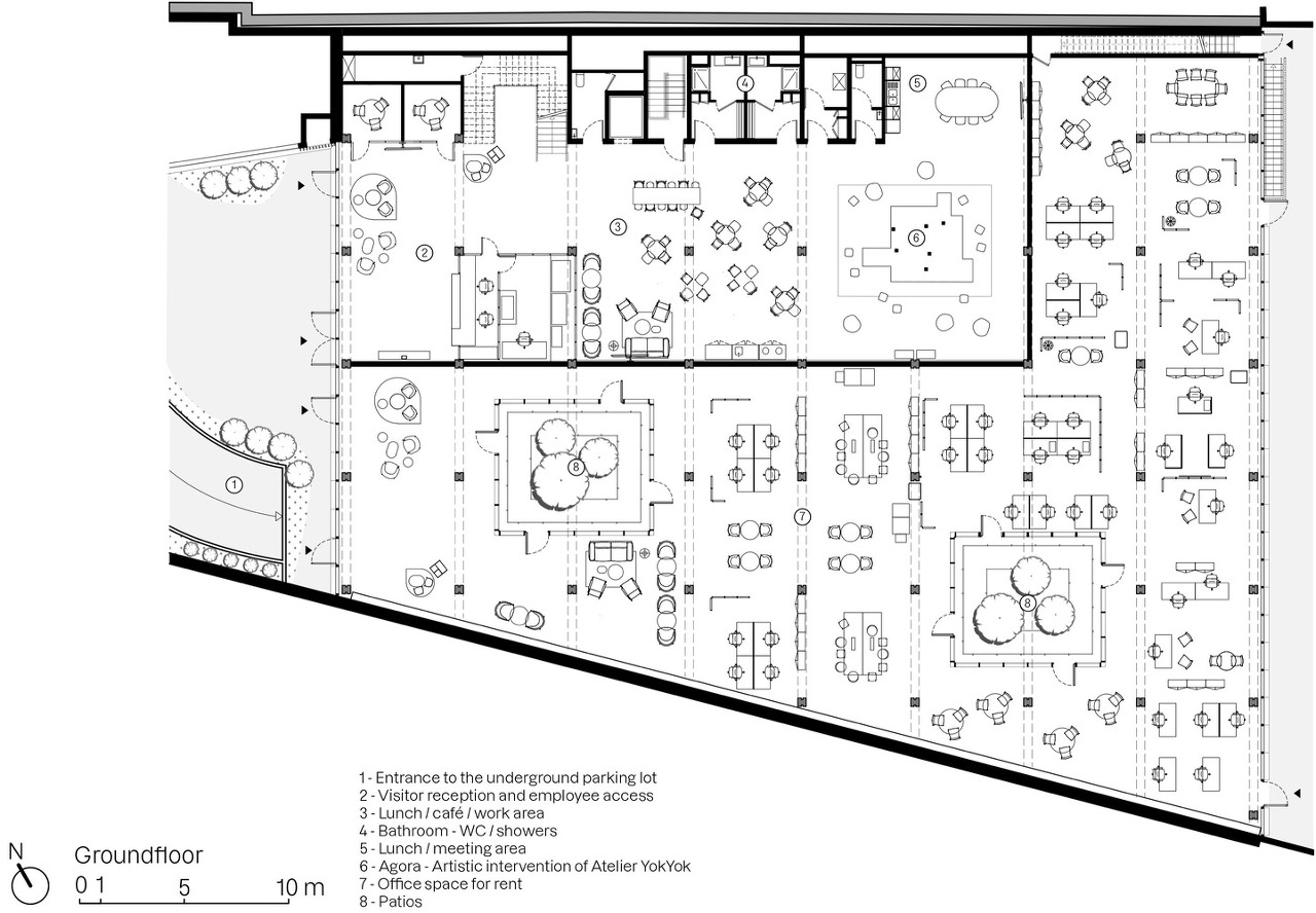
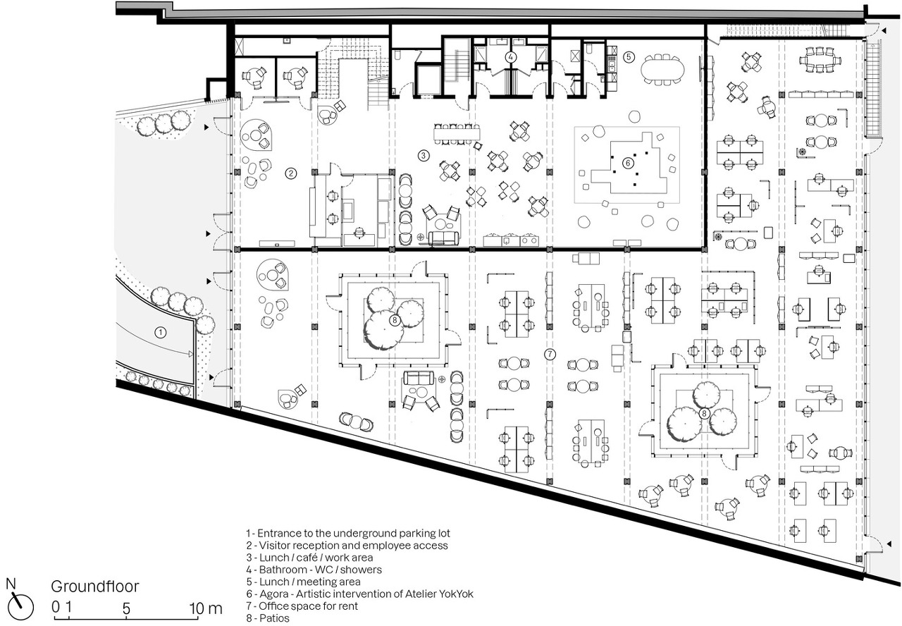
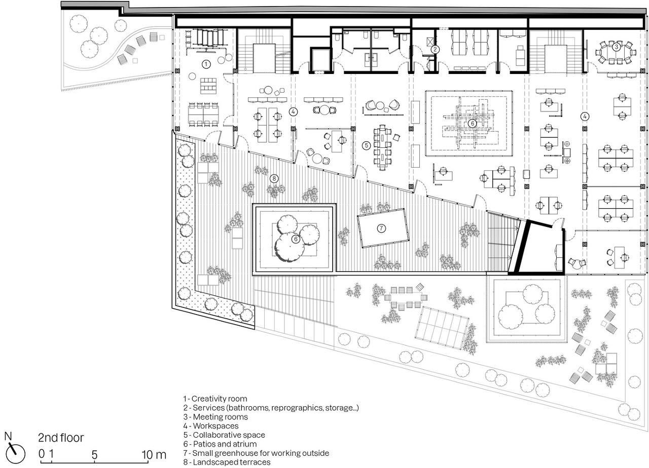
밀집된 도시블럭 가운데 자리잡고 있으며, 건물의 아래부분(남쪽)은 종합병원부지의 주차장으로 건물과의 경계를 이루고 있으며, 건물의 윗부분(북쪽)은 기존 3층 건물과 맞벽으로 설계되어 있다. 그래서 1층 평면도에서 남과북쪽은 막혀 있으며 서쪽(좌측)에서 주진입을 하며 동쪽(우측)은 부출입으로 되어 있다.
서측 1층 공용공간으로 접근으로 방문객 리셉션과 카페, 아고라 등으로 조성되어 있으며 북측 맞벽으로 된 부분은 화장실과 유틸리티 등 서비스 공간으로 가득 채웠다.
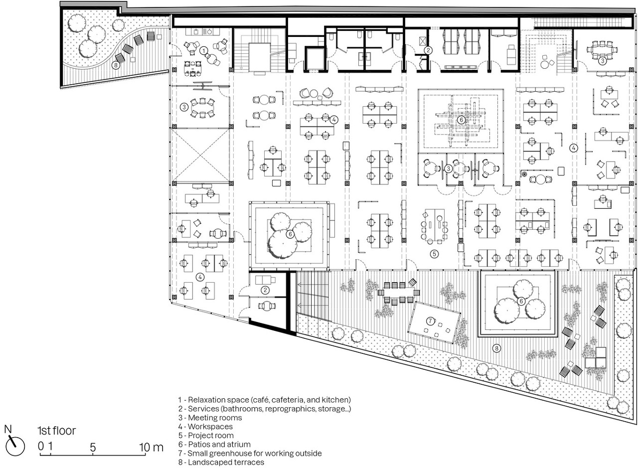
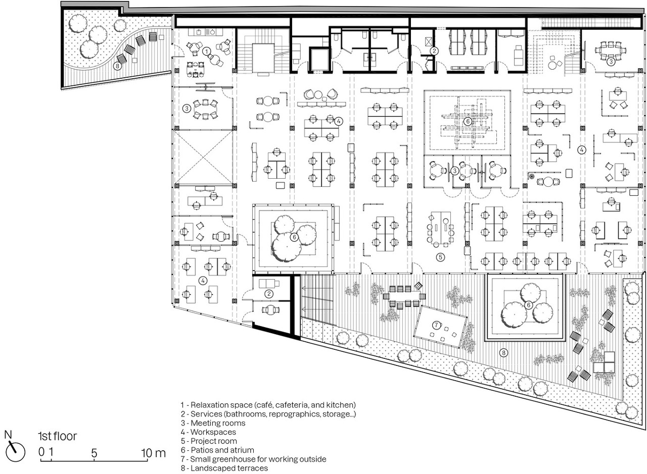
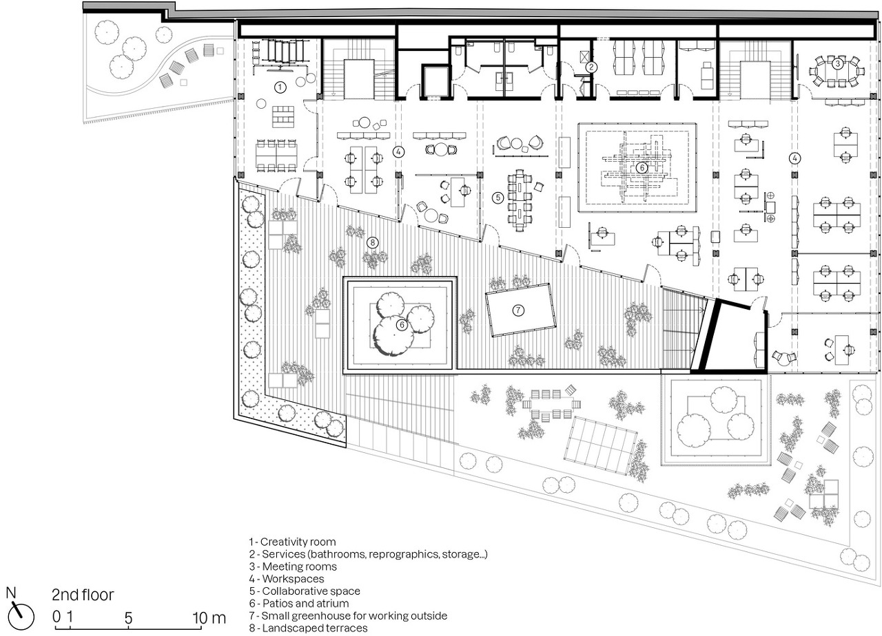
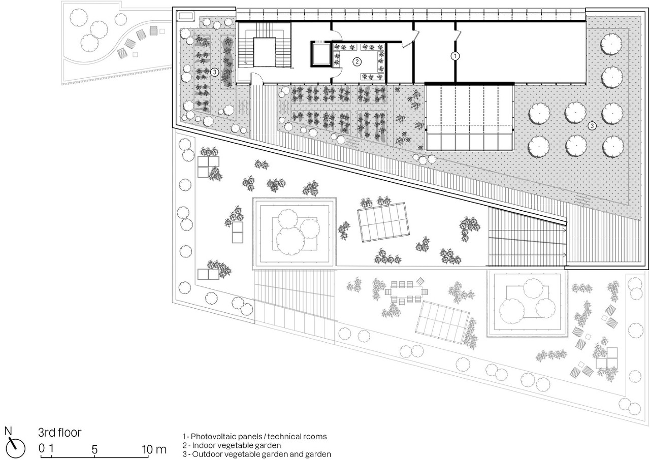
처음에 단면도를 보고 왜 남과 북쪽은 벽으로 막혀 있었을까? 하는 질문을 하게 되었는데, 이 건물은 대지가 가진 어쩔수 없는 상황이 분명 존재하는 듯 보였고, 그 상황에서 1,2,3층이 계단식으로 크게 남측 외부공간을 가지게 된 것으로 파악된다. 사무실은 3개층에는 활기넘치는 테라스를 넓게 가지고 있지만, 1층과 2층 건물이 깊고 북쪽으로 막혀 있어 환기문제와 실내공간이 어두워지는 것을 해소하기 위해 2개의 중정(patio)와 2개의 아뜨리움(A-trium)으로 해결하였다.
사무실 공간에는 독립성을 필요로하는 공간의 일부를 제외하고는 오픈플랜방식(open plan)으로 구성되어 유연하고 다목적으로 공간을 사용할 수 있도록 되어 있다. 그리고 사무실과 연계된 각층 테라스는 다양한 화분과 식물로 가득차 있어 다양한 공간을 제공하고 있으며, 특히 회의실은 외부테라스에 썬룸(Sun Room)으로 만들어져 있어 폐쇄적이고, 획일적이지 않은 개방성, 다양성, 창의성을 기반으로 하는 공간 컨셉을 갖추고 있다.
사무공간 전체는 직원 모두가 상호작용 및 소통이 촉진될 수 있는 공간구성과 분위기를 갖추도록 디자인 되었다.
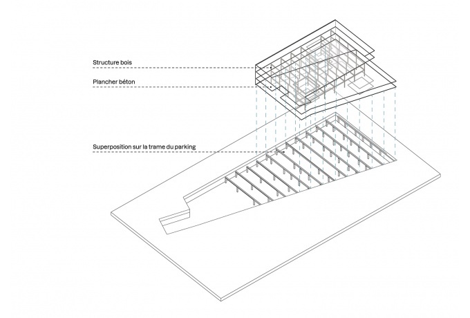
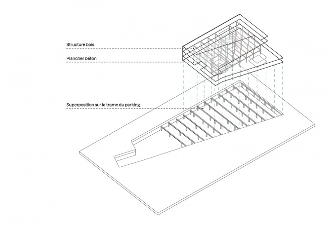
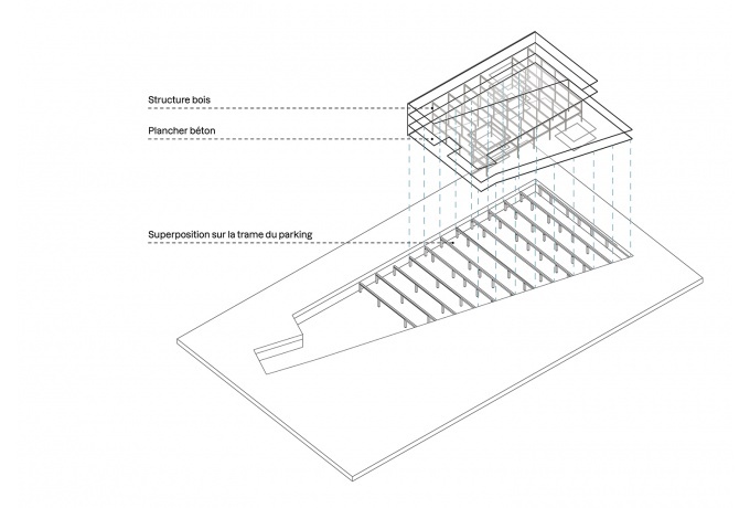
목재(WOOD)와 콘크리트(CONCRETE) 혼합구조를 사용하고 있는데 이것은 공사현장이 협소하고, 건물의 하중을 줄여야 하는 상황으로 파악된다. 기둥과 보는 공학용 목재(Glue Laminated beam, post), 벽과 슬라브는 PC구조로 부재의 두께와 무게를 줄이며, 모듈화된 방식으로 설계되었다.
Text description provided by the architects. RATP Habitat received in 2021 its new headquarters at 158 rue de Bagnolet in Paris’ 20th arrondissement. Atelier du Pont designed a wood frame, three-story building for this project nestled amidst a densely constructed block. Sculpted into different levels, the south-facing terraces make the rooftops fully inhabitable, blending architecture and nature. The studio also designed all the interior spaces, furniture, and signage, working with the client at all stages to define its new workspaces. The interior spaces are flexible and upgradable. Emphasis was given to the sociability, adaptability, and domesticity of the various work areas. The project was designed to promote interaction and exchange among everyone who works here, both in and outdoors.




























참고 및 인용
1. archdaily.com
2. Architects: Atelier du Pont
MAKE.RE.MAKE는 다양성과 지속가능성,
사회적 문제에 관심을 가집니다
_
instagram
@makeremake_official : 포트폴리오
@project. 055 : 마산(창원, 진해)의 도시재생 리노베이션 프로젝트 그리고 건축도시탐구

'__REF > Office & Lab' 카테고리의 다른 글
| 사옥 디자인| 환경친화적인 디자인 접근과 프로그램으로 채워진 방문자센터 | 2022 | Rapunzel Visitor Centre (0) | 2023.10.12 |
|---|---|
| 사옥 디자인| 원의 형태와 질서를 가진 웰컴 센터 | Fazer Visitor Center | 2016 (0) | 2023.09.27 |
| 사무실 인테리어| 펀칭 메탈과 곡면벽을 이용한 인테리어 | 2017 (0) | 2023.09.08 |
| 사무실 인테리어| 브랜드 이미지를 공간에 투영하다 | Runxuan Textile Office (0) | 2023.08.17 |
| 사옥 디자인 | 목재 가공회사 | smartmill | 2020 (0) | 2023.07.05 |
댓글