반응형
#오늘의pick
#리모델링 #리노베이션 #인테리어 #사무실
▶펀칭메탈의 반투시적 효과와 끝없이 연속되는 곡면벽를 이용한 사무실 레이아웃
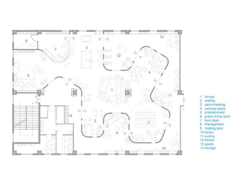
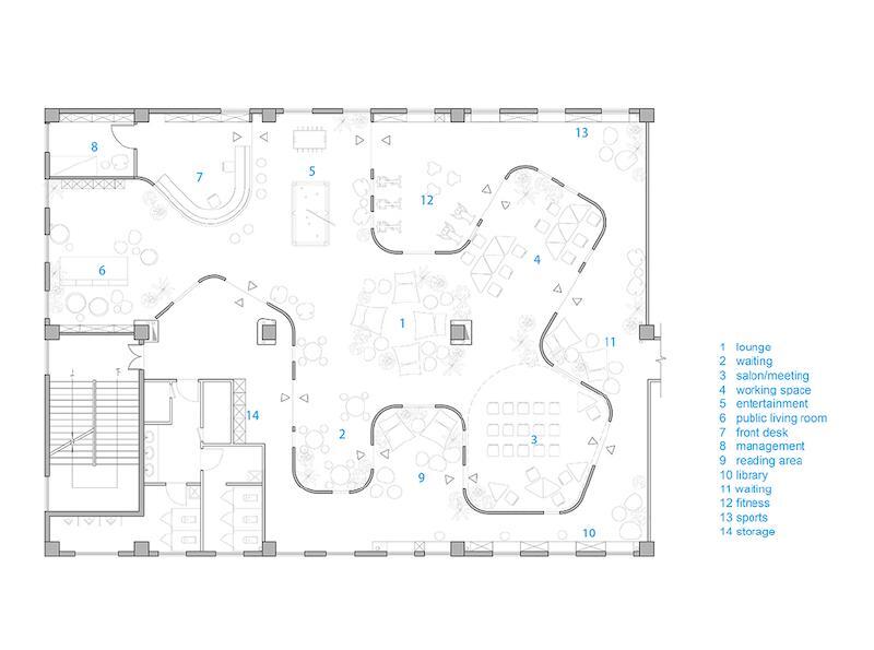
사무실의 레이아웃을 구성하기 위해 곡면의 연속적인 긴 벽체가 외벽면 측과 실내측으로 반복되면서 개방적이면서도 독립성을 가질 수 있는 다양한 공간이 조성되었다. 펀칭메달패널을 투시가 가능한 재료적 특징으로 답답하지 않고 소통이 가능하도록 재료를 활용하였다. 내측과 외측의 경계를 다소 흐리게 하며 유연한 공간을 만들었다. 그리고 실내의 어두움을 펀칭메탈의 투시성과 반사가 되는 바닥 에폭시재료를 사용하여 어느정도의 채광을 해결하였다.
바닥과 천장을 어두운 색으로 설정하고 흰색의 펀칭메탈패널(punching metal panel)을 사용하여 벽공간의 영역이 강조되면서 끝없이 연속되는 곡면벽으로 인해 사용자는 방향감을 잃고 공간이 확장되도록 인지하게 된다.
It is public area for a youth apartment in Fuzhou, we demolished the original partition wall and inserted a continuous translucent curve wall inside. The semi-enclosed wall divides the area into two parts, an the curve creates several pocket-type space in both sides. The project is located in a youth commune in Fuzhou, with a area of 480 square meters, used as the public area of the youth apartment above. The client requires to design a space which can facilitate the daily activities of management, guest, reading, working, salon, and fitness for the residents.
- Area: 480.0 m²
- Year: 2017
- CHINA - FUZHOU









참고 및 인용
1. divisare.com
2. MAT OFFICE
MAKE.RE.MAKE는 다양성과 지속가능성,
사회적 문제에 관심을 가집니다
_
instagram
@makeremake_official : 포트폴리오
@project. 055 : 마산(창원, 진해)의 도시재생 리노베이션 프로젝트 그리고 건축도시탐구

반응형
'__REF > Office & Lab' 카테고리의 다른 글
| 사옥 디자인| 환경친화적인 디자인 접근과 프로그램으로 채워진 방문자센터 | 2022 | Rapunzel Visitor Centre (0) | 2023.10.12 |
|---|---|
| 사옥 디자인| 원의 형태와 질서를 가진 웰컴 센터 | Fazer Visitor Center | 2016 (0) | 2023.09.27 |
| 사무실 디자인| 대지의 한계를 극복하기 위한 다양한 건축 솔루션 | RATP Habitat Headquarters | 2021 (0) | 2023.09.05 |
| 사무실 인테리어| 브랜드 이미지를 공간에 투영하다 | Runxuan Textile Office (0) | 2023.08.17 |
| 사옥 디자인 | 목재 가공회사 | smartmill | 2020 (0) | 2023.07.05 |
댓글