반응형
#오늘의pick
#단독주택 #리모델링 #리노베이션 #인테리어
▶다섯개의 지붕으로 하나가 된 집 | Complex House
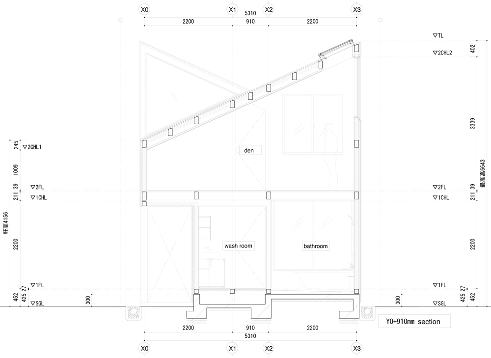
이 집은 5개의 지붕이 서로 반대 방향으로 기울어져 있다. 이 교차된 지붕으로 인해 삼각형의 고창을 만들게 된다. 1층을 공용공간의 역할을 하는 거실과 주방, 게스트룸을 두고, 중정과 테라스와 연계하여 1층은 주변도로와 이웃으로부터 프라이버시를 확보하고 있다.
지붕의 어긋나면서 반복되는 모습은 건물의 인상을 만들어내고, 1층 깊숙히 채광이 가능하도록 만드는 마법같은 역할을 완전히 해 내고 있다.
This alternating roof creates a series of triangular windows on the first floor of the two-storey residence, which the architect named Complex House.A recessed corner entrance interrupts the ridged metal cladding, which also encloses a courtyard. Tomohiro Hata also designed a house with a three-storey wooden house hidden inside it
- Site area: 107.30 ㎡
- Total area:100.24 ㎡(1F area: 54.43m2, 2F area: 45.81m2)
- Structure: Wooden(중목구조)












참고 및 인용
MAKE.RE.MAKE는 다양성과 지속가능성,
사회적 문제에 관심을 가집니다
_
instagram
@makeremake_official : 포트폴리오
@project. 055 : 마산(창원, 진해)의 도시재생 리노베이션 프로젝트 그리고 건축도시탐구
반응형
'__REF > House' 카테고리의 다른 글
| 주택 디자인| 생명력을 지닌 주택 | Hemeroscopium House | 2008 (0) | 2023.08.29 |
|---|---|
| 주택 디자인| 기후를 반영하는 건축과 공간 | Jungle House | 2016 (0) | 2023.08.22 |
| 주택 디자인| 작지만 완벽한 시골주택 | Shelter in Montaria | 2015 (0) | 2023.08.13 |
| 주택 디자인| 작은집도 넓게 사용할 줄 아는 주택 | House in Mukainada | 2015 (0) | 2023.08.11 |
| 주택 디자인| 경사지에 딱 어울리는 주택 | Santiago Viale | 2015 (0) | 2023.08.11 |

댓글