#오늘의 PICK
#건축디자인 #리노베이션
#메이크리메이크 #건축설계
#반려묘 #고양이 #집사의 인테리어
▶고양이와 동거를 위한 집사의 집 | 아파트 인테리어 | 고양이 놀이터 | 반려묘
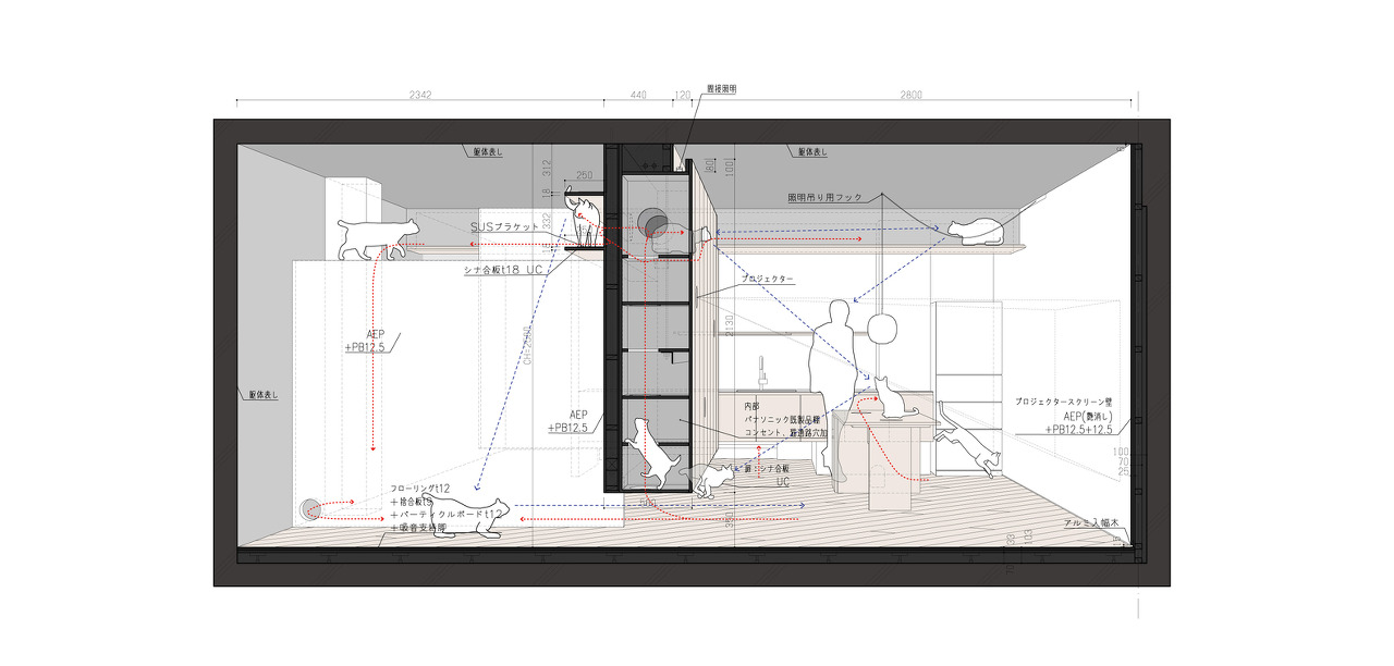
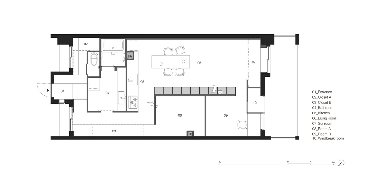
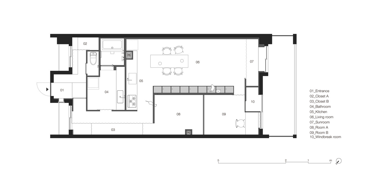
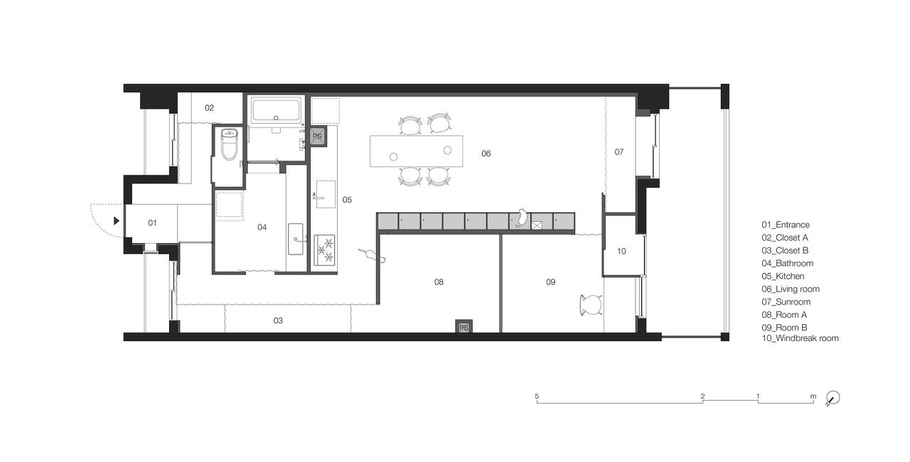
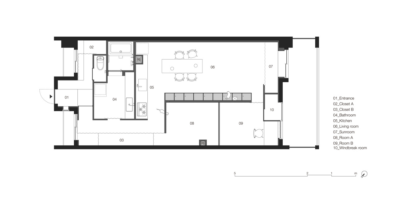
인간과 고양이 모두 편안하게 생활할 수 있는 집으로 인간부부와 고양이 두 마리가 공존하는 아파트 인테리어에 대한 내용이다. 65㎡(20평)크기의 일반적인 아파트이며, 고양이의 관점에서 집을 디자인하였다. 고양이의 생활방식과 습관, 안전에 대한 내용이 포함되어 있다.
선반, 주방, 세면대 아래는 350mm 정도 공간을 두어 인간에게는 칸막이가 되지만, 고양이에게는 숨을 장소이자 다른 장소로 이동하는 역할을 한다. 그리고 로봇청소기의 동선에 방해되지 않아 바닥에 흩날리는 고양이 털을 계속 청소해 줄 수 있으며 집의 환기에도 도움이 된다. 선반, 스파이홀(구멍), 기둥 아래의 통로에 계단을 적용하여 고양이의 수직이동을 확장했다. 인간의 시선에 있지 않고, 눈 아래, 눈 위의 공간을 활용한 인테리어가 돋보인다. 바로 만나지 않고 천천히 시간을 두고 만날 수 있는 여지를 두고 있다.
Text description provided by the architects. Renovation of Second-Used Apartment a Married Couple and Two Cats Coexist. We aimed to make a house that allows humans and cats to live comfortably within 65㎡, a typical room size in Japan. We attempted to design the house from both human and cat's perspective (Way of Life, Habits, and Safety). By reducing rooms and making detour Circulation, we achieved depth and mutation. We applied a 350 mm gap under the shelves, kitchen, and washbasin. To humans, it functions as a partition and to feel depth and space. To cats, it functions as one big plaza and place to hide from humans. Moreover, it improves ventilation and good traffic lines for robot vacuum cleaners.
- Architects: Hiroyasu Imai
- Area: 65 m²
- Year: 2022




















현관에 들어 와서는 고양이와 눈이 바로 마주치지 않게 우회하여 거실로 진입하고, 일광욕을 좋아하는 고양이를 위한 선룸을 창가에 마련하고 넓은 욕실을 두어 고양이 화장실과 겸하고 있다. 화장실과 욕실을 제외하고는 고양이에게는 모든 공간이 연결되어 있다. 사람의 시선아래의 공간과 사람의 시선 위 선반은 고양이를 위한 공간으로 내어준다.
*참고 및 인용
1. archdaily.com
2. Hiroyasu Imai
*MAKE.RE.MAKE는
다양성과 지속가능성, 사회적 문제에
관심을 가집니다
_
instagram
@makeremake_official : 포트폴리오
@project. 055 : 마산(창원, 진해)의 도시재생 리노베이션 프로젝트 그리고 건축도시탐구
'__REF > House' 카테고리의 다른 글
| 주택 디자인| 드러나지 않는 큰 지붕과 두꺼운 벽 | 2021 |Merricks Farmhouse (0) | 2023.11.14 |
|---|---|
| 주택디자인| 자연이 관통하는 중정형 집 | 2019 | Sky House (0) | 2023.10.30 |
| 주택 디자인| 여러 개의 바닥레벨을 가진 단층주택 | House in Ginowan| 2019 (0) | 2023.10.04 |
| 주택 디자인| 곡면과 재료가 빛을 만나 만들어진 감각적인 주택 | 2015 | IRELAND (0) | 2023.09.25 |
| 주택 디자인| 이상한 형태의 대지를 극복하는 협소주택 | 2022 | House in Okamoto (0) | 2023.09.22 |

댓글