반응형
#오늘의 PICK
#건축디자인 #리노베이션
#메이크리메이크 #건축설계
▶ 건물은 풍경을 경험하는 렌즈가 된다 | 시골 주택 | 큰 지붕과 두꺼운 벽
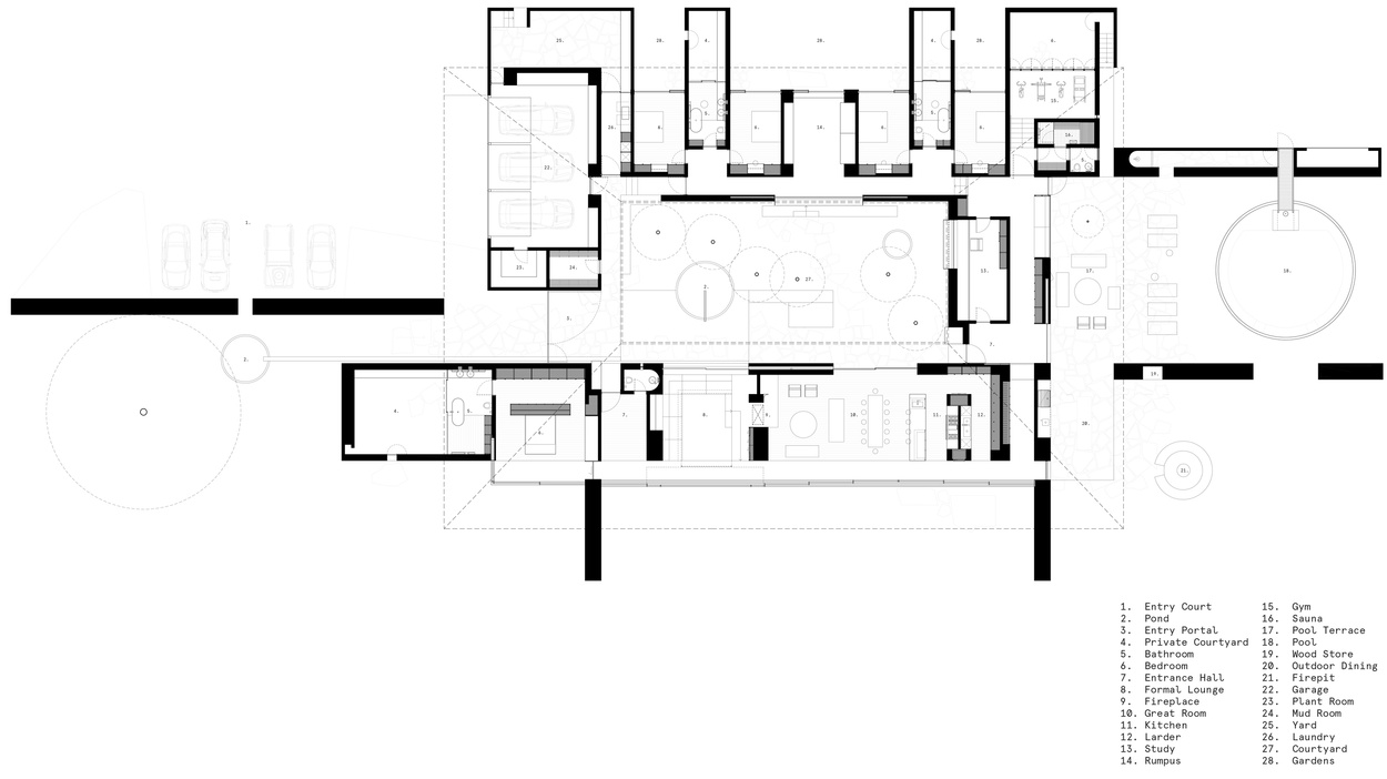
조용하고 고요한 시골에 위치한 주거지로 절제된 공간구성과 두꺼운 벽, 과장된 건축적 매스는 50 에이커에 달하는 넓은 대지 분포되어 있다. 밀폐된 공간 사이에 열린 공간들이 삽입되어 필요에 따라 내부가 자연스럽게 외부와 시각적 접근과 빛과 바람이 드나드는 환경의 통로 역할을 하고 있다.
중앙에 위치한 안뜰은 집의 중심이되고 모든 공간을 연결하고 있다. 건물의 배치로 인해 자연적으로 발생된 풍경은 자연을 액자에 담아내는 듯한 프레임을 만들어 낸다. 풍부한 재료와 가구, 촉각적인 디테일을 통해 집의 친밀도와 마음의 넉넉함을 더해준다. 단순하고 매끈한 지붕은 기둥이 없는 무겁고 돌출된 벽 위에 놓여 있으며 지붕의 깊은 돌출부는 넓은 테라스의 외부공간을 만들어 낸다.
The centrally located courtyard becomes the heart of the home, with all spaces that surround it connected as a result. The integration of landscape that is naturally occurring and softening ensures the more monolithic elements of the home have a landing of sorts, encouraging their coexistence. With deep reveals and the external skin set inward, clean-lined shelter circulates the home, creating a transition space between inside and out that acknowledges the sometimes harshness of the climate and protects the outer skin, while views stretch outward Western Port Bay and Philip Island.
The robust vertical surfaces, together with the protective eaves and the enveloping dark ceiling, are given a lightening and warmth through the integration of timber, used sparingly. As a result, the more familiar elements of farm life and of a residence are layered amid a bespoke culmination of living openly and connected to the landscape. With the need to accommodate visiting guests, the planning allows for expansion and contraction, and through the richness of the materials and the heightening of the detailing found in the joinery and tactile touchpoints, the home feels intimate yet generous.





























*참고 및 인용
1. thelocalproject.com
2. Michael Lumby Architecture
*MAKE.RE.MAKE는
다양성과 지속가능성, 사회적 문제에
관심을 가집니다
_
instagram
@makeremake_official : 포트폴리오
@project. 055 : 마산(창원, 진해)의 도시재생 리노베이션 프로젝트 그리고 건축도시탐구
반응형
'__REF > House' 카테고리의 다른 글
| 주택디자인 | 프레이밍(framing)으로 풍경을 담은집 | 2023 | Framing Nature (0) | 2023.11.28 |
|---|---|
| 주택디자인| 자연과 연결된 숨막히는 집 | 2023 | 브리지햄튼 (1) | 2023.11.24 |
| 주택디자인| 자연이 관통하는 중정형 집 | 2019 | Sky House (0) | 2023.10.30 |
| 주택 인테리어| 고양이를 위한 인간집 | 2022 | Boko House (0) | 2023.10.27 |
| 주택 디자인| 여러 개의 바닥레벨을 가진 단층주택 | House in Ginowan| 2019 (0) | 2023.10.04 |

댓글