반응형
#오늘의 PICK
#건축디자인 #리노베이션
#메이크리메이크 #건축설계
#중정주택 #대도시주택
▶녹지를 품고 자연의 모습을 구석구석 담아낸 중정형 집
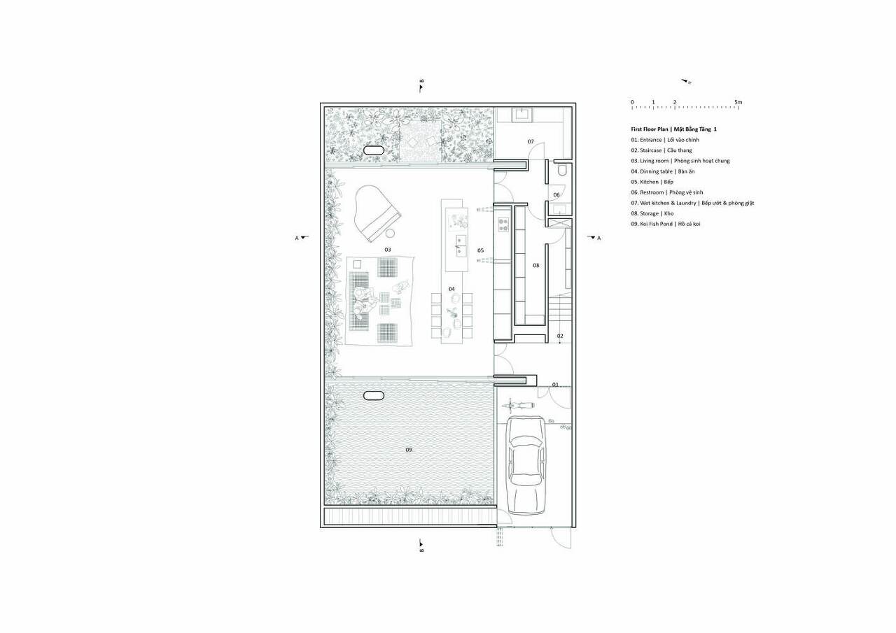
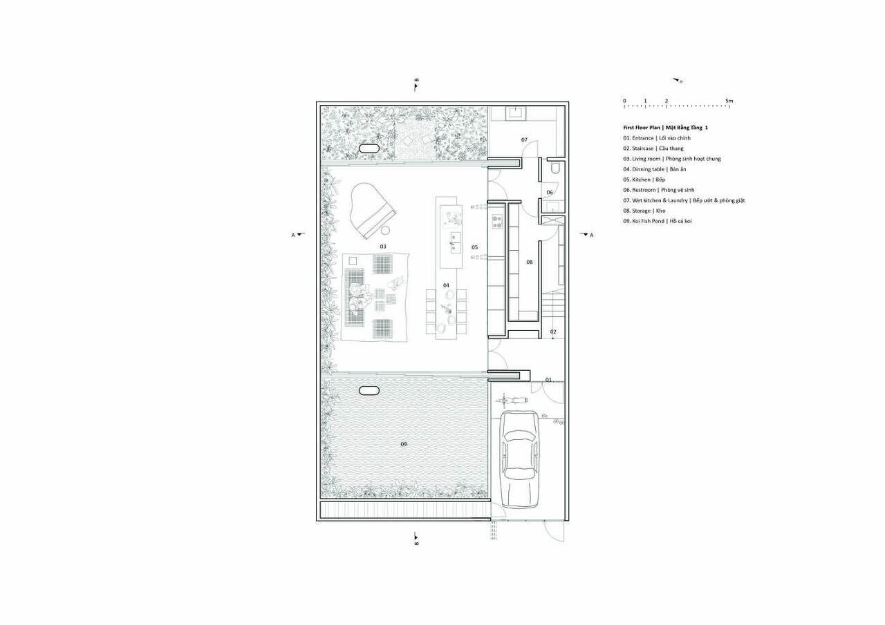
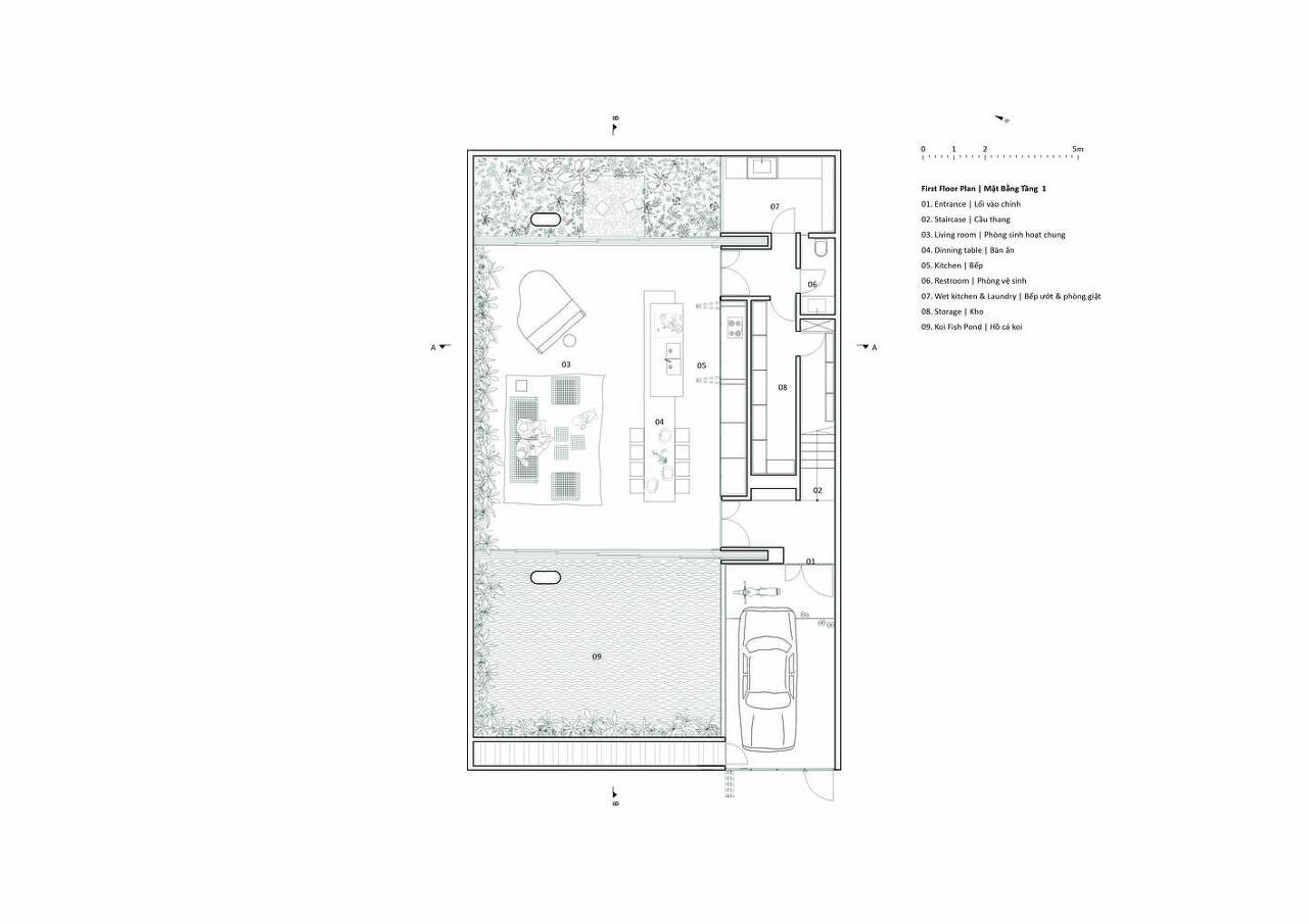
자연의 요소가 집안 구석구석에 삽입되고, 전달되도록 공간 사이사이 연결을 만들어낸다. 주변의 관계보다 내면적 공간과 관계를 중요하게 생각하며 만들어졌다. 외부에서 보여지는 모습은 다양한 식물의 모습이 보여지고, 이러한 모습은 도시에 시각적 녹지의 모습을 제공하기보다는 내부에 여러 녹지의 모습을 제공하기 위한 방법의 결과적 모습으로 파악된다. 내부는 가운데 중정을 통해 외부의 모습이 내부로 관통하여 집안 구석구석 다양한 크기의 격자모습의 창, 바닥, 천장 등이 자연의 흐름을 만들어 낸다. 주변은 밀도높은 도심의 모습을 하고 있어 전망을 활용하기 보다 내부중심적인 공간으로 디자인을 풀어내고 있다.
Text description provided by the architects. Saigon is a metropolitan city of Vietnam with the highest density of construction, vehicles andpopulation.With that, followed the blooming of urban infrastructure and traffic congestion. On the other hand, it causes the lack of green spaces, where people can seek tranquility and sit in harmony with nature to release stress. Being a part of this context, the construction of Sky House takes place in the middles of numerous skyscrapers built close together, which brings the feeling that Sky House is located at the floor of a valley. This presents difficulties in creating an "open" and "airy" project.
- 1. Architects: MIA Design Studio
- 2. Year: 2019
- 3. AN PHU, VIETNAM























*참고 및 인용
1. archdaily.com
2. MIA Design Studio
*MAKE.RE.MAKE는
다양성과 지속가능성, 사회적 문제에
관심을 가집니다
_
instagram
@makeremake_official : 포트폴리오
@project. 055 : 마산(창원, 진해)의 도시재생 리노베이션 프로젝트 그리고 건축도시탐구
반응형
'__REF > House' 카테고리의 다른 글
| 주택디자인| 자연과 연결된 숨막히는 집 | 2023 | 브리지햄튼 (1) | 2023.11.24 |
|---|---|
| 주택 디자인| 드러나지 않는 큰 지붕과 두꺼운 벽 | 2021 |Merricks Farmhouse (0) | 2023.11.14 |
| 주택 인테리어| 고양이를 위한 인간집 | 2022 | Boko House (0) | 2023.10.27 |
| 주택 디자인| 여러 개의 바닥레벨을 가진 단층주택 | House in Ginowan| 2019 (0) | 2023.10.04 |
| 주택 디자인| 곡면과 재료가 빛을 만나 만들어진 감각적인 주택 | 2015 | IRELAND (0) | 2023.09.25 |

댓글