반응형
#오늘의 PICK
#건축디자인 #리노베이션
#메이크리메이크 #건축설계
#사옥 #사무실설계
▶재료와 면의 대비로 이루어진 사무실 디자인 건물
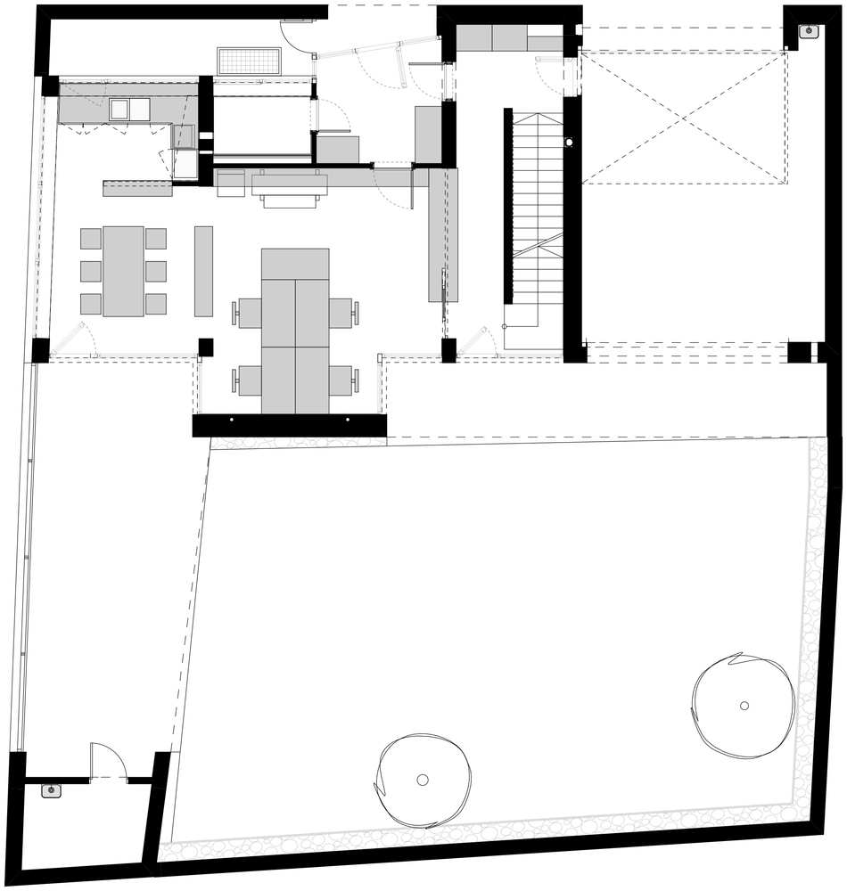
흰색과 벽돌의 재료적 변화, 면과 면이 만나는 공간의 틈으로 인해 기존도시의 가로와 조화를 이루려고 하면서 새로움을 표현하고 있다. 건물의 파사드는 대부분 닫혀진 듯한 분위기를 주지만 닫혀진 부분과 열려진 부분을 완전히 구분하여 개방감과 폐쇄감을 적절히 만들어 내고 있으며 부분적으로 천창을 활용하고 있다.
Text description provided by the architects. Actually, the latest building designed by Péter Kovács, architect from Debrecen (city in east side of Hungary, 240 km. fare from Budapest) does not quite fit into the genre detailed in the introduction as the house is not a family house but a studio. However, a parallel can still be drawn since the building is a deep, personal, self-reflexive work of art, which reflects the role of the architect, layered as it is. Such an artistic expression makes us think through many things – first of all, the atmosphere of the place. The plot can be localized both on a 1771 Debrecen map and on a map from a hundred years later. This is almost the oldest urban tissue of the so-called “civis city” (civis is a Latin word for “citizen”, it is also a root word for city; in Hungarian history civis cities were old country-towns on the Hungarian Great Plains) which remained intact and consists of barely a few streets. The impressive widening road in front of the house and the name “ötmalom” (five mills) indicate the former circle-shaped dry mills that were attached to work-horses with rods. The wide gates and inner gardens of the old houses found here still show the civil character of the country-town. Péter Kovács knows all the neighbours and their houses very well. He understands these streets. He understands the scales, the whys, the hows. He sums it all up in the following way: a strong, 2.35 m high brick fence turning into the street on the corner closes the plot's side overlooking Ötmalom Street. The presence of the fence ensures its historical identity and the unique nature of the plot. The slightly appearing bricks – there is a brick paving, too – under the weathered plaster not only show the old building material but also make one feel like travelling back in time. They refer to the old houses' few opening schemes, which differed from the architectural design of modern apartment houses: back then, mainly walls and roofs dominated. Moreover, the fence is not a part only of this plot; it is a characteristic feature of the street-line. There is another dominant feature of the scenery: the steeple of the so-called “Verestemplom” (red (brick) church) in the background, built it in 1887 (arch. Samuel Petz). The third major feature is the presence of trees. The inspiring key elements at the site are definitely the brick fence, the church steeple, and the trees.”
- 1. Architects: Archiko Kft
- 2. Area: 237 m²
- 3. Year: 2014

















*참고 및 인용
1. .archdaily.com
2. Architects: Archiko Kft
*MAKE.RE.MAKE는
다양성과 지속가능성, 사회적 문제에
관심을 가집니다
_
instagram
@makeremake_official : 포트폴리오
@project. 055 : 마산(창원, 진해)의 도시재생 리노베이션 프로젝트 그리고 건축도시탐구
반응형
'__REF' 카테고리의 다른 글
| 주택디자인| 개발형 표준 단독주택 | 2017 | NEW ORLEANS, UNITED STATES (1) | 2024.01.16 |
|---|---|
| 주택디자인| 형태가 없는 랜드스케이프건축(landscape) | 2022 |The Inside Home (2) | 2023.12.27 |
| 주택 디자인| 좁고 긴 스킵플로어 협소주택 | 2022 | HOUSE KJ (2) | 2023.12.18 |

댓글