반응형
#오늘의 PICK
#건축디자인 #리노베이션
#메이크리메이크 #건축설계
#협소주택 #스킵플로어
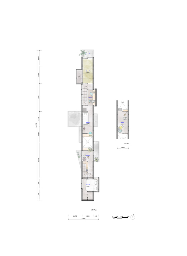
▶좁고 긴 방향의 협소주택 | 스킵플로어 방식으로 단조로움을 해결한 주택
협소주택의 방식은 다양할 수 있는데, 이번 협소주택은 대지의 모양이 협소주택의 방식으로 따르지 않아도 되는데, 그렇게 한 것에 대해서 의문을 품게 되었다. 진입부는 차량두대 주차하면 가득차는 정도의 공간과 안쪽으로 들어갈 수록 주변 집들로 둘러쌓여진 조금은 넓은 대지를 가지고 있다. 진입의 폭1.8미터 남짓한 건물의 볼륨으로 길고 강한 축을 만들고 내부공간은 동쪽과 서쪽이 관통되는 홑집의 구조이다. 좁고 긴 협소주택은 방, 거실 등 단위공간으로만 연속될 수 밖에 없는 크기이며 스킵플로어 방식으로 가족간의 적당한 거리감과 이웃대지와의 입체적 관계를 만들어 내고 있다. 창의 방향은 이웃의 집과 간섭이 없도록 측면 창과 고창을 주로 사용하고 있으며 도시의 새로운 풍경을 만들어 내고 있다.
Text description provided by the architects. The house is on one of the plots of a large developed field in the Japanese countryside. The site was surrounded by long, narrow, distorted roads that had existed for a long time, and the land had a deformed flagpole shape. As a result, variously angled property boundaries and buildings surrounded the site, and no matter where one stood on the site, one felt a tenuous relationship with the neighboring land. This project attempted to create a new relationship with the outside, including the neighboring land, by designing the distance between the building and the site boundary on a deformed flagpole lot with distorted contours. Specifically, a 1.8m wide elongated volume is placed to penetrate the flag and pole portions of the deformed flagpole site. By doing so, an interior space with a strong axis is created in the deformed site, and all the spaces can have exterior wall surfaces with a close distance on both the east and west sides. While adjusting the relationship with the neighboring land, the openings that lead to the outside and the places that bulge out slightly from the axis that serve as gathering places are placed there.
- 1. Architects: 1-1 Architects
- 2. Area: 100 m²
- 3. Year: 2022



















*참고 및 인용
1. .archdaily.com
2. 1-1 Architects
*MAKE.RE.MAKE는
다양성과 지속가능성, 사회적 문제에
관심을 가집니다
_
instagram
@makeremake_official : 포트폴리오
@project. 055 : 마산(창원, 진해)의 도시재생 리노베이션 프로젝트 그리고 건축도시탐구
반응형
'__REF' 카테고리의 다른 글
| 주택디자인| 개발형 표준 단독주택 | 2017 | NEW ORLEANS, UNITED STATES (1) | 2024.01.16 |
|---|---|
| 사무실 디자인| 재료와 면의 대비로 이루어진 사무실 건물 | 2014 | Office in Debrecen (0) | 2024.01.10 |
| 주택디자인| 형태가 없는 랜드스케이프건축(landscape) | 2022 |The Inside Home (2) | 2023.12.27 |

댓글