#오늘의 PICK
#건축디자인 #리노베이션
#메이크리메이크 #건축설계
▶도심지 협소주택을 연상케 하는 개발형 단독주택
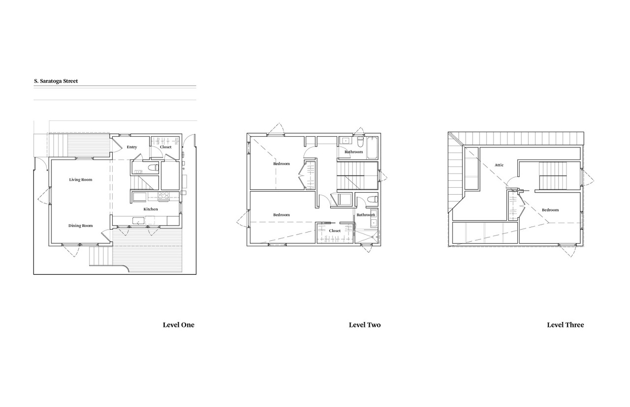
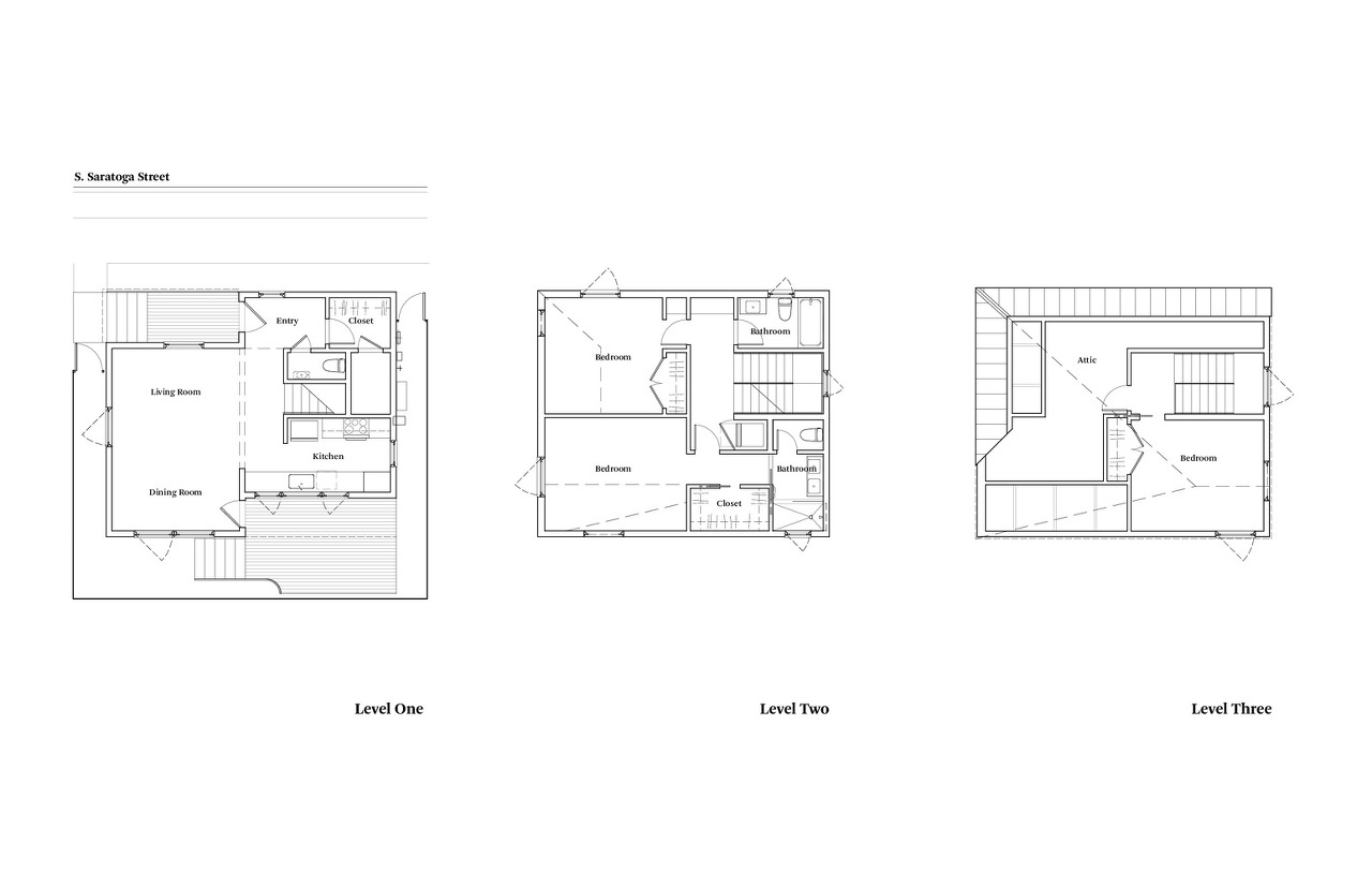
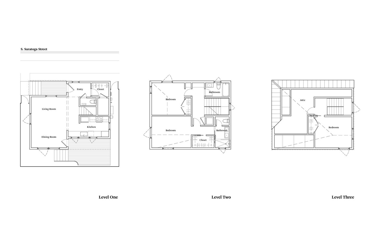
도시지역의 설계와 개발을 통합하여 개인에게 공급하는 방식으로, 창의성과 실용성을 두루 포용하기 위한 그 경계의 집이지 않을까? 싶다. 사람들이 가장 선호하는 구성으로 표준침실 3개 욕실 2.5개를 갖춘 주택으로 제한된 소규모 주택 필지를 수직으로 쌓아서 만들어져 있다.
Text description provided by the architects. 4514 S. Saratoga is another iteration of Starter Home*, an entry level housing program using inventive land strategies coupled with design to develop homeownership opportunities in urban neighborhoods. Like other homes in this program, it is based on the reclamation of an otherwise vacant and unused substandard parcel. The project, unlike previous versions, originated as a commission by private clients interested in replicating the program. In keeping with the generalized precepts of speculative development, 4514 S. Saratoga is a standard three-bedroom, two-and-a-half-bath home. The limited site area — about a third the size of a traditional parcel in New Orleans — required program be stacked vertically and efficiently. An entry stoop was carved from the ground floor footprint and served to internally organize the main living spaces. A back porch and a small yard occupy the limited space required by setbacks. The second floor has two compact bed and bathrooms. The third-floor functions as an additional bedroom or flex space with walk-in access to a large storage area.
- 1. Architects: OJT
- 2. Area: 1500 ft²
- 3. Year: 2017

1층 현관(Entry)에서는 옷장과 양변기가 바로 연결되는 구조가 흥미롭다. 현관은 외부와 내부를 이어주는 역할을 하는 곳으로 그 사용성이 다양하다. 라이프스타일이 맞춰 손님맞이를 위한 작은 옷장도 좋고, 외부와 긴밀하게 연결되어야 한다면 현관에 창고를 두는 것도 좋을 수 있다.
다이닝(Dining)과 연결되는 부출입도 도 있어 거실과 식당이 하나의 공간으로 개방감 있는 분위기를 연출하고 있으며 부엌은 완전히 숨겨져 있지는 않지만, 한쪽 귀퉁이에 위치하여 부출입이자 테라스로 시선을 연결하고 있다. 부엌에서 테라스로 음식을 전달하거나 시선을 연결하여 콤팩트하게 구성된 부엌의 답답함을 해소하려고 한다.1층이 개방적공간의 성격이면 2,3층은 사적공간으로 방과 화장실로 구성되어 지붕의 형태에 따라 최상층의 공간감이 다양해질 수 있겠다.








*참고 및 인용
1.archdaily.com
*MAKE.RE.MAKE는
다양성과 지속가능성, 사회적 문제에
관심을 가집니다
_
instagram
@makeremake_official : 포트폴리오
@project. 055 : 마산(창원, 진해)의 도시재생 리노베이션 프로젝트 그리고 건축도시탐구
'__REF' 카테고리의 다른 글
| 사무실 디자인| 재료와 면의 대비로 이루어진 사무실 건물 | 2014 | Office in Debrecen (0) | 2024.01.10 |
|---|---|
| 주택디자인| 형태가 없는 랜드스케이프건축(landscape) | 2022 |The Inside Home (2) | 2023.12.27 |
| 주택 디자인| 좁고 긴 스킵플로어 협소주택 | 2022 | HOUSE KJ (2) | 2023.12.18 |

댓글