#오늘의pick #건축사례 #리모델링 #주택설계 #리노베이션 #스테이 #카페 #실내디자인 #조명디자인 #평면도
▶"simple, warm and characterful" : 약간의 증축으로 공간을 이어주는 주택 리모델링
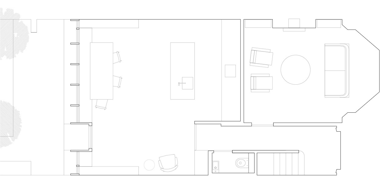
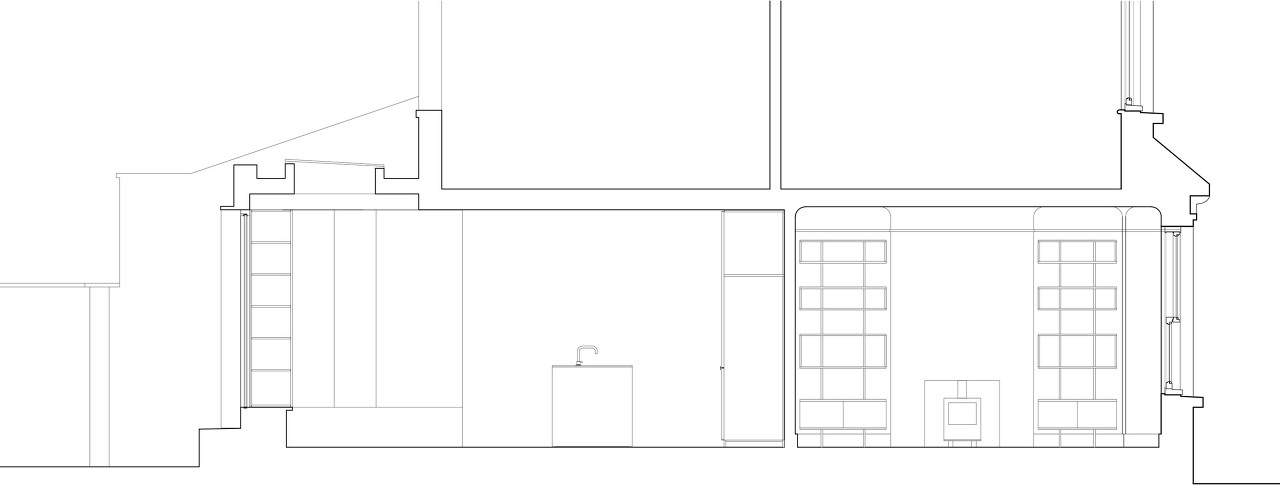
정원의 자연이 실내의 목재로 연결되어 공간이 확장되는 방식이며, 정문의 작은 부분을 증축, 확장하여 리셉션의 공간이면서 천창을 통해 실내까지 자연채광을 들입니다. 내부에 사용한 가구 목재의 접합방식은 홈을 만들어 조립이 가능한 방식을 채택하였고, 물푸레나무, 오크, 애쉬테이블 등 단순하면서 따뜻한 공간의 느낌이 들며 목재의 밝은 톤과 미묘한 결을 갖춘 재질감과 옅은 석재조리대가 조화를 이루고 있습니다.
작은 주택의 리모델링에서는 약간의 증축요소가 디자인의 큰 흐름을 결정하는 아주 중요한 요소입니다. 이번사례와 같이 입구의 작은 증축공간과 천창 공간은 실내와 실외를 연결하는 중요한 요소인 것처럼 말이죠.
리모델링에서는 건물전체의 외장재를 바꾸고 공간의 벽을 터서 신축에 준하는 새 건물을 만드는 것보다 기존이 가지는 집의 분위기와 구조, 외부와의 관계등을 고려해서 구옥의 분위기와 리모델링되는 부분을 적절히 조화를 이루어 나가며, 주변 동네의 집들과도 결을 같이하는 방식이 좋아 보입니다.
















참고 및 인용
1. dezeen
O'Sullivan Skoufoglou Architects builds wood-lined extension in London
O'Sullivan Skoufoglou Architects has extended a typical terraced home in London, by adding a new timber-lined room that opens onto a brick-paved garden
www.dezeen.com
* MAKE.RE.MAKE는 다양성과 지속가능성, 사회적 문제에 관심을 가집니다. 
_
instagram
@makeremake_official : 포트폴리오.
@project. 055 : 마산(창원, 진해)의 도시재생 리노베이션 프로젝트 그리고 건축도시탐구.
'__REF > Renovation' 카테고리의 다른 글
| 리노베이션| 도시의 틈새공간을 발견한 도서관 증축 사례 | 2021 (0) | 2025.02.27 | 
|---|---|
| 주택 리모델링| 심플한 디자인의 시골주택 리노베이션 | 2020 | Rio House (0) | 2023.11.10 | 
| 주택 리모델링 | 증축 | 슬로베니아 | 2017 (0) | 2023.07.18 | 
| 주택 리모델링 | 뒷마당 | Herne Hill House | 2022 (0) | 2023.07.02 | 
| 주택 리모델링 | Brussels typical terraced-house | 2015 (1) | 2023.06.30 | 

 
														
													 
														
													 
														
													 
														
													
댓글