#오늘의 PICK
#건축디자인 #리노베이션
#메이크리메이크 #건축설계
▶ 도시 속 숨겨진 틈, 새로운 공간 경험을 만들다 | Lea Bridge Library Pavilion
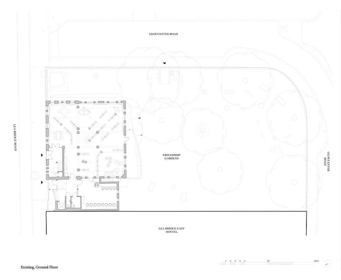
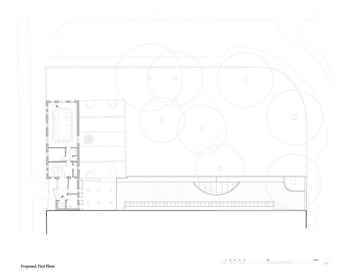
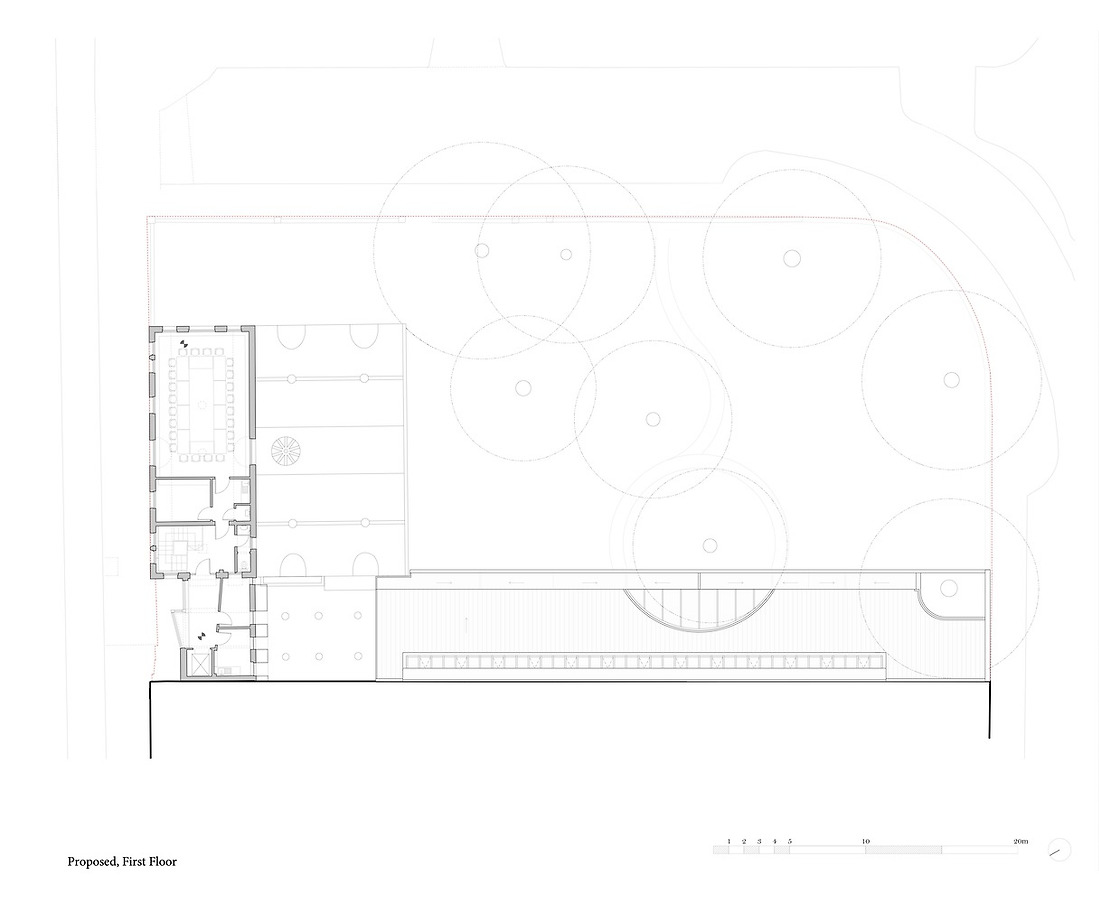
밀집 되어가는 도시 속에 틈을 발견하고 틈새공간을 창의적으로 활용한 런던의 Studio Weave는 도시의 유휴공간을 조화롭게 연결하고 있다. 도서관을 확장하는 과정에서 도서관 후면과 정원사이의 틈을 활용해 카페 및 다목적 커뮤니티 공간을 조성한다.
좁고 긴 건물의 공간구성은 사용자의 이동을 유도하고 공간의 기대감을 형성한다. 기존 도서관 벽을 따라 길게 뻗은 구조는 그 끝에 정원과 맞닿아 있다. Pavilion의 동쪽은 유리 파사드를 통해 정원과 시각적으로 연결되지만 서쪽은 인접 건물의 벽과 맞닿아 있어 개방감을 극대화하고 있다. 긴 형태의 공간에서 중간의 곡선형태는 자연스럽게 공간을 분할하고 외부공간을 만들어 낸다.
무엇보다 이 프로젝트에서 중요한 이슈는 재활용 목재를 사용과 기존 수목의 완전한 보호이다.
Pavilion 의 내부마감재는 런던의 공공장소에서 가져온 나무를 재활용하고 기존 도서관 정원의 녹지를 훼손하지 않으면서 공원과의 연결성을 강화한 점이 돋보인다.
- 1. Architects: Studio Weave
- 2. Area: 250 m²
- 3. Year: 2021
1 Lea Bridge Library Pavilion
지역 사회가 문화적 성장과 재생을 겪으면서 지역 사회와 미래 사회를 연결하기 위해 Studio Weave는 도서관이 맡는 역할의 변화를 탐구하여 일하고, 배우고, 사교하고, 모일 수 있는 장소를 제공하는 새로운 건물을 고안했다. 접근성은 Lea Bridge Library Pavilion의 성공과 대중의 이용이 핵심적이다. Studio Weave는 부지 옆과 뒤편의 정원을 통해 방문객을 끌어들이는 두 개의 새로운 접근 지점을 설계하여 도서관의 정적인 구역을 우회했습니다. 로비의 새로운 카페는 주요 공간으로 열리기 전에 방문객을 맞이합니다. 플루트 목재 조인트의 연속적인 벽은 책장과 내장된 벤치 좌석을 연결하여 산재된 개방형 독서 '방'을 만듭니다. via archdaily










2 관련도면
1층 평면도에서 이 건물의 거의 모든 질서를 읽어 낼 수 있다.






*참고 및 인용
1. 아키데일리
2. chatgpt 와 대화/질문하며 작성된 글입니다.
*MAKE.RE.MAKE는
다양성과 지속가능성, 사회적 문제에
관심을 가집니다
_
instagram
@makeremake_official : 포트폴리오
@project. 055 : 마산(창원, 진해)의 도시재생 리노베이션 프로젝트 그리고 건축도시탐구
'__REF > Renovation' 카테고리의 다른 글
| 주택 리모델링| 심플한 디자인의 시골주택 리노베이션 | 2020 | Rio House (0) | 2023.11.10 |
|---|---|
| 주택 리모델링 | 증축 | 슬로베니아 | 2017 (0) | 2023.07.18 |
| 주택 리모델링 | 뒷마당 | Herne Hill House | 2022 (0) | 2023.07.02 |
| 주택 리모델링 | Brussels typical terraced-house | 2015 (1) | 2023.06.30 |
| 주택 리모델링 | Typical terraced home | 2017 (1) | 2023.06.28 |
댓글