#오늘의pick #건축사례 #리모델링 #주택설계 #리노베이션 #스테이 #카페 #실내디자인 #조명디자인 #평면도
▶Herne Hill House extension: 집의 재구성을 위한 요소들(재료, 공간, 구조)그리고 마당
영국의 주택은 주로 뒷마당을 선호하는데, 그 이유는 휴식과 휴가를 위해 뒷마당은 사적인 공간으로 바베큐,정원가꾸기,애완동물키우기, 아이들의 놀이공간 등올 다양하게 사용할 수 있기 때문이다. 동양과 서양의은 문화적 차이로 인해 동양은 앞마당과 서양은 뒷마당을 주로 선호하기도 합니다. 동양은 이웃과의 교류와 공개적인 공간으로 여기는 것에 반해 서양의 마당은 뒷쪽에 위치하며 주로 가족과 가까운 사람들과 함께 사용하는 공간입니다.
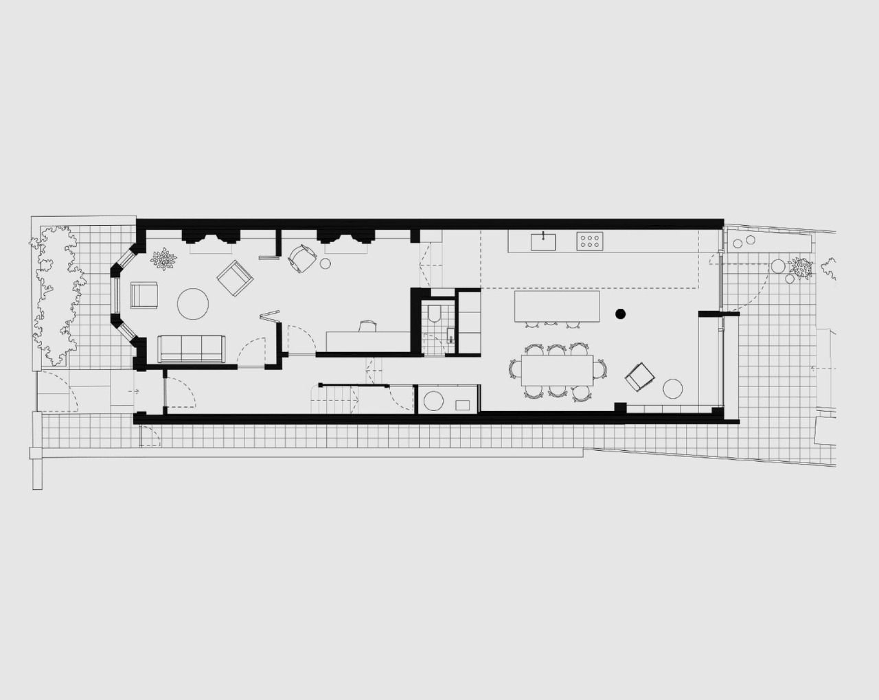
이 주택은 뒷마당과 이어지는 건물의 부분확장과 집의 재구성을 통해서 오래된 주택을 개조하였습니다. 재료적으로는 노출콘크리트, 회반죽, 타일, 목재(전나무)의 요소들로 구성되어 단순한 재료들의 조합으로 구성되어 따뜻하고 내구성이 있는 공간을 만드는 것에 집중하였습니다. 그리고 주방이 좁아 재역할을 하지 못해 부분적으로 확장을 통해 주방의 확장과 주방과 뒷마당의 연결을 꾀하였습니다.
이미 있는 것을 개선함으로써 집이 개선될 수 있습니다.
"항상 집이 얼마나 더 잘 작동하도록 재구성할 수 있는지 확인하고 건물을 적게 지으면서, 이를 통해 단열보강, 업그레이드된 유리 및 난방 시스템으로 기존 건물을 개조하는 데 더 많은 투자를 할 수 있습니다." 필요 이상의 넓은 면적의 집은 단열재, 창호 등의 기본적인 기능을 떨어뜨리며, 예산 초과로 이어질 수 있습니다.









참고 및 인용
1. dezeen.com
TYPE combines elemental materials in Herne Hill House extension
Raw concrete, burnt clay and natural wood come together in this extension to an end-of-terrace house in south London, designed by architecture studio TYPE.
www.dezeen.com
* MAKE.RE.MAKE는 다양성과 지속가능성, 사회적 문제에 관심을 가집니다. 
_
instagram
@makeremake_official : 포트폴리오.
@project. 055 : 마산(창원, 진해)의 도시재생 리노베이션 프로젝트 그리고 건축도시탐구.
_
'__REF > Renovation' 카테고리의 다른 글
| 리노베이션| 도시의 틈새공간을 발견한 도서관 증축 사례 | 2021 (0) | 2025.02.27 | 
|---|---|
| 주택 리모델링| 심플한 디자인의 시골주택 리노베이션 | 2020 | Rio House (0) | 2023.11.10 | 
| 주택 리모델링 | 증축 | 슬로베니아 | 2017 (0) | 2023.07.18 | 
| 주택 리모델링 | Brussels typical terraced-house | 2015 (1) | 2023.06.30 | 
| 주택 리모델링 | Typical terraced home | 2017 (1) | 2023.06.28 | 

														
													
														
													
														
													
														
													
댓글