#오늘의pick #단독주택 #리모델링 #리노베이션 #인테리어 #평면도 #리노베이션
▶3개의 박스형 건물을 쌓아만든 단독주택 증축 리모델링_채움과 비움의 반복
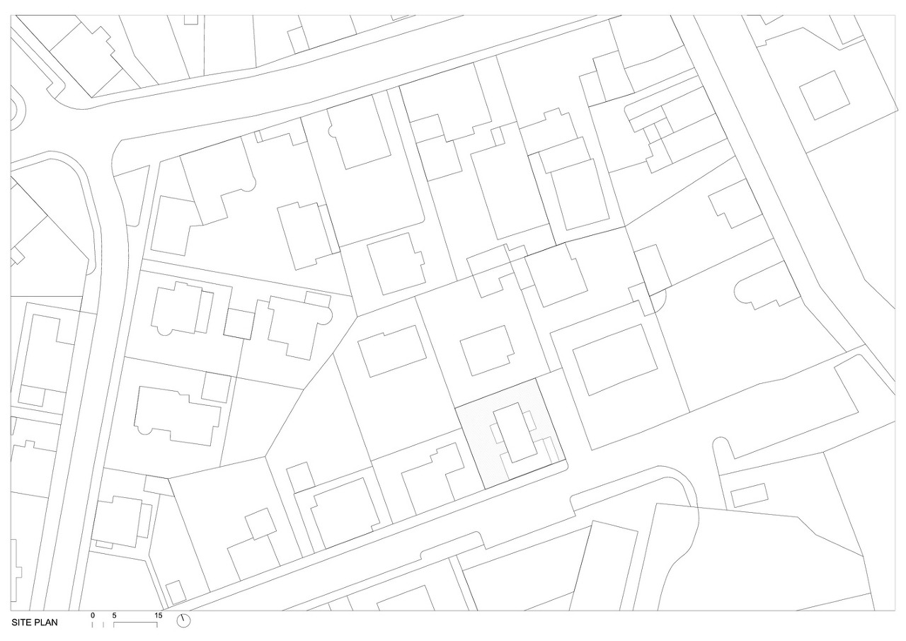
1934년에 슬로베니아 지역에 지어진 작은 주택을 증축하기 위한 주택 리모델링 프로젝트입니다. 층별 50제곱미터 정도씩 증축해나가는 방식이며, 층별로 어긋나게 3개의 박스를 조합하여 채움과 비움을 반복하여 건물의 형태와 공간이 완성되는 방식을 채택하였습니다. 오래된 집의 질감은 유지한채 오래된 집과 증축된 집이 서로 다른방식으로 연결이 됩니다. 증축되는 주택은 목재클래딩으로 외장을 구성하고 있어 기존주택과 대조적 분위기를 자아내며 공간적으로는 오래된 주택과 증축된 주택의 질감을 유사하게 유지되는 방향으로 공간의 연속성을 고려하였습니다.
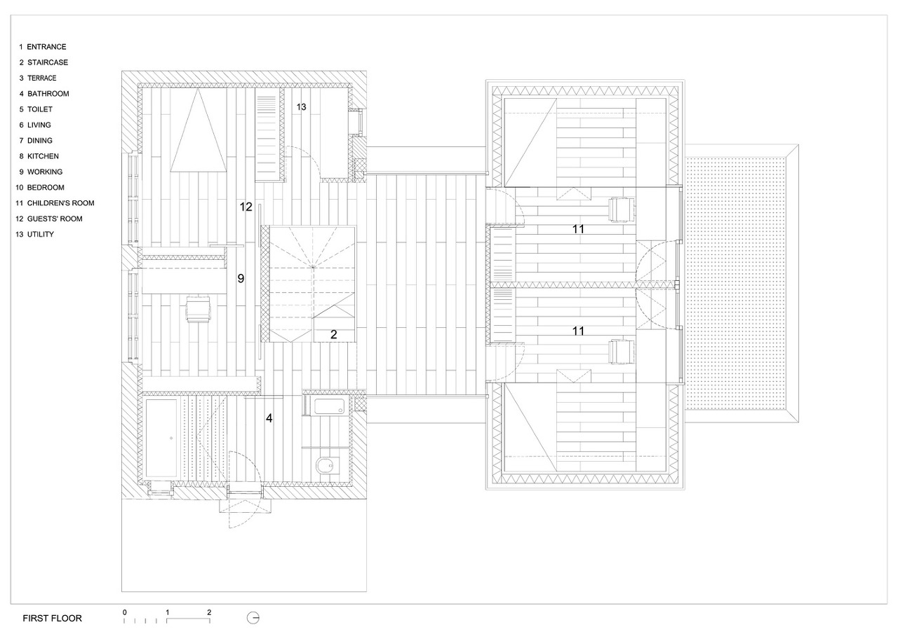
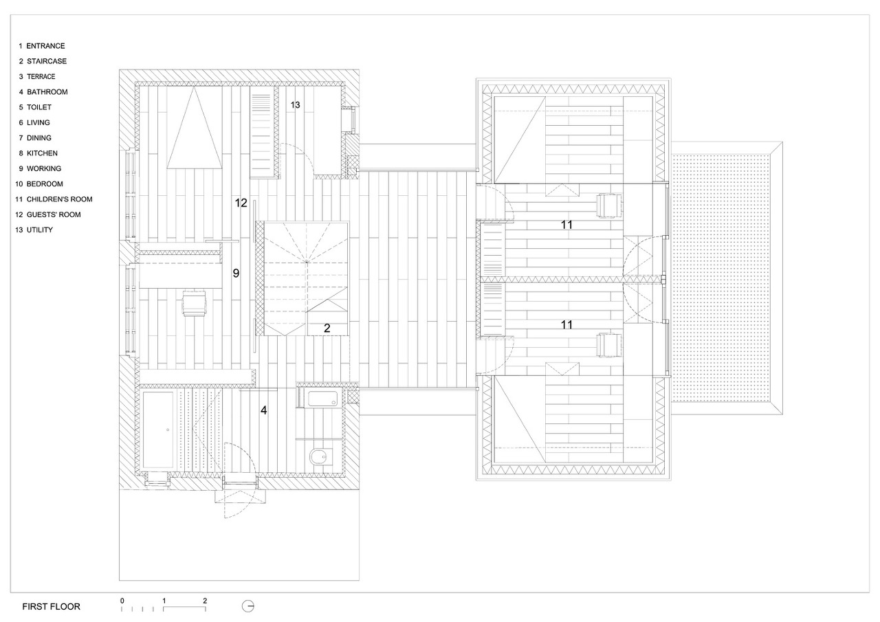
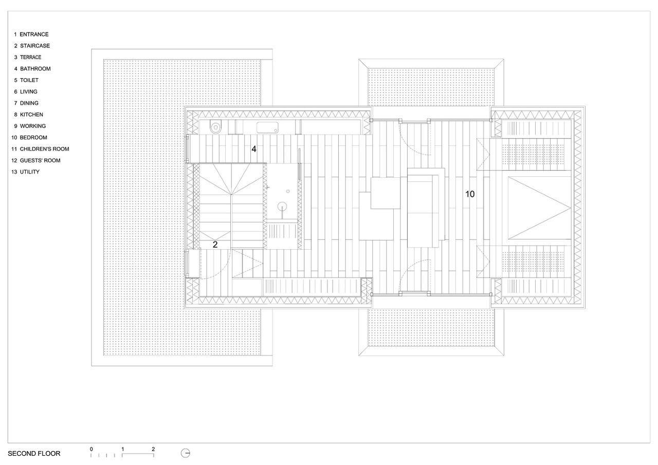
1층은 거실,주방,식당으로 구성되어 있으며, 외부공간(정원)에 둘러쌓여 좌우로 개방감을 극대화한 공간 확장이 평면구성의 핵심이며, 2층은 자녀방 2곳과 게스트룸으로 구성되고, 3층은 마스터 베드룸으로 구성되어 2,3층이 프라이빗한 공간으로 저층과 상층부의 기능을 구분하였습니다.
1,2,3층이 각각 90도 정도 어긋나는 방식으로 쌓아지는 디자인 방식을 채택하여 증축되는 주택의 새로운 모습을 충분히 구현하여 단순하지만 집의 세련됨을 더욱 부각시킨 주택입니다.



















참고 및 인용
* MAKE.RE.MAKE는 다양성과 지속가능성, 사회적 문제에 관심을 가집니다.
_
instagram
@makeremake_official : 포트폴리오.
@project. 055 : 마산(창원, 진해)의 도시재생 리노베이션 프로젝트 그리고 건축도시탐구.
'__REF > Renovation' 카테고리의 다른 글
| 리노베이션| 도시의 틈새공간을 발견한 도서관 증축 사례 | 2021 (0) | 2025.02.27 |
|---|---|
| 주택 리모델링| 심플한 디자인의 시골주택 리노베이션 | 2020 | Rio House (0) | 2023.11.10 |
| 주택 리모델링 | 뒷마당 | Herne Hill House | 2022 (0) | 2023.07.02 |
| 주택 리모델링 | Brussels typical terraced-house | 2015 (1) | 2023.06.30 |
| 주택 리모델링 | Typical terraced home | 2017 (1) | 2023.06.28 |

댓글