#오늘의 PICK
#건축디자인 #리노베이션
#메이크리메이크 #건축설계
#사옥디자인 #친환경디자인
▶환경친화적인 디자인접근과 친환경 교육프로그램으로 채워진 조각 같은 건물
Rapunzel 방문자센터는 "우리는 사랑으로 유기농을 만듭니다."라는 내용을 방문자에게 전달하고 있다. 목재, 점토, 천연재료와 재생가능한 건축자재를 사용하고 있으며, 바닥 단열재로는 스티로폼 대신 재활용 발포 유리자갈을 사용하고, 색상 및 재료코팅을 위해서 광물을 사용하는 등 생태학적으로 고려된 건물이라고 소개한다.
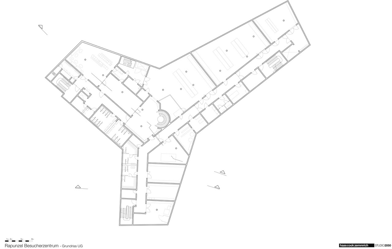
방사형으로 펼쳐진 배치형태를 가지고 중심의 나선형 계단은 수직적인 연결동선이면서 공간전체를 탐험할 수 있도록 개방적 구조를 가지고 있다. 옥상테라스까지 모든 층을 연결하여 전망을 제공한다. 방문객은 재배->공정무역->생산뿐 아니라 지속가능한 삶에 대해 관심을 가질 수 있도록 프로그램을 교육하고 로스팅과 가공 과정을 관찰하고, 커피의 향을 즐길 수 있는 커피 로스터리를 공개한다.
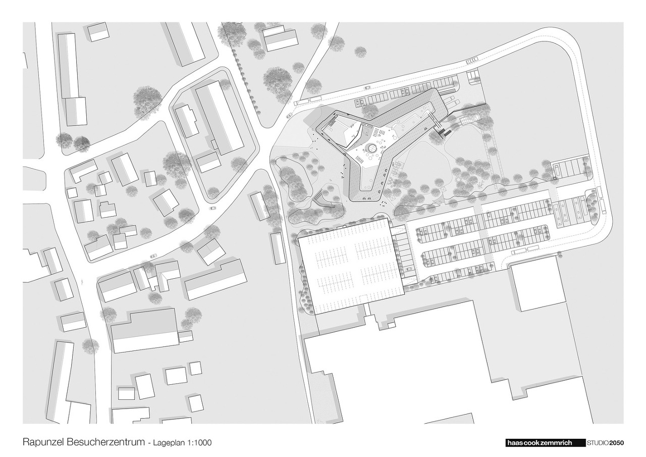
수평으로 넓게 펼쳐진 조각 같은 건물로 인지되며, 지붕이면서 벽이 되는 면을 하나의 재료로 구성하여 건물전체를 애워싸는 형식으로 되어 있다.
Text description provided by the architects. After three years of construction, a visitor center has emerged as a walk-in building sculpture on the premises of Rapunzel Naturkost GmbH in Legau. The new visitor center is designed to be public and inviting and is intended to make Rapunzel's leitmotif "We make organic out of love" tangible for visitors. A house is full of discoveries that invite guests to linger and participate in varied and emotional imparting of knowledge. The address-forming building sculpture welcomes every visitor from afar through the northern high point - the Rapunzel Tower. The fairytale garden surrounds the house and extends to the roof. An open and invitingly accessible sculpture where at the end the crow's nest allows a view of the landscape.
- Architects: haascookzemmrich STUDIO 2050
- Area: 7,560 m²
- Year: 2022
















*참고 및 인용
1. archdaily.com
2. haascookzemmrich STUDIO 2050
*MAKE.RE.MAKE는
다양성과 지속가능성, 사회적 문제에
관심을 가집니다
_
instagram
@makeremake_official : 포트폴리오
@project. 055 : 마산(창원, 진해)의 도시재생 리노베이션 프로젝트 그리고 건축도시탐구
'__REF > Office & Lab' 카테고리의 다른 글
| 농막| 일과 문화로 채워질 최소한의 농막건축 | 2022 | CZECH (0) | 2023.11.21 |
|---|---|
| 사옥 디자인| 원의 형태와 질서를 가진 웰컴 센터 | Fazer Visitor Center | 2016 (0) | 2023.09.27 |
| 사무실 인테리어| 펀칭 메탈과 곡면벽을 이용한 인테리어 | 2017 (0) | 2023.09.08 |
| 사무실 디자인| 대지의 한계를 극복하기 위한 다양한 건축 솔루션 | RATP Habitat Headquarters | 2021 (0) | 2023.09.05 |
| 사무실 인테리어| 브랜드 이미지를 공간에 투영하다 | Runxuan Textile Office (0) | 2023.08.17 |

댓글